Norgesvej 49B
6100 Haderslev

Sagsnr. 212801

Ejendomstype

Etageareal

Grund

Energiklasse

2.343 m²

10.447 m²

D

Velholdt erhvervsdomicil på Norgesvej i Haderslev

Solid og vedholdt domicilejendom sælges i attraktivt erhvervskvarter i Haderslev.

En spændende ejendom med et stort potentiale, som ligger i Haderslevs nord/vest kvarter tæt på bymidte og kun få minutters kørsel til den sønderjyske motorvej E45.

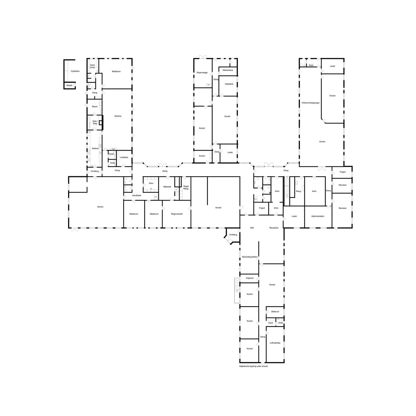
Ejendommen er opført i 1997 og er registret med 1.965 kvadratmeter under tag samt velindrettet kælder på 451 kvadratmeter. Indretningen er for nuværende med indgang for kunder fra parkeringsareal til reception/modtagelse for fremtidig ejer. Herfra er der udgang til bygningens øvrige lokaler som er opdelt i 4 afdelinger hvoraf den ene er med personalefaciliteter med køkken, kantine og toiletforhold. Resten af bygningen har en regulær indretning og kan tilpasses efter behov. I kælderen er der teknikrum samt personalefaciliteter til omklædning, fitness mm.

Bagved ejendommen er der også parkeringspladser som kan benyttes af personale. Fra parkeringsarealet er der adgang til bygningen via flere indgange.

Såfremt ejer ikke selv skal benytte alle kontorlokalerne, kan de nemt opdeles i mindre enheder, som kan udlejes. Der er flere indgange til ejendommen, ligesom toiletfaciliteter og adgang til køkken og kantine nemt kan fordeles til hvert lejemål, afhængig af opdeling.

Det store grundareal på 10447 m² er udover et areal foran ejendommen, bestående af stort parkeringsareal bagved ejendommen, som er flisebelagt. Herudover er der resten af arealet udlagt i græs samt terrasse til brug for personale mm.

Læs mere

Denne ejendom er solgt

Vil du vide mere?

Hans Peter Poulsen

hpp@nordicals.dk

+4520222586

Storegade 88, st, 6100 Haderslev

+4574532900

6100@nordicals.dk

Besøg vores mæglerside

Lignende ejendomme

Til top