Ole Rømers Vej 23
6100 Haderslev

Sagsnr. 211242

Ejendomstype

Etageareal

Grund

Energiklasse

590 m²

2.541 m²

E

For Haderslev Kommune sælges erhvervsejendom i offentligt udbud

For Haderslev Kommune sælges erhvervsejendom indrettet til værksted med kontor (tidligere beboelse)

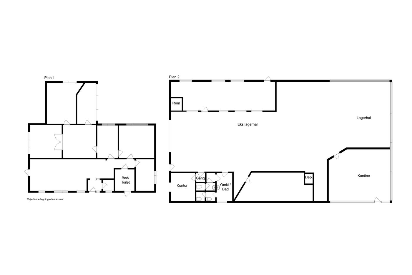
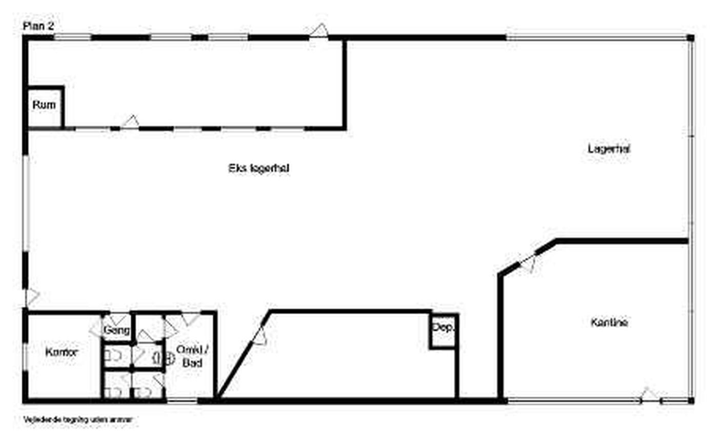
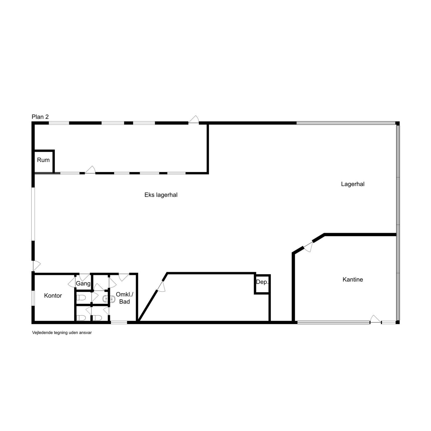
Denne ejendom har senest været anvendt til værksted med tilhørende administrationsafdeling i den tidligere beboelsesdel. Ejendommen fremstår i velholdt stand og består af to fritliggende bygninger. Administrationsbygningen er indrettet i den tidligere beboelsesejendom med facade mod Ole Rømers Vej, her er der kontorlokaler i varierende størrelse samt toilet, køkken og mødefaciliteter. Værkstedsbygningen er med stålspær og stor port i gavlen og består af et åbent værkstedslokale, hvor der er vha. lette konstruktioner indrettet mindre lokaler.

En super ejendom til håndværksvirksomhed med tilhørende administration eller beboelse.

Læs mere

Denne ejendom er solgt

Vil du vide mere?

Lene Thiim Roelsen

ltr@nordicals.dk

+45 2091 0086

Storegade 88, st, 6100 Haderslev

+4574532900

6100@nordicals.dk

Besøg vores mæglerside

Lignende ejendomme

Til top