Ole Rømers Vej 21
6100 Haderslev

Sagsnr. 212052

Ejendomstype

Etageareal

Grund

504 m²

2.537 m²

Produktionsejendom på stor grund

Erhvervsejendom beliggende i Haderslevs nordlige industriområde.

Ejendommen er opført i søstensbelagte elementer og med tagpaptag. Taget er fra da ejendommen er opført i 1981, døre og vinduer er udskiftet i 2012, da nuværende ejer har overtaget ejendommen.

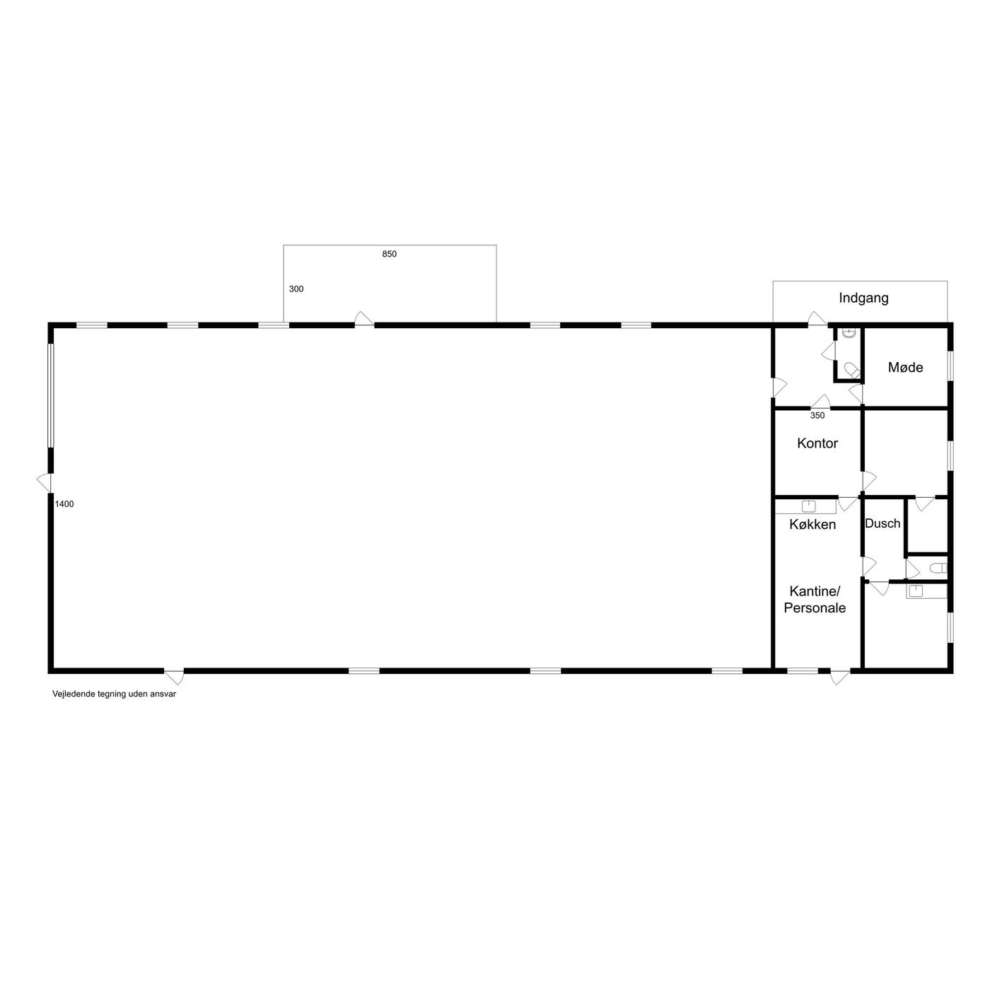
Ejendommen er 504 m² og har 63 ampere og er med skridsikkert epoxygulv i produktionen, udsugning, 2 porte, en lille kran (1.000 kg.) samt elektronisk styret varmepumper.

Indretningen er med indgang til entre med toilet og adgang til mødelokale, derudover er der kontorlokaler og personalefaciliteter i form af frokostrum med thekøkken og omklædningsrum med bruser. Derudover er der et regulært produktionslokale med god loftshøjde.

Ejendommen fremstår i god stand, ligesom den løbende vedligehold er minimal.

Grundarealet udgør 2.537 m² og er udlagt i belægningssten og grus. Foran ejendommen er port, som er eneste adgang til det bagvedliggende grundareal.

Læs mere

Denne ejendom er solgt

Vil du vide mere?

Lene Thiim Roelsen

ltr@nordicals.dk

+45 2091 0086

Storegade 88, st, 6100 Haderslev

+4574532900

6100@nordicals.dk

Besøg vores mæglerside

Lignende ejendomme

Til top