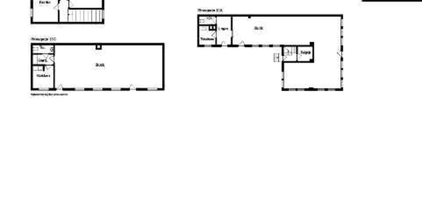
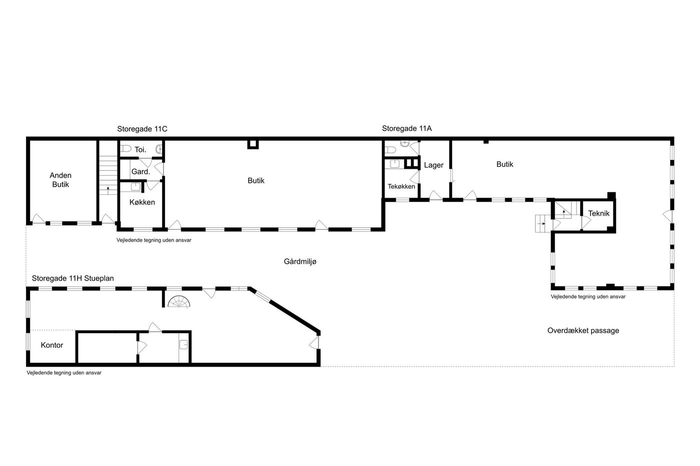
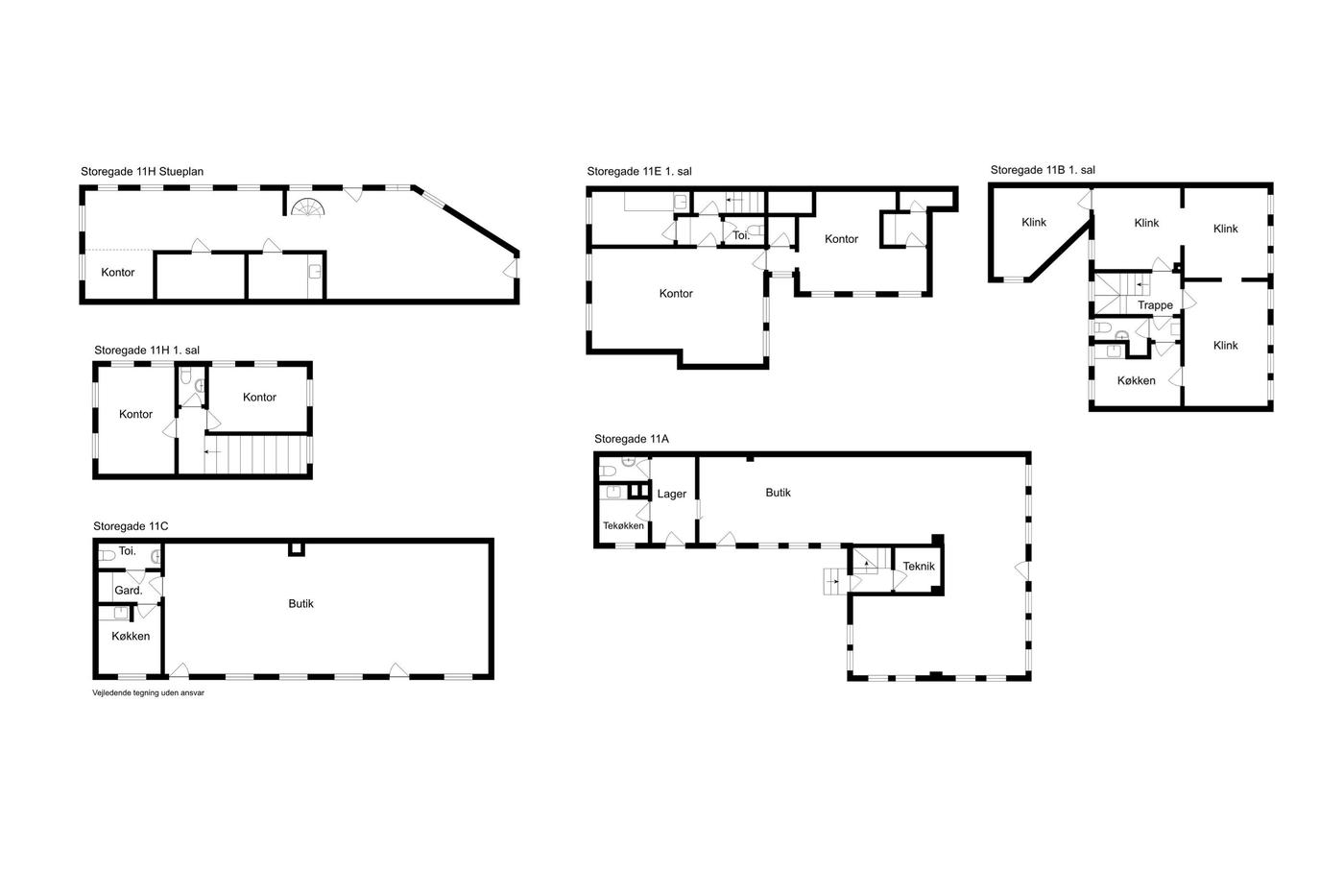
Storegade 11A-H
6100 Haderslev

Sagsnr. 212103

Ejendomstype

Etageareal

Grund

1.041 m²

891 m²

Gågadeejendom opdelt i ejerlejligheder

Spændende ejendom i Haderslev bymidte udbydes til salg. Beliggende midt på Haderslev gågade med den ene facade ud mod gågaden med AAA-placering og de andre lejemål beliggende mod Haderslev dampark, som skaber en hyggelig passage/gårdmiljø, som i dagligdagen kaldes Dampassagen. På gågaden ligger ejendommen overfor H&M.

Selvom ejendommen er beliggende i hjertet af Haderslev centrum, er der gode parkeringsforhold, både på egen grund, men også ved Haderslev dam.

Ejendommen indeholder otte erhvervslejemål og tre boliglejemål, som er opdelt i ejerlejligheder.

Butikslejemålet, der vender ud mod gågaden, har i en årrække været udlejet til Matas, men Matas er flyttet i større lokaler i nærheden. Lejemålet er i dag udlejet til Xocolatl.

Erhvervslejemålet der har facade mod Borgervænget, har store vinduespartier og vil være velegnet til butik, café eller liberalt erhverv. Der er også facade langs hele passagen, hvilket giver et synligt lejemål, lige ved siden af parkeringsmuligheder.

I passagen er lejemålene udlejet til massage samt en hyggelig smykkebutik/værksted.

Lejemålene der ligger inde i passagen, har mulighed for opsætnings af skilt på gågaden.

De tre boliglejemål er fra 50 m2 til 96 m2.

Sælger er et konkursbo og har derfor ikke et nærmere kendskab til ejendommen. Overdragelse sker derfor med sælgers fulde ansvarsfraskrivelse.

Læs mere

Denne ejendom er solgt

Vil du vide mere?

René Damkjær

red@nordicals.dk

+4523954466

Storegade 88, st, 6100 Haderslev

+4574532900

6100@nordicals.dk

Besøg vores mæglerside

Lignende ejendomme

Til top