Havnevej 7
6200 Aabenraa

Sagsnr. 216594

Ejendomstype

Etageareal

952 m²

Kontantpris

Købspris pr. m²

Årlig driftsudgift

Årlig driftsudgift pr. m²

5.200.000 kr.

5.462 kr.

189.200 kr.

199 kr.

Velholdt erhvervsejendom

Ejendommen på Havnevej 7 i Aabenraa fremstår som en præsentabel og yderst velholdt erhvervsejendom, opført i elementer og løbende vedligeholdt med blandt andet service på ventilationsanlægget. Den er beliggende på en lejet grund tilhørende Aabenraa Havn, hvor der netop er indgået en forlænget lejeaftale på 20 år.

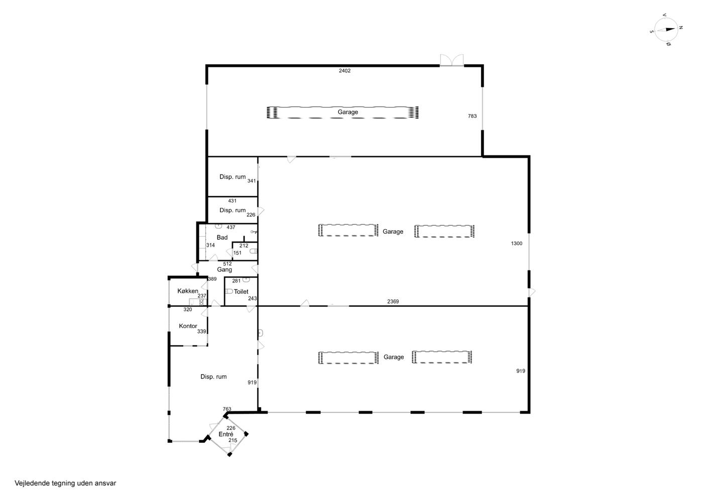
Ejendommen består af tre sammenhængende haller, som er adskilt med stålskydedøre. Hallerne har en frihøjde på 3,5 meter under stålspær og er udstyret med ovenlysvinduer, der sikrer et godt naturligt lysindfald. Hal 1, som vender mod øst, har fem led-hejseporte med en højde på 2,5 meter. Den midterste hal har en port i enden med en højde på 3 meter, mens hallen mod vest har porte i begge ender med en højde på 3,5 meter. Alle haller har støbte gulve, hvilket giver en robust og praktisk overflade til mange typer erhverv.

Indvendigt byder ejendommen på en flot og lys entre, reception, kontor, samt velfærdsrum med køkken, omklædningsfaciliteter, bad og toilet. Der er desuden et separat kundetoilet. Ejendommen er velegnet som domicil og tilbyder gode parkeringsforhold for både ansatte og besøgende.

Udenfor findes en stor, asfalteret og indhegnet rangerplads, som giver optimale forhold for logistik, opbevaring og adgang. Ejendommen har tidligere været udlejet til Euromaster.

Læs mere

Vil du vide mere?

Kim Faber Hansen

kfh@nordicals.dk

+4561304357

Storegade 88, st, 6100 Haderslev

+4574532900

6100@nordicals.dk

Besøg vores mæglerside

Lignende ejendomme

Til top