Ramsherred 25, 1.
6200 Aabenraa

Sagsnr. 431591

Ejendomstype

Etageareal

Energiklasse

298 m²

D

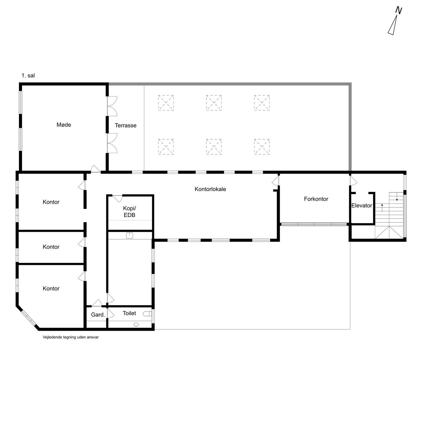
Særdeles flotte og præsentable erhvervslokaler

Midt i Aabenraa udlejes flotte og moderne erhvervslokaler placeret på 1 sal særdeles velegnet til kontor, undervisning/kursus, klinik og lignende.
Lejemålet er beliggende i stor erhvervsejendom med facade til både Ramsherred og Skrænten samt en fantastisk udsigt ud over Aabenraa havn og fjord. Lejemålet er placeret på 1 sal og der er niveaufri adgang fra Skrænten, hvor der både er trapper samt elevator til lejemålet.

Indretningen er overvejende i lette konstruktioner, hvorfor indretningen nemt kan tilpasses lejers ønsker og behov. Den nuværende indretning er med såvel enkelt kontorer som fælles kontorer, undervisningslokaler, mødelokaler, reception-/modtagelsesrum og naturligvis toilet- og køkkenforhold. Der er et super godt lysindfald i alle rum.

Særdeles flotte og præsentable erhvervslokaler på en central placering, tæt på gågaden, og med en fleksible indretning som nemt kan opdeles og indrettes efter lejers behov.

Læs mere

Denne ejendom er udlejet

Vil du vide mere?

Hans Peter Poulsen

hpp@nordicals.dk

+4520222586

Storegade 88, st, 6100 Haderslev

+4574532900

6100@nordicals.dk

Besøg vores mæglerside

Lignende ejendomme

Til top