Storegade 17A
6200 Aabenraa

Sagsnr. 433474

Ejendomstype

Etageareal

Energiklasse

567 m²

D

Årlig leje

Leje pr. m²

Depositum

340.200 kr.

600 kr.

170.100 kr.

Butikslejemål på gågade med god placering

Storegade 17a i Aabenraa, et præsentabelt lejemål med bedste beliggenhed i gågaden. Denne ejendom har i mange år været hjemsted for Sportmaster og tilbyder et ideelt lokale til detailhandel.

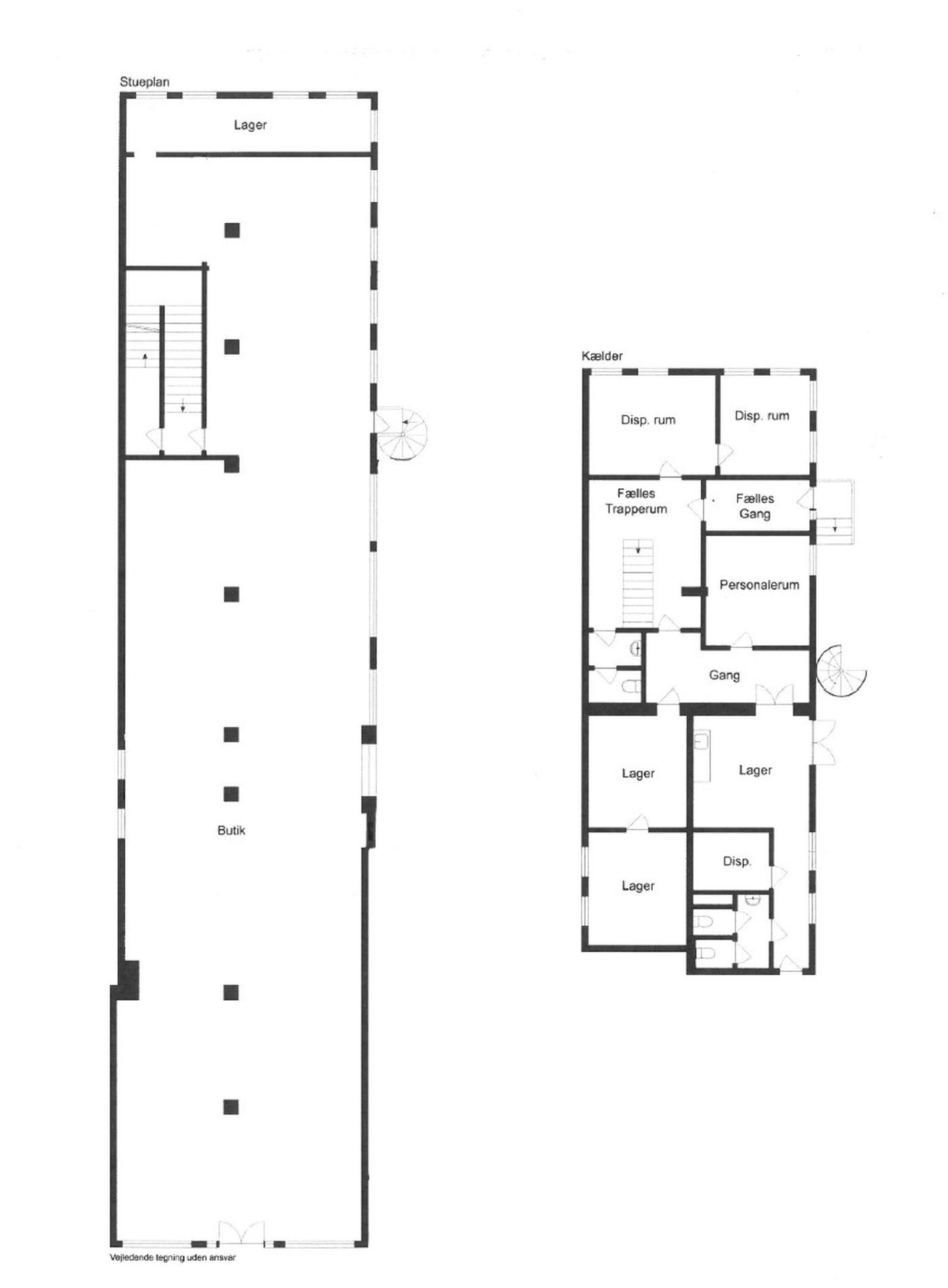
Ejendommen er placeret i hjertet af Aabenraas travle gågade, hvilket sikrer høj synlighed og nem adgang for kunder. Lokalet er stort og regulært, hvilket giver en fleksibel indretning til forskellige butikstyper. Den gode loftshøjde er en stor fordel for forretninger, der har behov for at udstille varer effektivt og skabe en luftig atmosfære.

Ejendommen har en tilhørende underetage, som anvendes til lager og personalefaciliteter. Denne etage har sin egen indgang i terræn fra ejendommens bagside, hvilket gør varelevering praktisk. Personalet har også nem adgang til ejendommen herfra.

Arealet bag ejendommen er asfalteret og bruges både til varelevering og parkering for ejendommens brugere. Der er også gode parkeringsmuligheder ved Skrænten, hvilket gør det nemt for kunder og ansatte at finde parkering tæt på butikken.

Storegade 17a i Aabenraa er en yderst attraktiv ejendom med en fremragende placering i gågaden. Med en stor og regulær butik, god loftshøjde, flot facade med store vinduer, niveaufri adgang og gode parkeringsforhold, er denne ejendom ideelt til detailhandel. Underetagens lager- og personalefaciliteter med egen indgang fra bagsiden gør ejendommen ekstra funktionel.

Læs mere

Vil du vide mere?

Kim Faber Hansen

kfh@nordicals.dk

+4561304357

Storegade 88, st, 6100 Haderslev

+4574532900

6100@nordicals.dk

Besøg vores mæglerside

Lignende ejendomme

Til top