Vestergade 60A, st.
6270 Tønder

Sagsnr. 431192

Ejendomstype

Etageareal

Energiklasse

114 m²

B

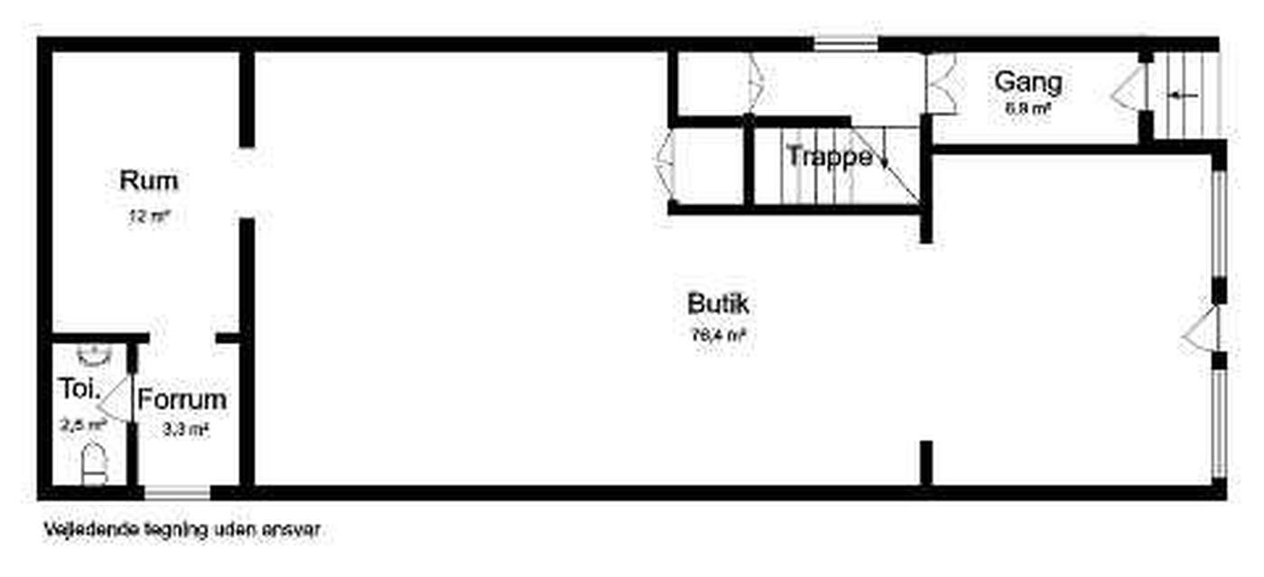
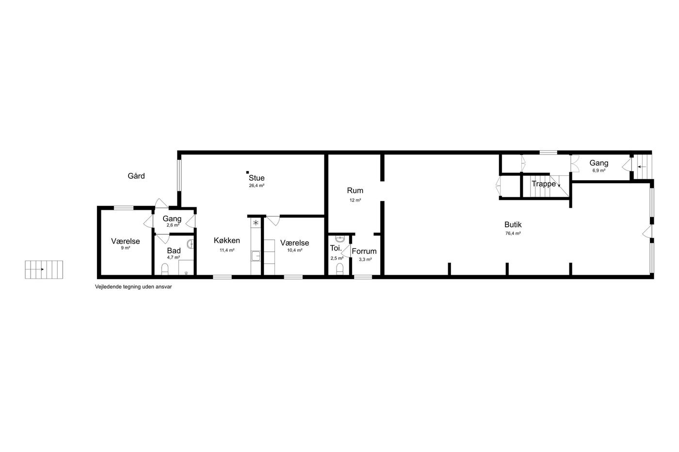
Total nyistandsat butikslejemål på Tønder Gågade

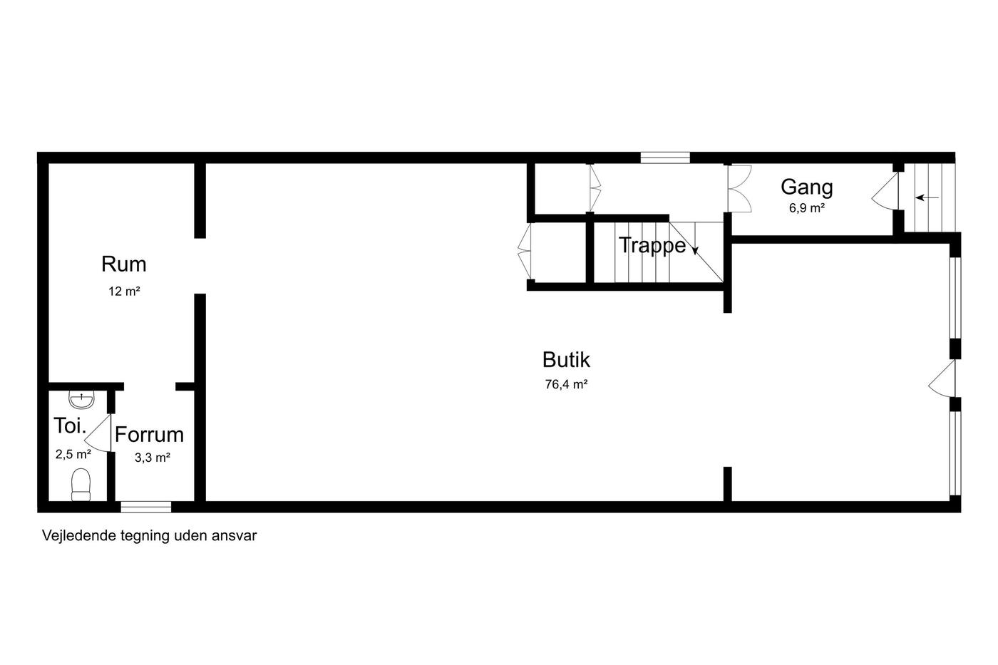
I total ny renoveret ejendom udlejes butikslejemål.

Lejemålet er beliggende i den ene ende af Tønder gågade og fremstår i yderst flot og præsentabel stand. Hele ejendommen er gennemgribende renoveret fra A-Z, her skal nævnes de væsentlige energioptimeringer der er lavet i ejendommen og som medfører lave opvarmningsomkostninger for lejer.

Indgang til lejemålet sker direkte fra gågaden til stort butikslokale, på hver side af døren er der store butiksvinduer som er helt ideel til udstilling og reklame. Fra butikken er personaleafdeling med køkken og toilet, også helt nyt. Lejemålet står pt. uden gulvbelægning og loftsplader, dette vil efter nærmere aftale blive færdiggjort inden indflytning.

Et yderst præsentabelt lejemål, som vil være helt ideel til lille specialbutik, frisør eller klinik.

Læs mere

Denne ejendom er udlejet

Vil du vide mere?

Lene Thiim Roelsen

ltr@nordicals.dk

+45 2091 0086

Storegade 88, st, 6100 Haderslev

+4574532900

6100@nordicals.dk

Besøg vores mæglerside

Lignende ejendomme

Til top