Vestergade 31, st.
6270 Tønder

Sagsnr. 43358201

Ejendomstype

Etageareal

Energiklasse

200 m²

C

Årlig leje

Leje pr. m²

Depositum

320.000 kr.

1.600 kr.

160.000 kr.

Butikslejemål med bred facade

Danske Bank har i mange år drevet bank fra lokalerne, men er fraflyttet og derfor kan et af byens mest markante lejemål nu lejes - bemærk lejemålet ombygges til detailformål i samarbejde med lejer.

Med facade ud til Tønders hyggelige gågade og med blandt andet H&M, Vero Moda, Tops skobutik, Change om mange flere butikker, såvel kæde- som nichebutikker lige rundt omkring lejemålet, er der sikkerhed for en god kundestrøm.

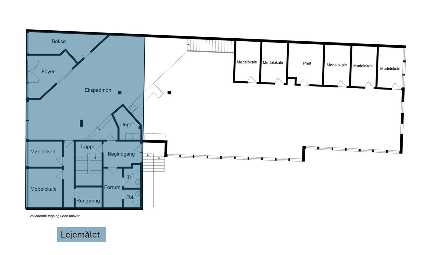
Lejemålets indretning er med niveaufri indgang fra gågaden via vindfang til stort salgsareal, derudover er der for nuværende indvendig trappe til kælderen samt mødelokaler i det store salgslokale, alt dette kan fjernes og lokalerne generelt ombygges til butiksformål - der kan blive et stort og regulært butikslokale med en bred facade til gågaden, arealet kan tilpasses lejers behov, den bagerste del af lokalet mod Allegade kan ombygges til andet formål. Bemærk at der er nedsænket lofter, dette kan fjernes og dermed opnå en bedre højde.

Bemærk at stueplan udgør et samlet areal på i alt 588 m², det anførte areal i denne opstilling på 200 m² udgør facaden mod gågaden, den bagerste del ombygges til andet formål. Arealet på de 200 m² kan variere ved endelig opdeling af lejemålet.

Bagved ejendommen og med indkørsel fra Allegade er der parkeringspladser og med personaleindgang.

Anvendelsesmulighederne er mange, alle former for butik er oplagt, men også cafe, fx. kreacafe eller udstillingslokale med salgskontor er muligt.

Der kan medfølge gode lagerrum i kælderen, til lejemålet.

Læs mere

Vil du vide mere?

Kim Faber Hansen

kfh@nordicals.dk

+4561304357

Storegade 88, st, 6100 Haderslev

+4574532900

6100@nordicals.dk

Besøg vores mæglerside

Lignende ejendomme

Til top