Havnevej 2-4
6280 Højer

Sagsnr. 20447

Ejendomstype

Etageareal

Grund

2.726 m²

3.377 m²

Kontantpris

Købspris pr. m²

Årlig driftsudgift

Årlig driftsudgift pr. m²

1.300.000 kr.

477 kr.

8.103 kr.

3 kr.

Projektejendom i den skønneste natur

Historisk projektejendom i yderst naturskønt område, hvor ro, vand, skøn natur og Vesterhavet er lige udenfor vinduet. Vidåen strækker sig langs bygningen og munder ud i Vesterhavet kun 500 meter fra ejendommen.

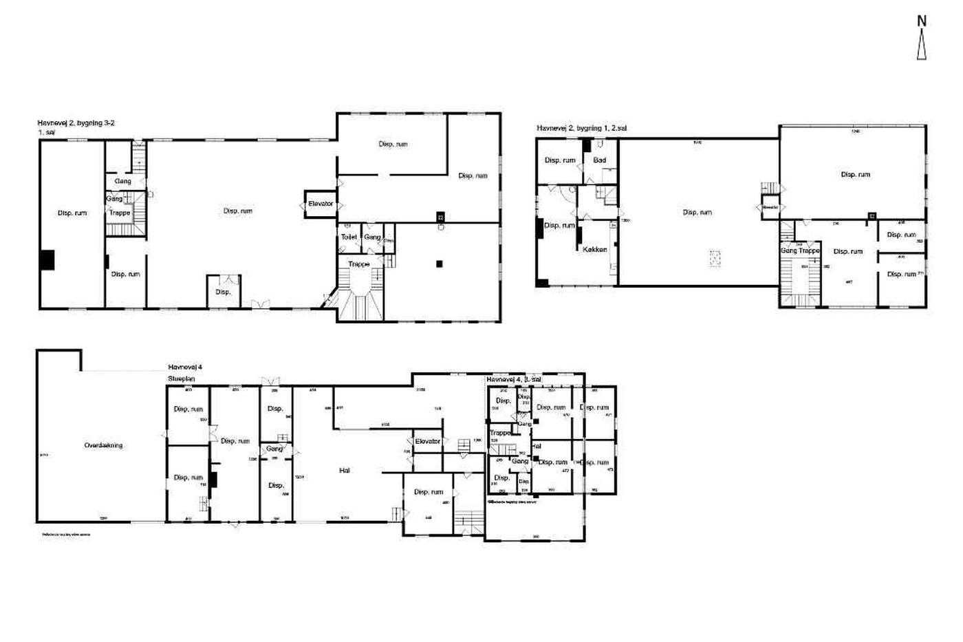
Der er her tale om en ejendom beliggende i den skønneste natur, hvor den oprindelige bygning (hovedhuset) udgør størstedelen af de i alt 2.726 m² i ejendommen. Bygningen indeholder 3 etager på hver 685 m² + tagetage på 180 m², hele ejendommen fremstår rå og klar til den rette projektudvikler. Jo højere vi kommer op i bygningen, jo længere kan du se, hvor der fra tagetagen er kig til, mod vest Sylt og Rømø i Vesterhavet, mod øst ind til Tønder, mod nord ind til Højer by og mod syd, den dansk/tyske grænse.

Foruden hovedbygningen findes yderligere to bygninger, den ene udgør en stor overdækning på 356 m² og den anden bygning udgør et værksted på cirka 135 m².

Ejendommens historie starter i 1918, historiskatlas.dk skriver følgende omkring ejendommen: "Tangmelsfabrikken eller Vidåfabrikken blev opført i 1918, og startede altså som tangmelsfabrik. Bygningens meget høje form, skyldes at man udnyttede faldet fra øverste etage ned til stueplanet i tangmelsproduktionens processer. Bygningen opførtes af Det Slesvig-holstenske Fodermelsselskab, og tanken var at fabrikken af søgræs skulle fremstille fodermel. I bygningen havde man eget elværk, og man mente at vadehavet kunne levere alt den søgræs man skulle bruge, men dette var ikke tilfældet.

Allerede i 1920 solgtes bygningen til et privat selskab fra Højer. De nye ejere solgte inventaret og i de følgende år blev bygningen mest brugt af fiskere og skippere. I 1937 overtog J.H. Hansen fabrikken og begyndte at samle Adler-personvogne og Krupp-lastbiler, som han måtte foretage en større ombygning for at kunne.

Under besættelsen arbejdede fabrikken for den tyske værnemagt med at fremstille heste-trænvogne og dele til tyske ubåde. Der blev også lavet biler og til sidst blev der lavet transportable træhuse til vagtposterne ved Vesterhavet.

Efter anden verdenskrig blev fabrikken beslaglagt af staten og derefter købt af Nicolai Christiansen som var autoforhandler. Han lavede for en kort tid køleskabe i bygningen." Senest har der i ejendommen været lysfabrik.

Ejendommen er beliggende i landzone og ikke omfattet af planbestemmelser, alle projekter skal godkendes og drøftes med Tønder Kommune, den pågældende mægler hjælper med at du som køber kommer i dialog med rette vedkommende ved Tønder Kommune, for at drøfte de muligheder for udvikling der.

Læs mere

Vil du vide mere?

Kim Faber Hansen

kfh@nordicals.dk

+4561304357

Grundtvigs Allé 183, st. th., 6400 Sønderborg

+4574420220

6400@nordicals.dk

Besøg vores mæglerside

Lignende ejendomme

Til top