Torvegade 25
6330 Padborg

Sagsnr. 211221

Ejendomstype

Etageareal

Grund

Energiklasse

138 m²

450 m²

C

Bliv en del af et aktivt handelsliv i Torvecenteret i Padborg

Regulært forretningsejendom med stor synlighed i Torvecenteret i Padborg sælges.

Ejendommen er beliggende ved indkørslen til centeret med egne parkeringspladser
direkte foran døren, og er en del af Torvecenteret med et blandet udbud af
forretninger.

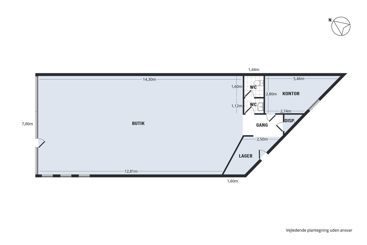
Lokalet har tidligere været anvendt som af elektriker til salg af lamper og hvidevarer,
og har et helt regulært salgsareal med gode udstillingsvinduer ud i centeret.
Bagerst i ejendommen er der toiletfacalitet, tekøkken mv. samt bagudgang. Anden
opdeling kan uden problemer laves.

Til ejendommen hører ligeledes adgang til et kælderrum.

Bemærk prisen - billigere end at leje!

Læs mere

Denne ejendom er solgt

Vil du vide mere?

Hans Peter Poulsen

hpp@nordicals.dk

+4520222586

Storegade 88, st, 6100 Haderslev

+4574532900

6100@nordicals.dk

Besøg vores mæglerside

Lignende ejendomme

Til top