Grundtvigs Alle 198D
6400 Sønderborg

Sagsnr. 42301

Ejendomstype

Etageareal

Energiklasse

1.001 m²

C

Velbeliggende butik i Center Øst

Butikslejemål beliggende i det attraktive Center Øst i Sønderborg.

Center Øst er et område som består af flere store butikskæder som bl.a. Bilka, Elgiganten, Plantorama, T-Hansen, McDonalds, dagligvarebutikker og mange flere.

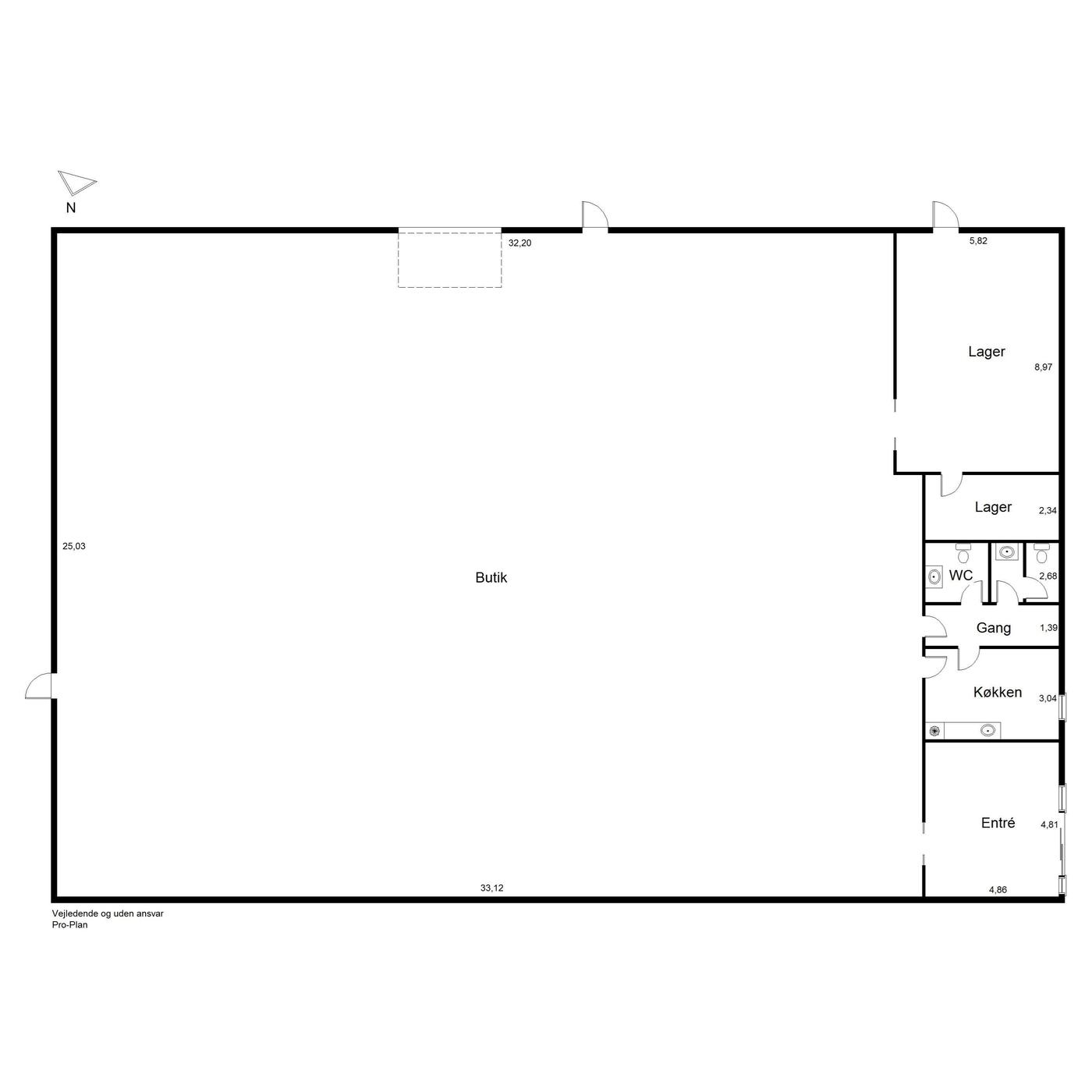
Lejemålet rummer en butik på i alt 1.001m² bestående af et stort salgslokale med højt til loftet, personalefaciliteter, lagerfaciliteter og depotrum. Fra salgslokalet er her udgang til en større, indhegnet varegård via. både port og dør.

Endvidere er her gode parkeringsmuligheder ved og omkring lejemålet samt gode tilkørselsforhold.
Lejemålet ligger tæt på motorvej samt få minutters kørsel til Sønderborg centrum.

Lejemålet har i mange år huset Jem & Fix, og egner sig ideelt til boxbutikker m.fl..

Opdeling af lejemålet er muligt fra 300 m², opdeling og indretningen er fleksibel og kan drøftes nærmere med udlejer, ligesom kvadratmeterprisen afhænger af lejemålets størrelse og lejers krav til indretning.

Læs mere

Denne ejendom er udlejet

Vil du vide mere?

Lene Thiim Roelsen

ltr@nordicals.dk

+45 2091 0086

Grundtvigs Allé 183, st. th., 6400 Sønderborg

+4574420220

6400@nordicals.dk

Besøg vores mæglerside

Lignende ejendomme

Til top