Grundtvigs Plads 18, Center Øst
6400 Sønderborg

Sagsnr. 42383

Ejendomstype

Etageareal

Energiklasse

1.022 m²

B

Årlig leje

Leje pr. m²

Depositum

Årlig driftsudgift

Årlig driftsudgift pr. m²

1.110.000 kr.

1.086 kr.

555.000 kr.

22.500 kr.

22 kr.

Boksbutik til leje i Sønderborgs populære handelsområde Center Øst

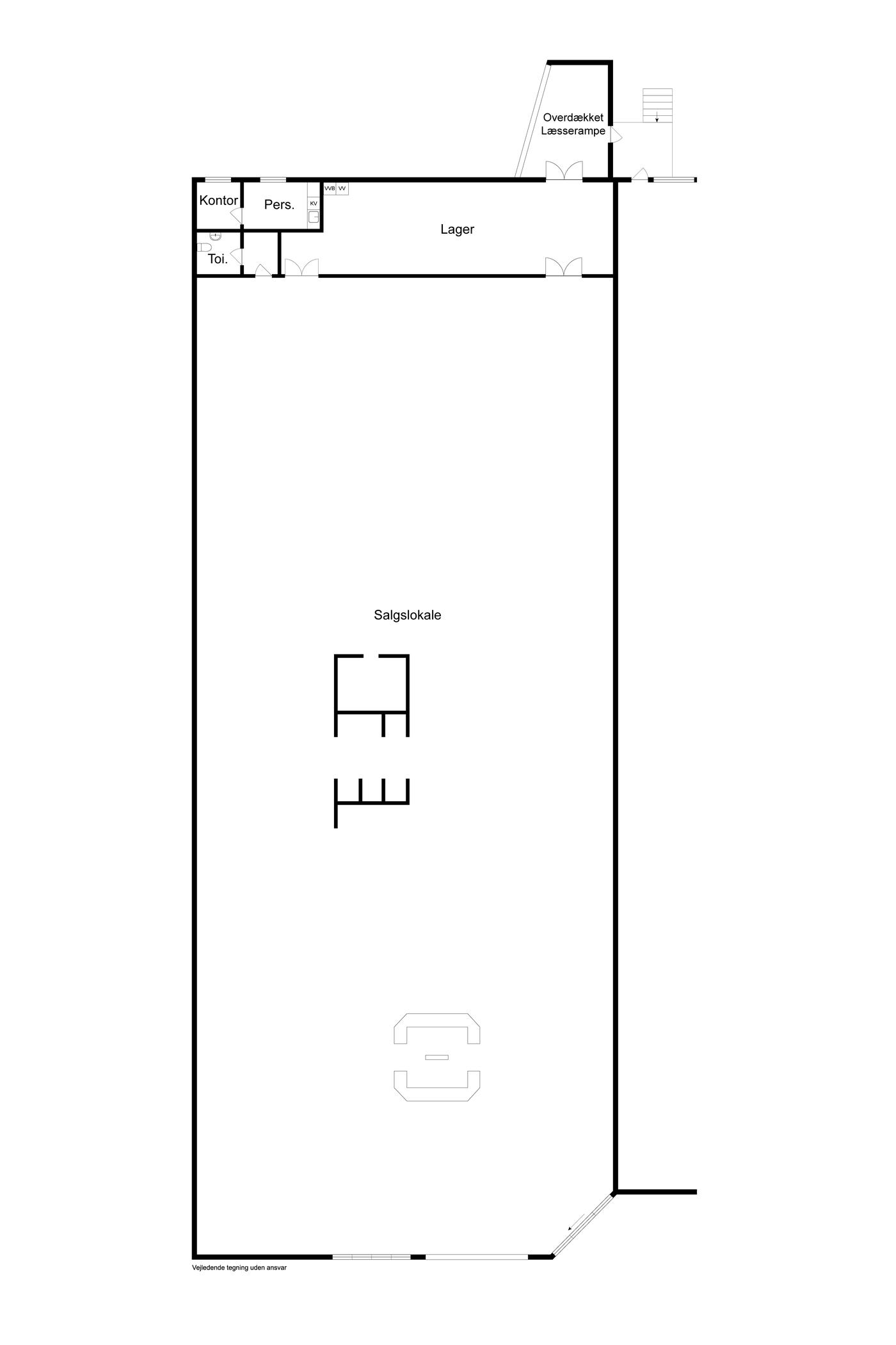
Velkommen til denne unikke mulighed for at etablere din butik i hjertet af Sønderborgs travle handelsområde i Center Øst. Denne rummelige boksbutik på 1022m² inkluderer et stort, regulært salgslokale samt tilhørende lager og personalefaciliteter, perfekt til detailhandel eller lignende aktiviteter. Der er ligeledes gode faciliteter til vareindlevering i form af rampe og direkte adgang til lagerlokalet.

Der er tale om en fremragende og synlig beliggenhed i Center Øst - direkte til parkeringspladsen og velkendte kædebutikker som Silvan, Elgiganten, Plantorama, thansen, Maxi Zoo, Netto, Rema 1000 og andre populære detailbutikker. Herudover findes Bilka, Bauhaus og Biltema i området. God synlighed med en stor facade til skiltning, perfekt til at tiltrække opmærksomhed fra forbipasserende på den trafikerede Grundtvigs Allé.

Lejemålet her tilbyder en unik chance for at blive en del af Sønderborgs dynamiske detailhandelsmiljø. Tag kontakt i dag for at få mere information eller arrangere en besigtigelse.

Læs mere

Vil du vide mere?

René Damkjær

red@nordicals.dk

+4523954466

Grundtvigs Allé 183, st. th., 6400 Sønderborg

+4574420220

6400@nordicals.dk

Besøg vores mæglerside

Lignende ejendomme

Til top