Jernbanesti 1
6400 Sønderborg

Sagsnr. 2041201

Ejendomstype

Etageareal

Grund

Energiklasse

654 m²

328 m²

C

Kontantpris

Købspris pr. m²

Årlig driftsudgift

Årlig driftsudgift pr. m²

3.950.000 kr.

6.040 kr.

53.027 kr.

81 kr.

Centralt beliggende ejendom i Sønderborg midtby

Ejendommen har en central beliggenhed i Sønderborg midtby, tæt ved gågaden, indkøbscentret Borgen og en af byens centrale offentlige parkeringspladser. Denne placering giver nem adgang til byens faciliteter, offentlige transportmuligheder og lokale butikker, hvilket gør den ideel til brug af køberen eller udvikling af en projektudvikler.

Taget er beklædt med tagpap, og på den sydvendte side er der installeret solceller, som ikke blot reducerer elforbruget, men også bidrager til ejendommens 'grønne profil'. Ejendommen har energiklasse C.

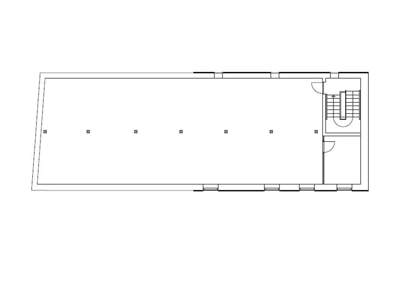
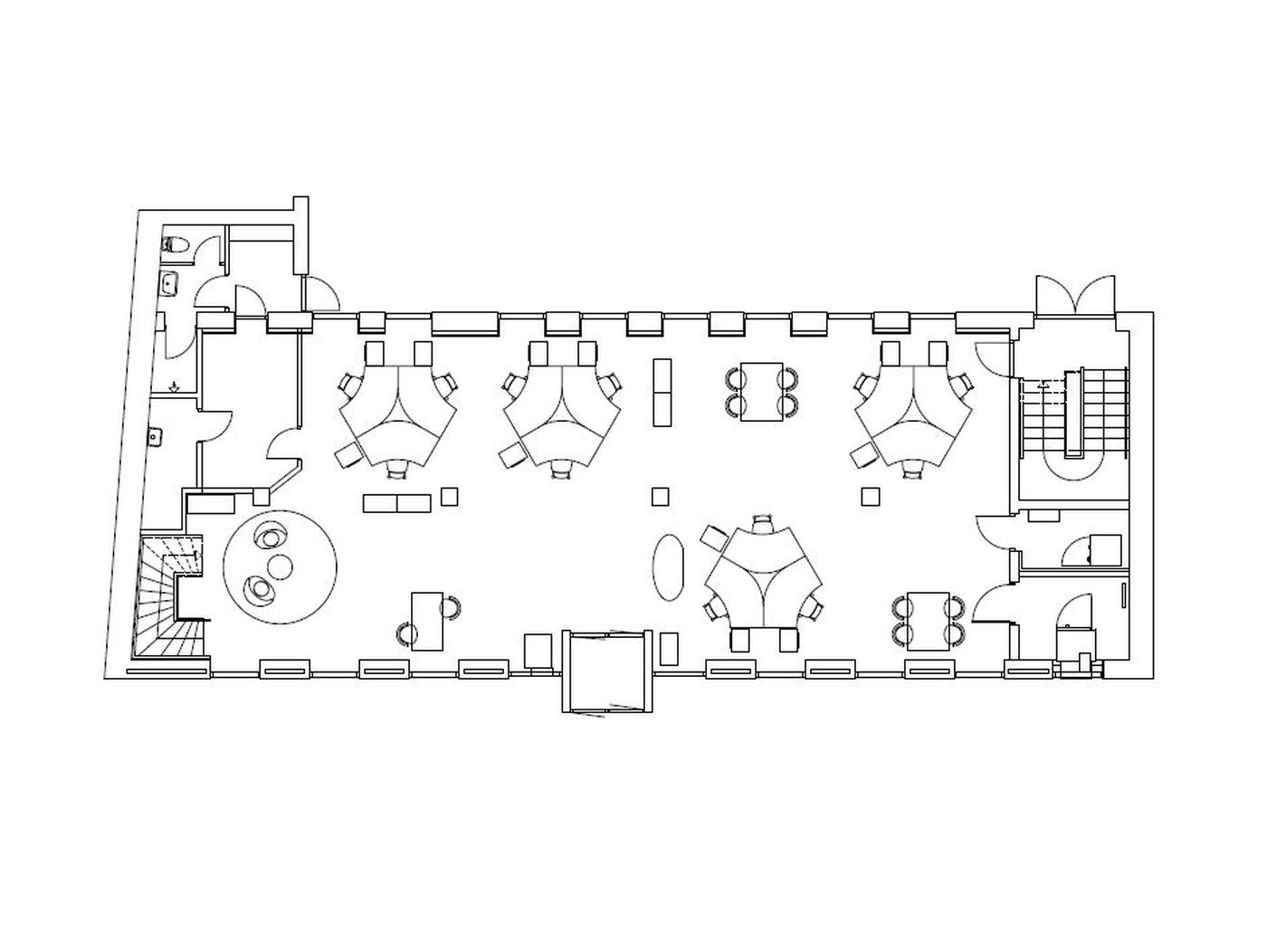
Stueplanen er indrettet med et lyst og åbent kontormiljø samt en trappe til første sal, hvor der findes yderligere kontorlokaler, mødelokaler og personalefaciliteter. Foran stueplanen er der anlagt private parkeringspladser, delvist beliggende på ejendommens egen grund.

Ejendommen har betydeligt udviklingspotentiale. Med sit store areal på 654 m² kan den ombygges til attraktive boliger, herunder potentielle ejerlejligheder på første og anden sal, samtidig med at stueplan fortsat kan bruges af køberen eller udlejes til erhverv. Det tilstødende parkeringsareal foran ejendommen åbner også mulighed for ansøgning om opsætning af altaner til boligerne.

Denne fleksibilitet i anvendelsen af ejendommen gør den til en attraktiv mulighed for køberen eller projektudvikleren, der ønsker at udnytte dens centrale beliggenhed til at skabe et hjem eller et innovativt erhvervsmiljø.

Læs mere

Vil du vide mere?

Hans Peter Poulsen

hpp@nordicals.dk

+4520222586

Grundtvigs Allé 183, st. th., 6400 Sønderborg

+4574420220

6400@nordicals.dk

Besøg vores mæglerside

Lignende ejendomme

Til top