Kongevej 64
6400 Sønderborg

Sagsnr. 20473

Ejendomstype

Etageareal

Grund

Energiklasse

838 m²

1.189 m²

C

Kontantpris

Købspris pr. m²

Årlig driftsudgift

Årlig driftsudgift pr. m²

8.750.000 kr.

10.442 kr.

48.469 kr.

58 kr.

Historisk ejendom med sjæl, stil og udviklingsmuligheder

Velkommen til Kongevej 64 - en markant og historisk ejendom midt i Sønderborg, oplagt til den kræsne køber med øje for stil, kvalitet og muligheder. Uanset om du leder efter en unik bolig med sjæl, et eksklusivt domicil til din virksomhed, eller et ejendomsprojekt med potentiale, er dette en sjælden mulighed.

Ejendommen, der tidligere er kendt som Villa Boch, er opført omkring år 1900 i den karakteristiske Jugendstil og emmer af arkitektonisk finesse og håndværksmæssig kvalitet. Her møder du en bygning med karakter - med detaljer og rumfornemmelser, der sjældent ses i moderne byggeri.

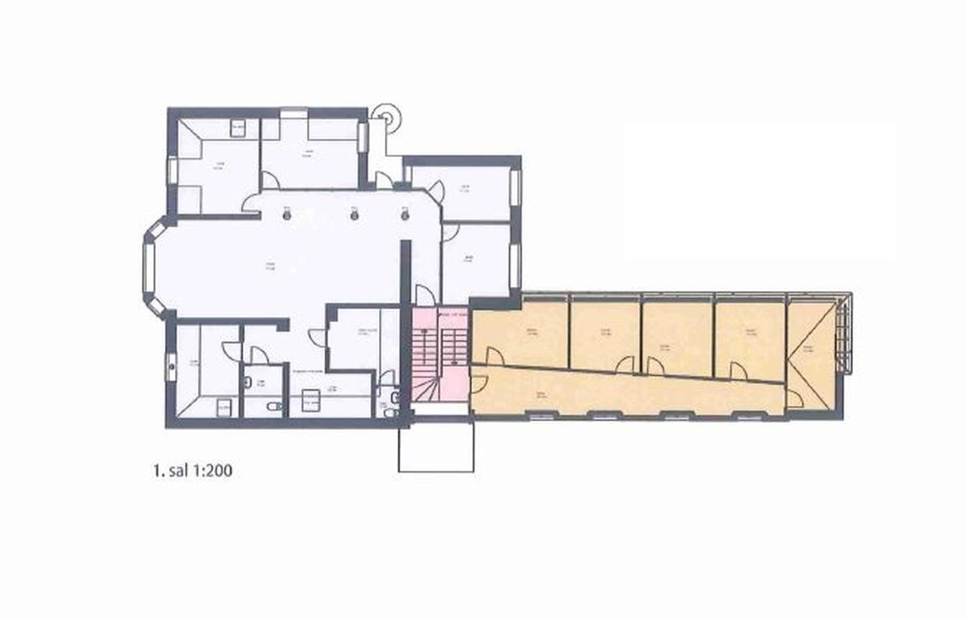
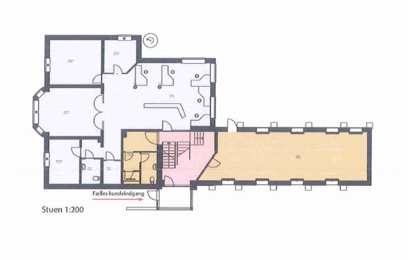
Kongevej 64 rummer i dag 838 m² fordelt på to etager samt en anvendelig kælder på 173 m². Den nuværende anvendelse som advokatdomicil vidner om ejendommens repræsentative fremtoning og funktionalitet, men mulighederne rækker langt videre:
· Oplagt til konvertering til eksklusiv privatbolig
· Kombineret bolig og erhverv
· Flere separate erhvervslejemål
· Brug til liberale erhverv (lægepraksis, arkitekt, designvirksomhed mv.)
· Nøglefri hotel
· Udviklingsprojekt med fokus på transformation af de eksisterende rammer

Ejendommen er løbende blevet vedligeholdt og opdateret - senest med en større modernisering og opførelse af en kontorfløj i 2005. Dens historiske baggrund er bemærkelsesværdig: byggetilladelsen blev i sin tid givet af den prøjsiske politiforvaltning, da Sønderborg endnu var tysk - og bygningen bar dengang adressen Kaiser Wilhelm Alle 64.

Fra facade til kælder oplever man et hus, der fortæller historier - og som samtidig kan danne rammen om helt nye kapitler, hvad end det er som bolig, kontor eller udviklingscase.

Ved salg fraflytter nuværende ejer ejendommen, så køber får fuld råderet over ejendommen fra overtagelsen.

Læs mere

Vil du vide mere?

Hans Peter Poulsen

hpp@nordicals.dk

+4520222586

Grundtvigs Allé 183, st. th., 6400 Sønderborg

+4574420220

6400@nordicals.dk

Besøg vores mæglerside

Lignende ejendomme

Til top