Søndergård Alle 22
6500 Vojens

Sagsnr. 211513

Ejendomstype

Etageareal

Grund

Energiklasse

2.193 m²

35.664 m²

C

Flot restaureret palæejendom med tilhørende kontor/erhvervslokaler

Denne herskabelige ejendom er en tidligere proprietærgård, som i 2005 er gennemgået en større renovering og istandsættelse.

Ejendommen, der kun ligger få km. fra Haderslev, består af en enestående og stor bolig i to plan. De tilhørende bygninger hvoraf hovedparten ligeledes er istandsat, rummer flotte erhvervsarealer, der bruges til showroom, kontor og lager. En del af bygningen indeholder tillige 8 hestebokse.

En perfekt ejendom hvor privat bolig og erhvervsvirksomhed kan forenes med landlige omgivelser og alligevel tæt på by og infrastruktur.

Ejendommen grænser op til erhvervsområdet, der er udlagt til liberalt erhverv og servicevirksomhed og som ligger i umiddelbar nærhed af motorvejstilkørsel til E45.

Tilkørsel til ejendommen sker via en anlagt allé med træer på begge sider. Ved matriklen er der smedejernsgitterlåge i ægte herskabelig stil.

Det samlede grundareal er 3,5 ha. og giver megen luft omkring bygningerne og den store have og store grusbelagte gårdsplads mellem de 3 bygninger.

Omkring herskabsboligen er der store græsplænearealer omkranset af haveanlæg og store træer. Bagerst i haven er anlagt en lille sø. Bag sidebygningen, med hesteboksene er der store indhegnede friarealer til hestene, og der er anlagt ridebane. Nuværende ejer har lejet tilstødende marker hos Haderslev Kommune.

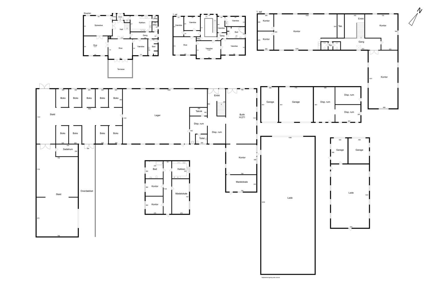
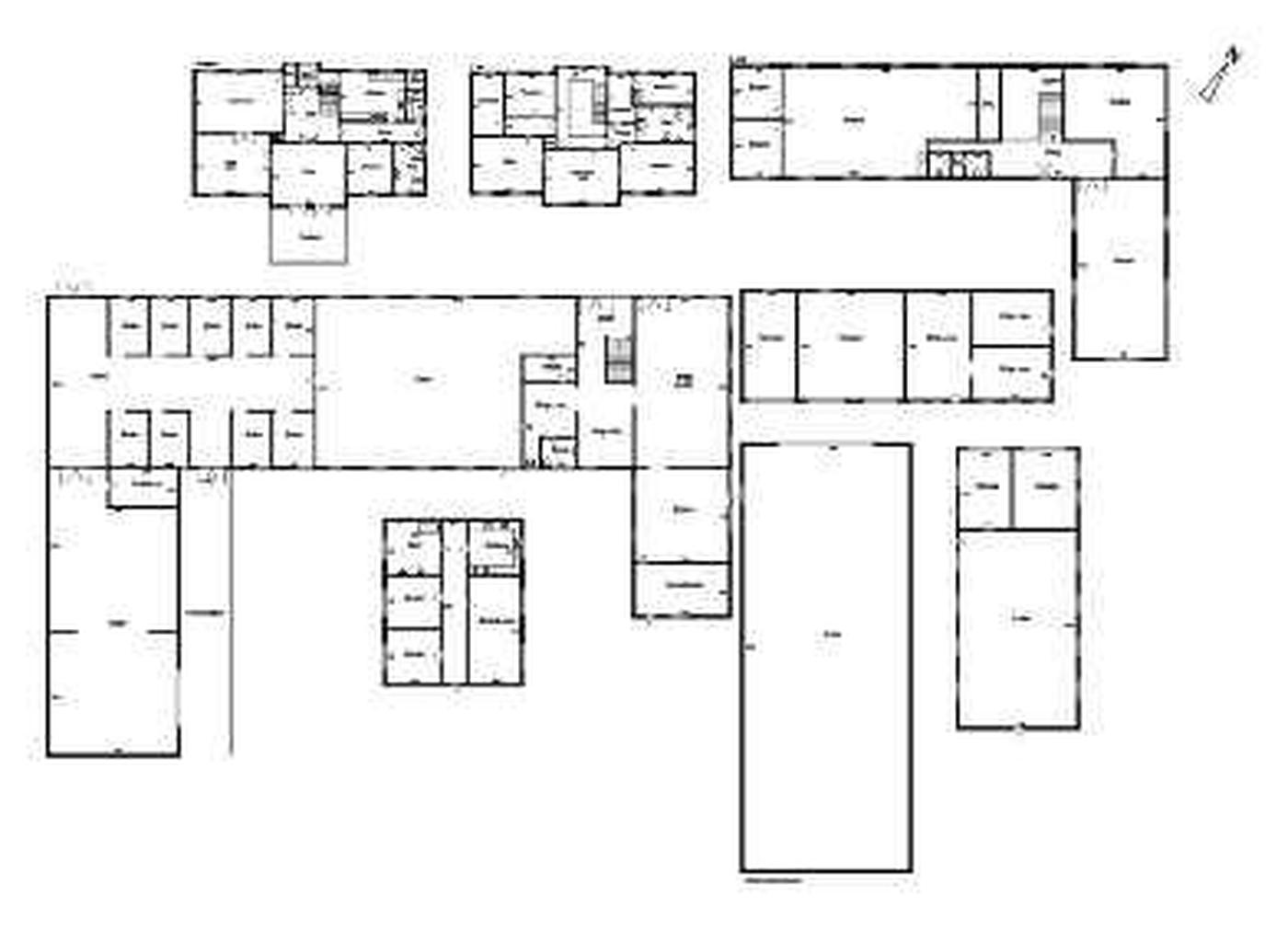
Den samlede ejendom består af i alt 5 bygninger, som her beskrives nærmere:

1. Privat herskabsbolig (tidligere stuehus)
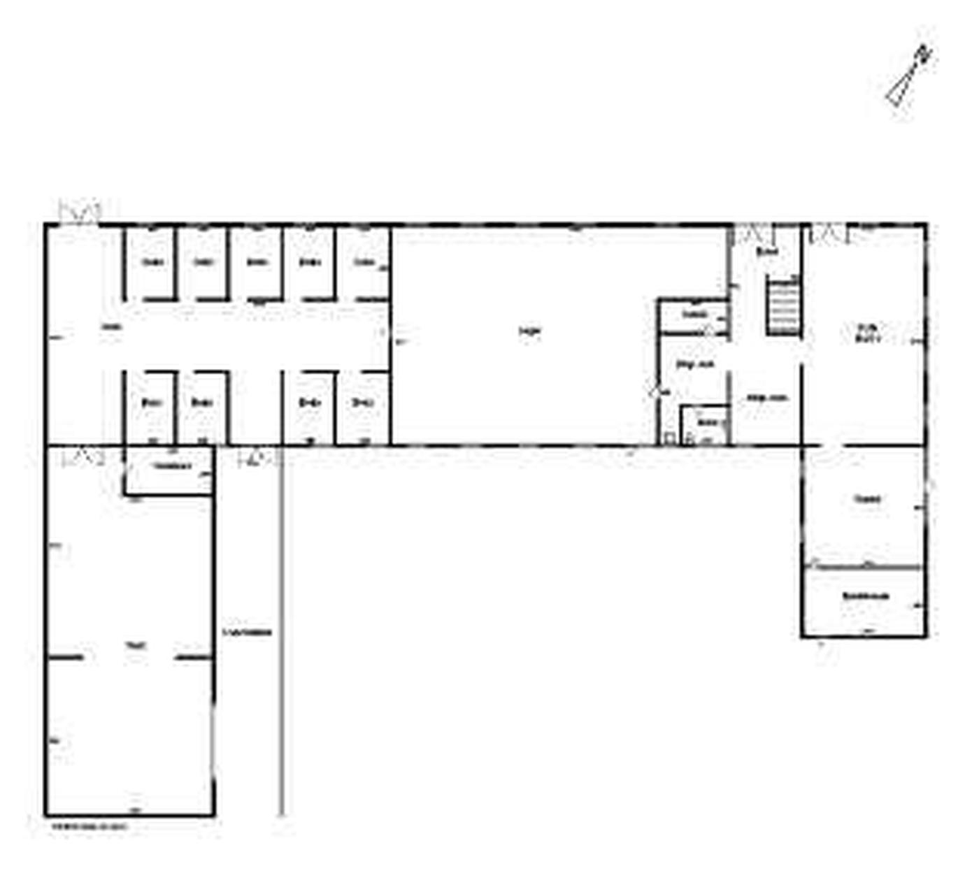
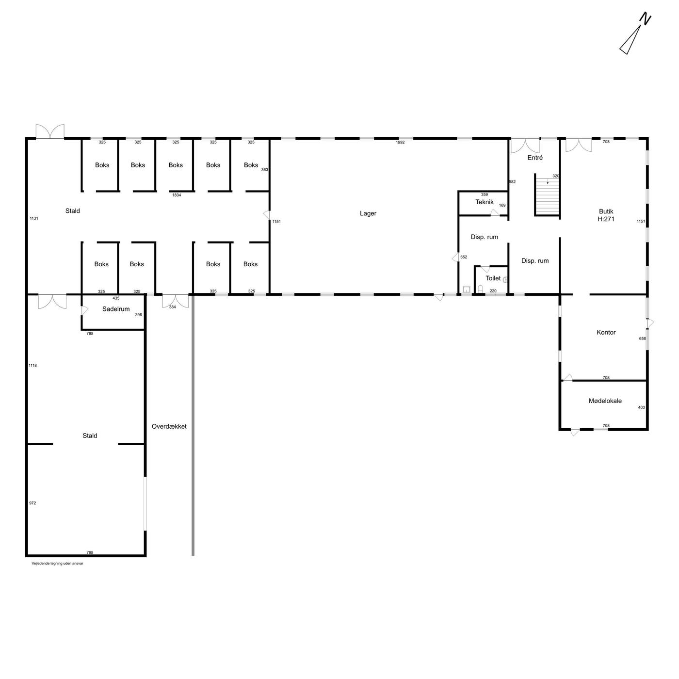
2. Erhvervsbygning med kontor, lager og butik (tidligere stalde)
3. Lade og maskinhus
4. Udhus / garagebygning
5. Udhus

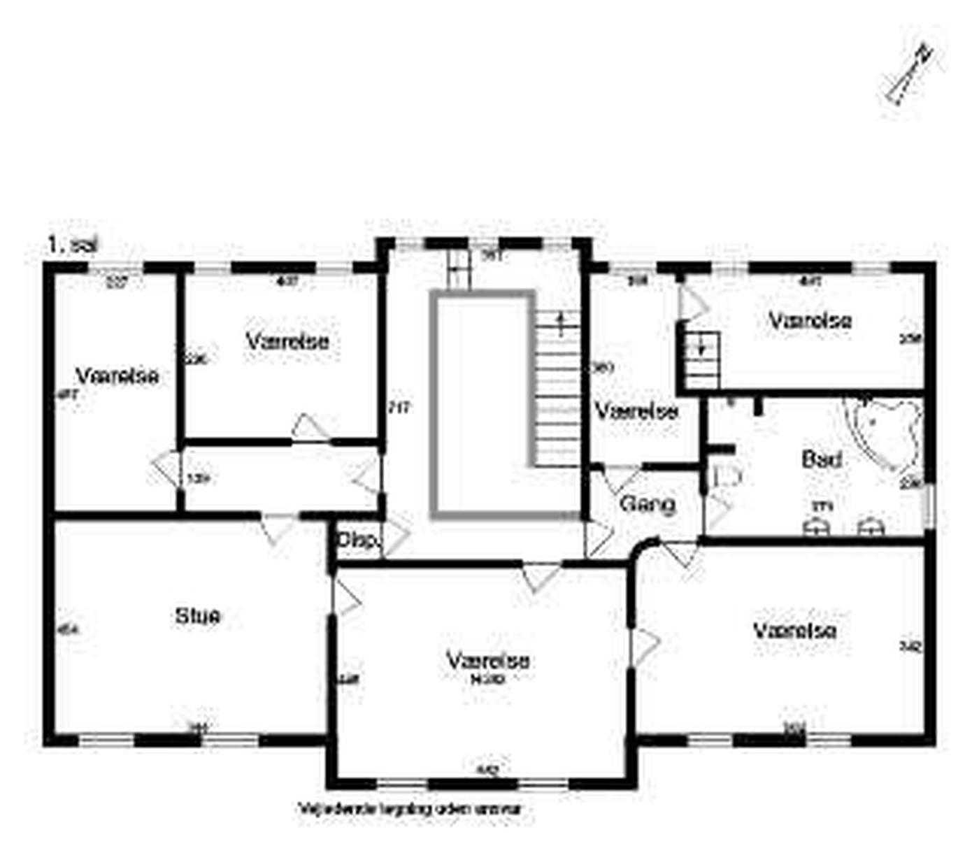
1. Privat herskabsbolig:
Stor bolig, som tidligere har været landejendommens stuehus. Bygningen fremstår i dag som en pragtfuld herskabelig palæejendom med sort glaseret tegltag. Ejendommen er opført som en klassisk herskabsvilla med mansardtag og har to fulde etager hvor den øverste etage indgår i tageetagen med vinduer i kviste. Ejendommen har fuld kælder med vinduer over terræn.

Stueplan og 1. sal er restaureret med respekt for ejendommens arkitektur og byggestil. Her kan bl.a. fremhæves de højloftede rum med stuklofter, samt store sprossede vinduespartier, fyldningsdøre, paneler og gerigter. I stueplan har ejendommen en stor hall i forbindelse med hovedindgangen. Fra hallen er der adgang til etagens 3 sammenhængende stuer, samt gang til supplerende værelser, stort køkken og badeværelse og bagindgang.

Fra hallen er der adgang til 1.salen via bredåbent trappe til repos/svalegang. Herfra er der adgang til 4 værelser, som enten er indrettet som soverum og/eller stue. Herudover stort og flot flisebelagt badeværelse med tilhørende spa.

Kælderetagen er indrettet med hyggestue i forbindelse med vinkælderen. Endvidere en række disponible værelser, badeværelse, vaskerum m.v.


2. Erhvervsbygning:
Den tidligere staldbygning er ligeledes flot restaureret og fremstår med nypudsede facader, nye vinduer og nyt sort bølgeeternittag, samt kviste med zinkinddækning.

Ejendommen indeholder istandsatte kontor/butikslokale i stueplan med tilhørende lager-/udstillingslokaler. Fra lageret er der adgang til hestestald med ca. 8 hestebokse. P.t. foreligger godkendelse til 4 heste og 1 føl.

¾ af 1. salen indeholder istandsatte kontorlokaler med egen indgang i stueplan. Lejemålet er med flotte mahognigulve lagt som skibsplankegulv med sorte fuger. Loftet er ført til kip med synlige bjælker fra konstruktionen. Vægge og lofter er udført i gipsplader og i tagryggen er der indlagt flere vinduespartier som giver lokalerne ekstra lysindfald.

Den sidste¼ af tagetagen er ikke udnyttet, men fremstår med ny tagbelægning og undertag med isolering.


3. Lade og maskinhus:
Laden og maskinhuset er bygget i forlængelse med ovenstående erhvervsbygning der tidligere var staldbygning. Laden er bygget med konstruktion i jernspær og bølgeblikplader på bygningens sider, samt bølgeeternitplader på tagfladen. Laden er uisoleret og med fast betongulv. Bagerst i laden er hele ejendommens varmeforsyning placeret. Varmeforsyningen består af et nyere fuldautomatisk brændselsfyr med træflis som brændsel.

4. Udhus garagebygning:
Bygningen ligger tæt ved herskabsboligen og har ligesom hovedbygningen sort glaseret teglstenstag. Bygningen har således fået restaureret tagkonstruktionen, men mangler herudover at få færdiggjort den indvendige istandsættelse. Det er planen at dele af bygningen isoleres og indrettes som opholdsrum. Resten af ejendommen anvendes som garage for 2 personbiler.

5. Udhus.
Denne bygning er ikke renoveret og fremstår med ældre tag af cementtagsten, men ligesom de øvrige bygninger er den opført i mursten og har pudset og malet facade. Bygningen anvendelse er p.t. sekundær, f.eks. depot- og værkstedsrum.

Læs mere

Denne ejendom er solgt

Vil du vide mere?

René Damkjær

red@nordicals.dk

+4523954466

Storegade 88, st, 6100 Haderslev

+4574532900

6100@nordicals.dk

Besøg vores mæglerside

Lignende ejendomme

Til top