Tingvejen 36B
6500 Vojens

Sagsnr. 211733

Ejendomstype

Etageareal

Grund

692 m²

5.875 m²

Erhvervsejendom i høj klasse fra 2008

Erhvervsejendom til bred målgruppe i høj standard.

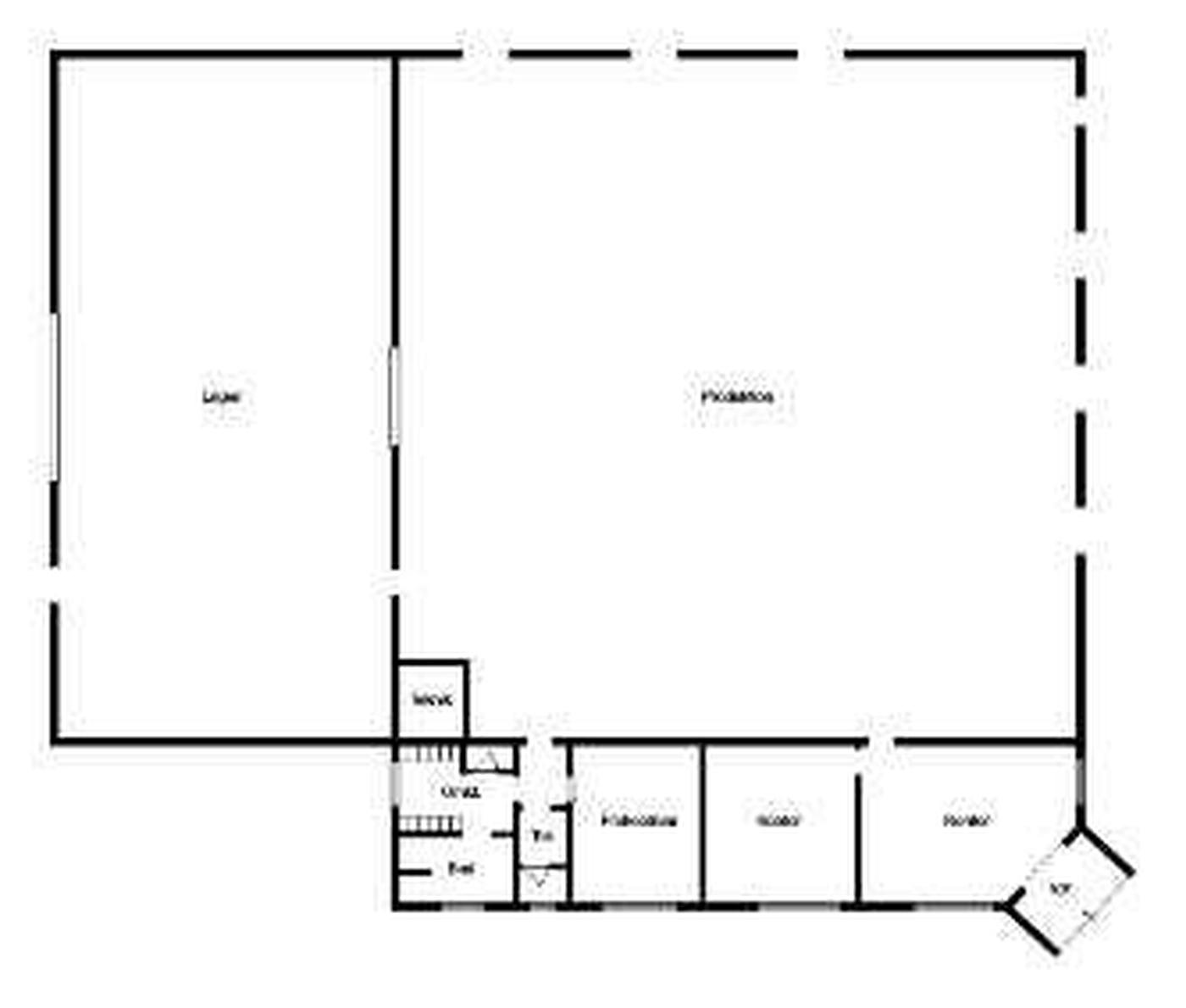
Ejendommen er opført af nuværende ejer i 2008 og benyttes til maskinfabrik. Ejendommen består af administrationsafdeling med overdækket kundeindgang, til entre med toilet, kontor og personaleafdeling med omklædning og frokostrum, hele denne afdeling er med gulvvarme og klinkegulv. Fra entreen er der udgang til produktionshallen med troldtektlofter og loft til kip. Fra det regulære produktionslokale er der adgang til værkførerkontor. Derudover er der i forlængelse af produktionshallen, lagerhal adskilt af port. Fra lageret er der elektrisk port til stort udenomsareal med gode manøvreringsmuligheder.

Ejendommen er opført i stålspær med ovenlysvinduer og glaspartier i gavlen mod Tingvejen, hvilket giver et helt naturligt og godt lysindfald til produktionsafdelingen. Ejendommen er beklædt med mørkegrå plader, som er nem at vedligeholde.

Eltavlen i ejendommen er bygget til 300 ampere, hvoraf der allerede er lagt 125 ampere ind.

Grundarealet er på ialt 5.875 m², hvoraf de 692 m² er bebygget, der er således rig mulighed for at udvide bebyggelsen på matriklen, hvis en køber har behov for mere plads på sigt.

En yderst flot og velholdt erhvervsejendom opført i høj standard, til den kvalitetsbevidste køber.

Læs mere

Denne ejendom er solgt

Vil du vide mere?

Lene Thiim Roelsen

ltr@nordicals.dk

+45 2091 0086

Storegade 88, st, 6100 Haderslev

+4574532900

6100@nordicals.dk

Besøg vores mæglerside

Lignende ejendomme

Til top