Håndværkervej 11
6600 Vejen

Sagsnr. 4188-S

Ejendomstype

Etageareal

Grund

Energiklasse

584 m²

2.600 m²

C

Kontantpris

Købspris pr. m²

Afkast

Årlig lejeindtægt

Årlig lejeindtægt pr. m²

Årlig driftsudgift

Årlig driftsudgift pr. m²

2.395.000 kr.

4.101 kr.

7,93 %

264.000 kr.

452 kr.

71.368 kr.

122 kr.

Investeringsejendom i Vejen

Introduktion:
Nordicals erhvervsmæglere udbyder denne investeringsejendom til salg i Vejen

Beliggenhed:
Ejendommen er beliggende i et område kendetegnet ved blandet industri og bolig, med god infrastruktur og nem adgang til både lokale og regionale transportforbindelser.
Vejen ligger centralt i Sydjylland og fungerer som et logistisk knudepunkt mellem Esbjerg, Kolding og motorvejsnettet E20, hvilket gør området attraktivt for virksomheder med behov for effektiv distribution og tilgængelighed.

Beskrivelse:
Parcelhuset er jf. BBR opført i 1978 i røde mursten med tegltag. Bygningen er på 162 m² indrettet med et pænt og stort moderne køkken med plads til stort spisebord, stor stue, soveværelse, stort kontor samt nydeligt badeværelse. Bag bygningen ud mod haven findes stor overdækket terrasse. Huset fremtræder meget pæn og i god vedligeholdelsesmæssig stand. Til huset hører en stor have.

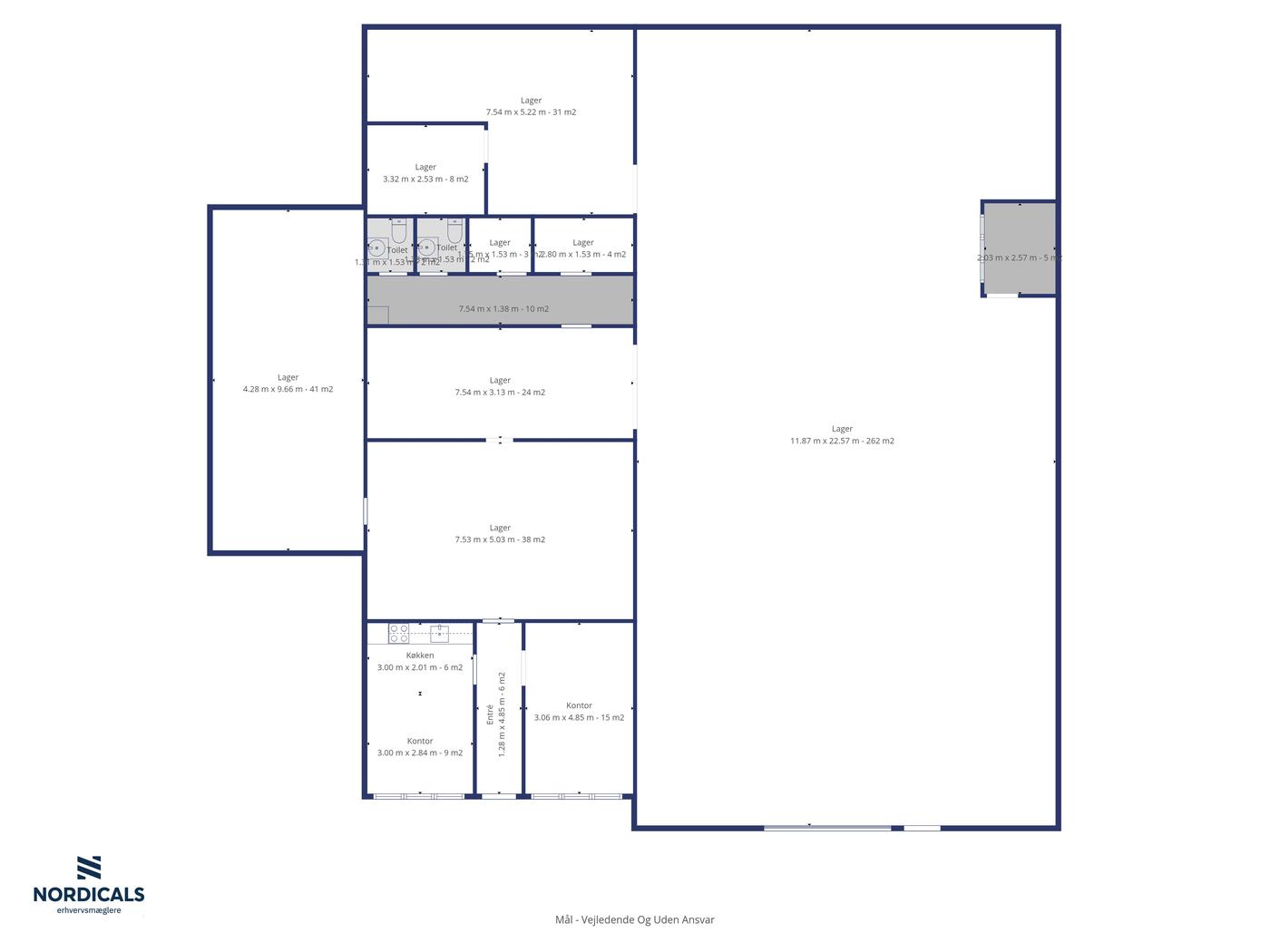
Erhvervsdelen omfatter sammenbyggede haller samt overdækket areal. Hallerne er opført i letbeton med eternittag og finder anvendelse for mange former for lager og produktion med gode personalefaciliteter. Den store hal er opvarmet, hvor begge haller er isoleret. Begge haller er udstyret med hejse-port ud mod den store gårdsplads.

Ønsker du yderligere information eller en fremvisning, er du velkommen til at kontakte os på telefon 7611 0160.

Læs mere

Vil du vide mere?

Martin Lind Bachmann

mlb@nordicals.dk

+45 6142 1945

Danmarksgade 36, 6700 Esbjerg

+4576110160

6700@nordicals.dk

Besøg vores mæglerside

Lignende ejendomme

Til top