Industrivej Vest 9-11
6600 Vejen

Sagsnr. 4063-S

Ejendomstype

Etageareal

Grund

3.468 m²

19.357 m²

Kontantpris

Købspris pr. m²

Årlig driftsudgift

Årlig driftsudgift pr. m²

17.500.000 kr.

5.046 kr.

109.415 kr.

32 kr.

Flot produktions- og lagerejendom med god beliggenhed

Introduktion:
Nordicals erhvervsmæglere udbyder erhvervsejendom til salg i Vejen.

Beliggenhed:
Ejendommen ligger midt i et veletableret erhvervsområde med god infrastruktur og nem adgang til både lokale og regionale transportforbindelser. Vejen ligger centralt i Sydjylland og fungerer som et logistisk knudepunkt mellem Esbjerg, Kolding og motorvejsnettet E20, hvilket gør området attraktivt for virksomheder med behov for effektiv distribution og tilgængelighed.

Af butikker i nærområdet kan nævnes T Hansen, Jem og Fix, Harald Nyborg, Jysk, Skousen mfl.

Med den unikke placering kan der indenfor en god time tiltrækkes arbejdskraft fra et opland, der består af Trekantområdet, Århus, Odense og Esbjerg.

Beskrivelse:
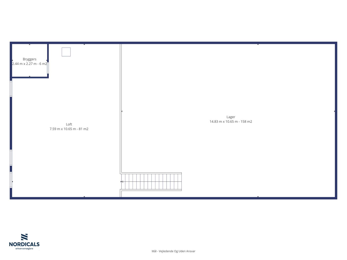
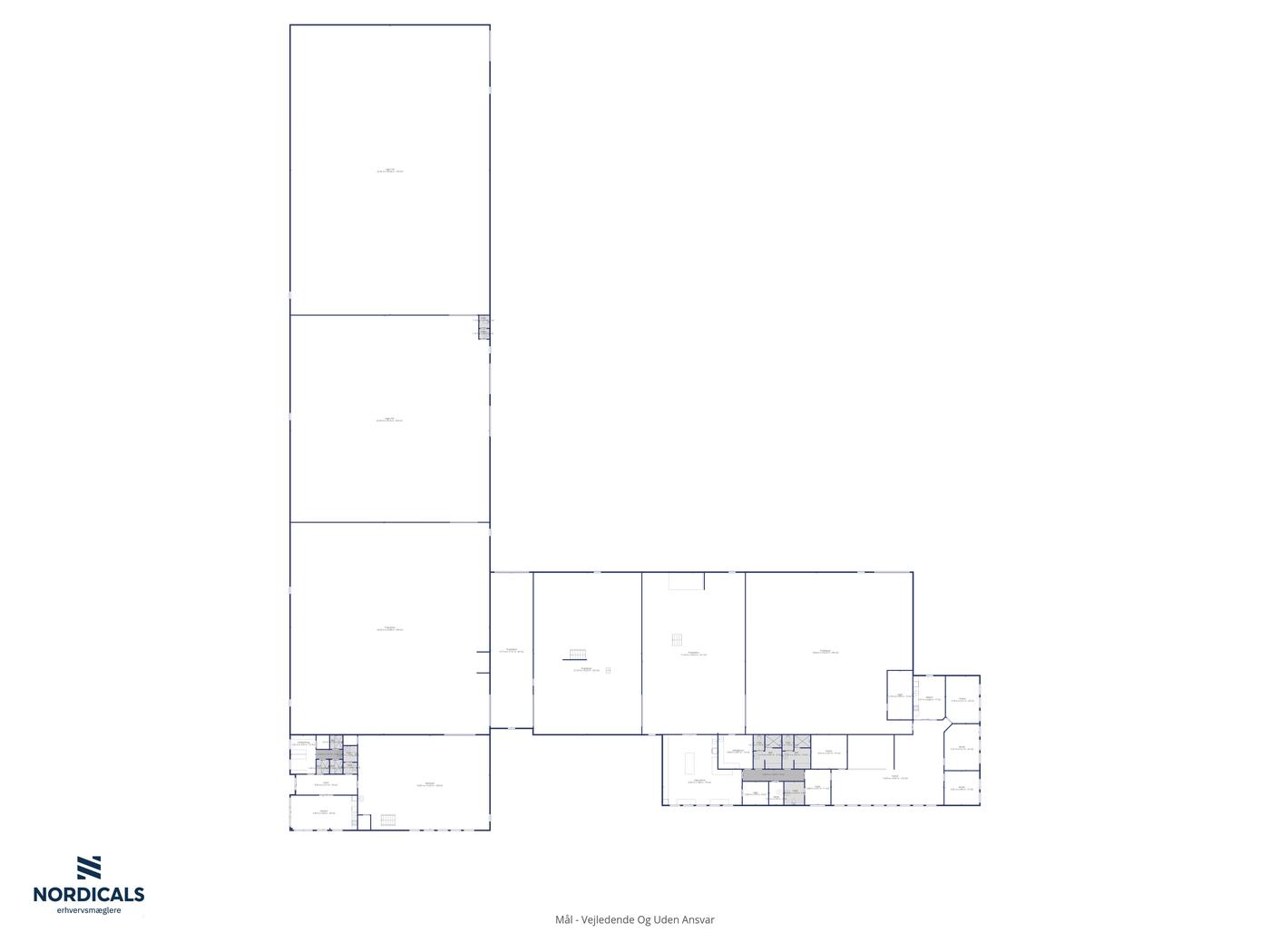
Ejendommen er ifølge BBR oprindeligt opført i 2010 og senere udvidet i 2017. Den samlede bygningsmasse udgør 3.468 m², hvoraf ca. 350 m² anvendes til administration, mens ca. 3.209 m² udgør lager- og produktionsarealer.

Lager- og produktionshallerne er indrettet med en loftshøjde på 6 meter og 10 meter til kip, hvilket giver fleksible produktions- og lagerforhold. Ejendommen fremstår generelt i meget velholdt stand og er samtidig velegnet til en eventuel opdeling.

Til ejendommen hører omkring 3 port indgange, hvilket giver en effektiv intern logistik og mulighed for fleksible arbejdsgange. Derudover er der etableret en læsserampe.

Ejendommen råder over en betydelig el kapacitet med en rettighed på 1.233 ampere, hvilket gør den velegnet til krævende produktion og teknisk udstyr, samt alt er klargjort til yderligere 1.233 ampere, der mangler kun at betales tilslutningsafgift.

Det er den nuværende ejers udgangspunkt at de, fortsætter som lejer af den del af lager- og produktionshallerne på 834 m², der er opført i 2010, samt ca. 127 m² kontor, der i dag anvendes som laboratorie og velfærdsfaciliteter, dette er dog til forhandling.

Udenomsarealerne er udlagt som et stort, befæstet areal med gode parkeringsforhold samt hensigtsmæssige adgangs- og manøvrearealer til både lager og produktion.

Den store grund består af to matrikler: én på 14.770 m² med bygninger og én på 4.587 m² som ubebygget grundstykke.

Anvendelse:
Ejendommens placering understøtter en bred vifte af erhvervsformål. Den centrale beliggenhed i Vejen Kommune kombineret med områdets erhvervsprofil og tilgængelighed gør ejendommen til et attraktivt investeringsobjekt.

Kontakt Nordicals erhvervsmæglere på tlf. 7611 0160 og forhør nærmere eller book en fremvisning.

Læs mere

Vil du vide mere?

Lene Thiim Roelsen

ltr@nordicals.dk

+45 2091 0086

Danmarksgade 36, 6700 Esbjerg

+4576110160

6700@nordicals.dk

Besøg vores mæglerside

Lignende ejendomme

Til top