Lynggårdsvej 2
6600 Vejen

Sagsnr. 3826-S

Ejendomstype

Etageareal

Grund

146 m²

282 m²

Kontantpris

Købspris pr. m²

Afkast

Årlig lejeindtægt

Årlig lejeindtægt pr. m²

Årlig driftsudgift

Årlig driftsudgift pr. m²

1.575.000 kr.

10.788 kr.

6,21 %

128.940 kr.

883 kr.

30.911 kr.

212 kr.

Investeringsejendom i Vejen

Introduktion:
Nordicals erhvervsmæglere udbyder denne investeringsejendom i Vejen til salg.

Beliggenhed:
Ejendommen er beliggende i Vejen Centrum. Fra ejendommen har man gåafstand til både indkøb, skole, banegården, gågaden og det indre byliv.

Beskrivelse:
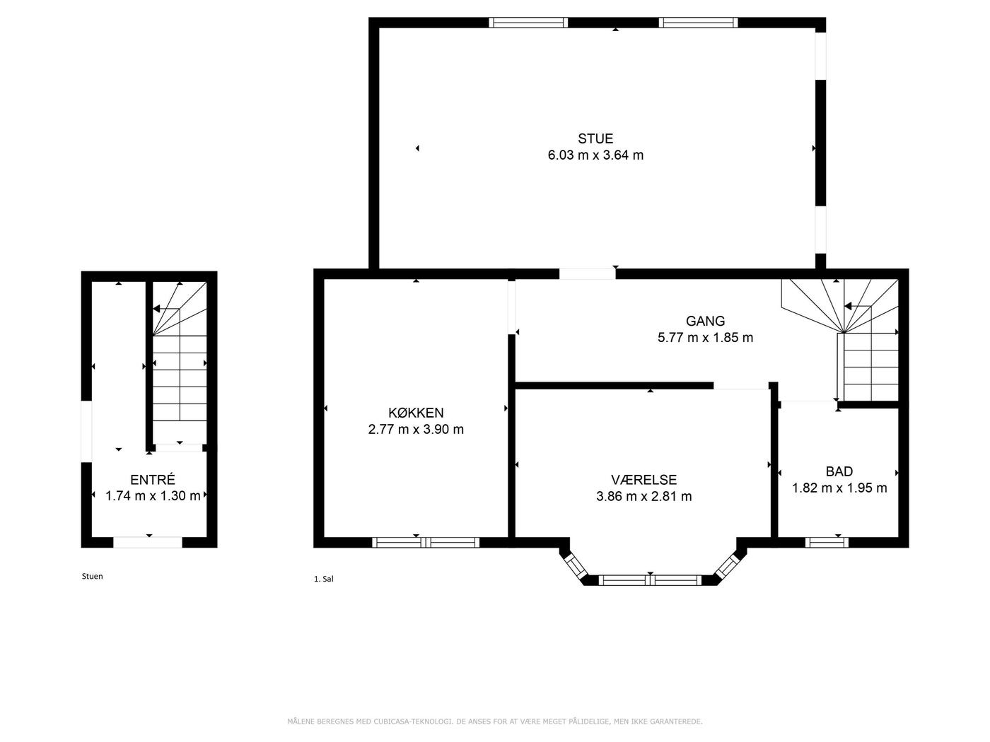
Ejendommen er jf. BBR opført i 1900 og til-/ombygget i 1980. Ejendommen er indrettet til 2 beboelse lejligheder.

Lejligheden i stuen er 81 m² med en tilbygning på ca. 39 m² som indeholder 2 ekstra værelser, lejligheden fremstår i fin stand, indrette med bryggers, toilet, køkken, stue og soveværelse.

Lejligheden på 1. salen er 65 m², her er badeværelset renoveret i 2020 med nye klinker, nye armaturer, bad og håndvask. Der er ligeledes lagt nye gulve i stue, gang og soveværelset. Køkkenet har fået nye låger og skuffer.

Bag ejendommen er en lille lukket gård/have med garage som deles mellem lejerne.

Det er aftalt at lejer i stuen parker ved siden af ejendommen på grunden, ellers er der mulighed for parkering ved vejen foran ejendommen.

Anvendelse:
Ejendommen kan anvendes til boligudlejningsejendom

Kunne du tænke dig at se nærmere på denne mulighed, så kontakt Nordicals erhvervsmæglere på 7611 0160.

Læs mere

Vil du vide mere?

René Lennart Madsen

rlm@nordicals.dk

+45 2311 6566

Danmarksgade 36, 6700 Esbjerg

+4576110160

6700@nordicals.dk

Besøg vores mæglerside

Lignende ejendomme

Til top