Darumvej 134
6700 Esbjerg

Sagsnr. 5427-L

Ejendomstype

Etageareal

Grund

1.722 m²

4.407 m²

Årlig leje

Leje pr. m²

Depositum

346.597 kr.

201 kr.

173.299 kr.

Ejendom med stor lagerkapasitet til leje i Esbjerg

Introduktion:
Nordicals Erhvervsmæglere tilbyder en velbeliggende erhvervsejendom i Esbjerg til leje. Ejendommen har tidligere været hjemsted for ESBJERG LISTEFABRIK A/S og kan overtages snarest.

Beliggenhed:
Ejendommen har en beliggenhed med nem tilkørsel fra både Gammelby Ringvej og E20 motorvejen. Dette sikrer smidig adgang og hurtig forbindelse til det øvrige vejnet uden at ligge forlang væk fra centrum. Dertil ligger lejemålet tæt på Måde industriområde, hvor man finder et stort spænd af diverse virksomheder.
Til ejendommen hører en 4407 m² stor grund, befæstet og udlagt primært til parkering og afsætning.

Beskrivelse:
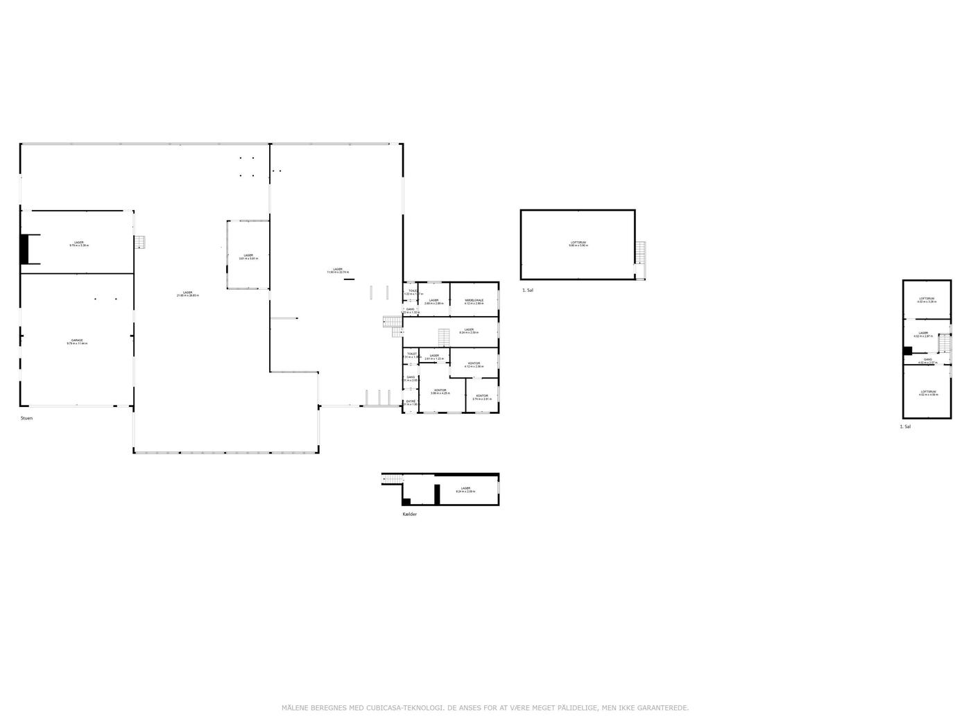
Lejemålet spænder over 1722 m² og består af fire separate bygninger med forskellige størrelser og formål. Bygning 1 udgør 915 m² og indeholder desuden et separat administration- og kontorområde. Bygning 2 udgør 253 m², Bygning 3 udgør 246 m², og Bygning 4 er på 308 m² med et lager med højt til loftet. Dette giver en bred vifte af muligheder for opbevaring, værksted eller produktionsaktiviteter.

Anvendelse:
Ejendommen er ideel til industrielle formål, herunder lager, værksted og garagefaciliteter. Den tidligere brug som produktionssted for ESBJERG LISTEFABRIK A/S bevidner om faciliteternes egnethed til produktionsaktiviteter og relaterede formål. Flere porte giver praktisk adgang til de forskellige bygninger, og den betydelige plads foran ejendommen giver rigelig parkering til medarbejdere og besøgende.

Kontakt Nordicals og hør nærmere eller book en fremvisning på 7611 0160.

Læs mere

Vil du vide mere?

René Lennart Madsen

rlm@nordicals.dk

+45 2311 6566

Danmarksgade 36, 6700 Esbjerg

+4576110160

6700@nordicals.dk

Besøg vores mæglerside

Lignende ejendomme

Til top