Fiskerihavnsgade 9
6700 Esbjerg

Sagsnr. 5470-L

Ejendomstype

Etageareal

Grund

Energiklasse

194 m²

2.085 m²

F

Kontorlejemål på Esbjerg Havn

Introduktion:
Nordicals erhvervsmæglere tilbyder en velbeliggende erhvervsejendom på Esbjerg Havn til leje. Lejemålet er på 194 m² og kan overtages snarest.

Beliggenhed:
Ejendommen ligger forrest på grunden ud mod Fiskerihavnsgade og har en meget synlig beliggenhed. Udover dette får man den bedste udsigt ud over det pulserende liv i Esbjerg Havn.
Ejendommen kan anvendes til mange formål indenfor handelsvirksomhed og administration. I området ligger bl.a. Hjem Is depot samt lige ved siden af, Vesterhavsfisk og Gårdbutikken.

Beskrivelse:
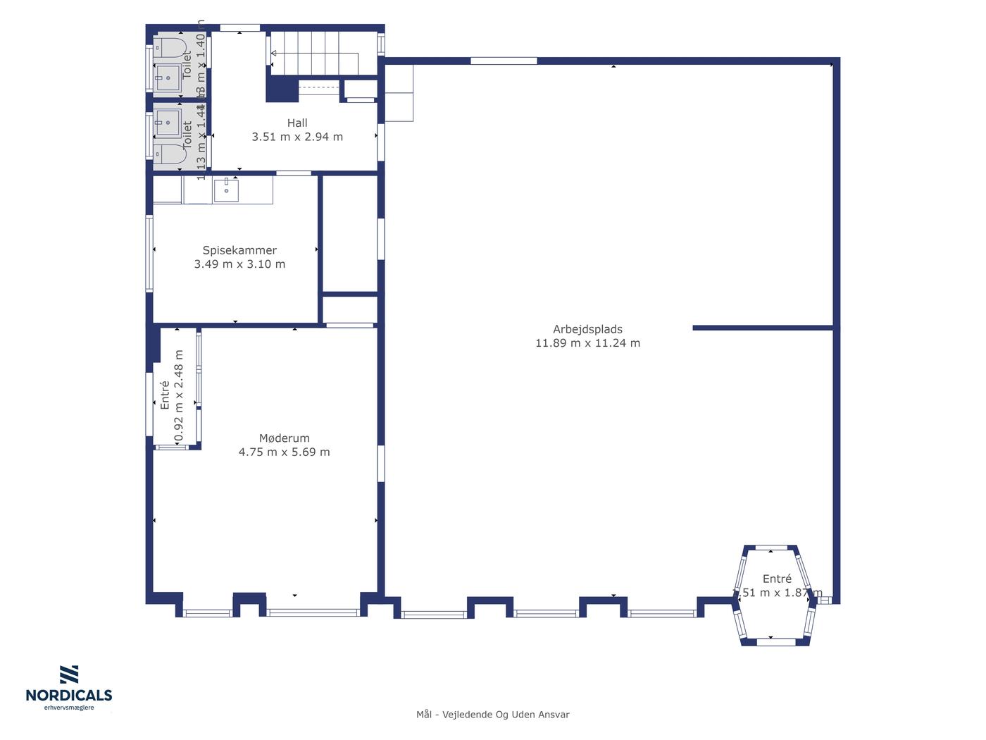
Ejendommen på 194 m² er opført i 1962 og er ude som inde i meget pæn vedligeholdelsesmæssig stand.

Indrettet med et pænt indgangsparti, som leder ind i det store fælles kontorlokale, som byder på et godt lysindfald og en fin udsigt til havnekajen. Udover dette er der også et større og lyst mødelokale, ligeså med udsigt til havnekajen. Lille fint frokostrum med et tekøkken.

Foran og på siden af kontorbygningen er der gode parkeringsforhold.

Forbrug afregnes efter bimåler. Der vil være mulighed for at tilgå frokostordning mod betaling.

Anvendelse:
Med sin attraktive beliggenhed og fleksible indretning byder lejemålet på mange muligheder for anvendelse. Lokalerne egner sig til langt de fleste kontor- og serviceerhverv, f.eks. inden for revision, rådgivning, bureau-, arkitekt- eller ingeniørvirksomhed.

Forhør nærmere og aftal en fremvisning på 7611 0160.

Læs mere

Denne ejendom er udlejet

Vil du vide mere?

René Lennart Madsen

rlm@nordicals.dk

+45 2311 6566

Danmarksgade 36, 6700 Esbjerg

+4576110160

6700@nordicals.dk

Besøg vores mæglerside

Lignende ejendomme

Til top