Kongensgade 68
6700 Esbjerg

Sagsnr. 3726-S

Ejendomstype

Etageareal

Grund

1.332 m²

580 m²

Kontantpris

Købspris pr. m²

Afkast

Årlig lejeindtægt

Årlig lejeindtægt pr. m²

Årlig driftsudgift

Årlig driftsudgift pr. m²

32.000.000 kr.

24.024 kr.

5,87 %

2.162.371 kr.

1.623 kr.

293.952 kr.

221 kr.

Investeringsejendom i Esbjerg Gågade

Introduktion:
Nordicals erhvervsmæglere udbyder denne investeringsejendom i Esbjerg Gågade til salg.

Beliggenhed:
Beliggende i en flot og markant ejendom på hjørnet ved Kongensgade og Kirkegade, har lejemålene en optimal placering som sikrer både gågadebeliggenhed, og stor synlig mod den kørende trafik i Kirkegade. Der er således de bedste eksponeringsmuligheder og garanti for mange daglige forbipasserende.

Der er gode adgangsforhold for kunder og personale, samt rigtige gode offentlige parkeringsmuligheder til kunderne. I centrum findes der flere offentlige P-pladser tæt på, bl.a. i Borgergade, Danmarksgade og Havnegade. Ligeledes er der gode forbindelser med kollektiv trafik til og fra midtbyen.

Beskrivelse:
Ejendommen er jf. BBR opført i 1896 men til-/ombygget i 2019.

Ejendommen indeholder 882 m² erhverv, fordelt mellem 2 erhvervslejer - Espresso House og Butik Frandsen.

Espresso House er beliggende i gadeplan og på 1. salen, samt et mindre areal i kælderen.

Butik Frandsen er ligeledes beliggende i gadeplan og har lager på 1. salen.

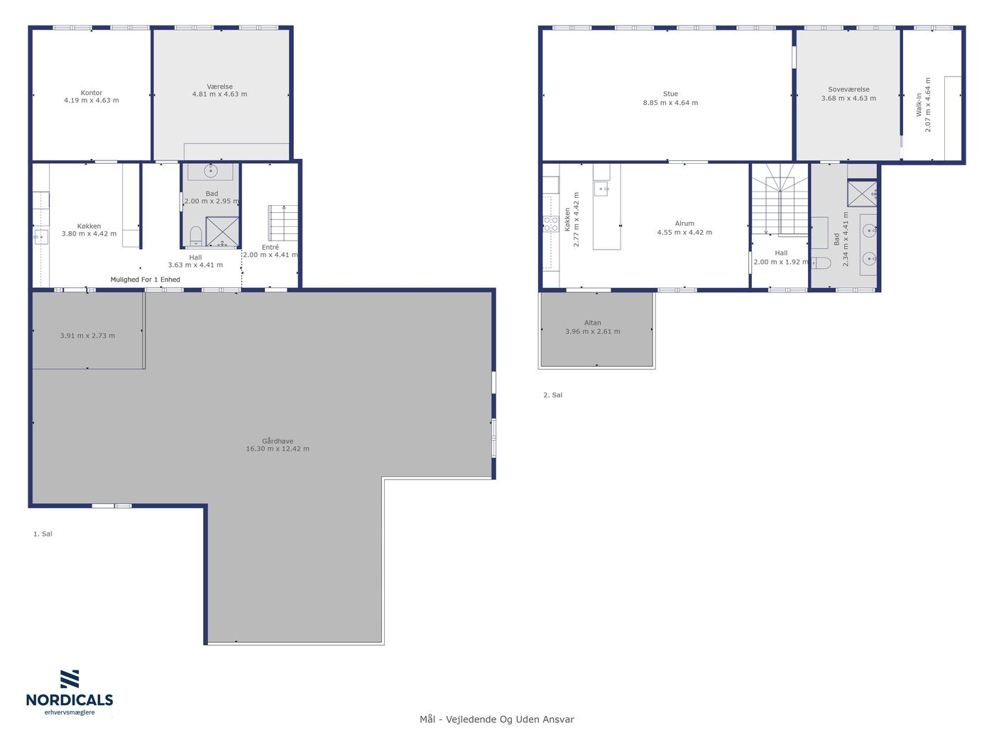
Derudover er 1. salen indrettet til en lejlighed i to plan på 236 m², med mulighed for at omdannes til 2 lejligheder., hvilket er nemt da installationerne allerede er på plads.
Den kan opdeles med én lejlighed på begge på etager. Denne lejlighed blev fuldstændig opdateret i 2019.

2. salen er indrettet til 2 lejligheder på hhv. 125 m² og 89 m².

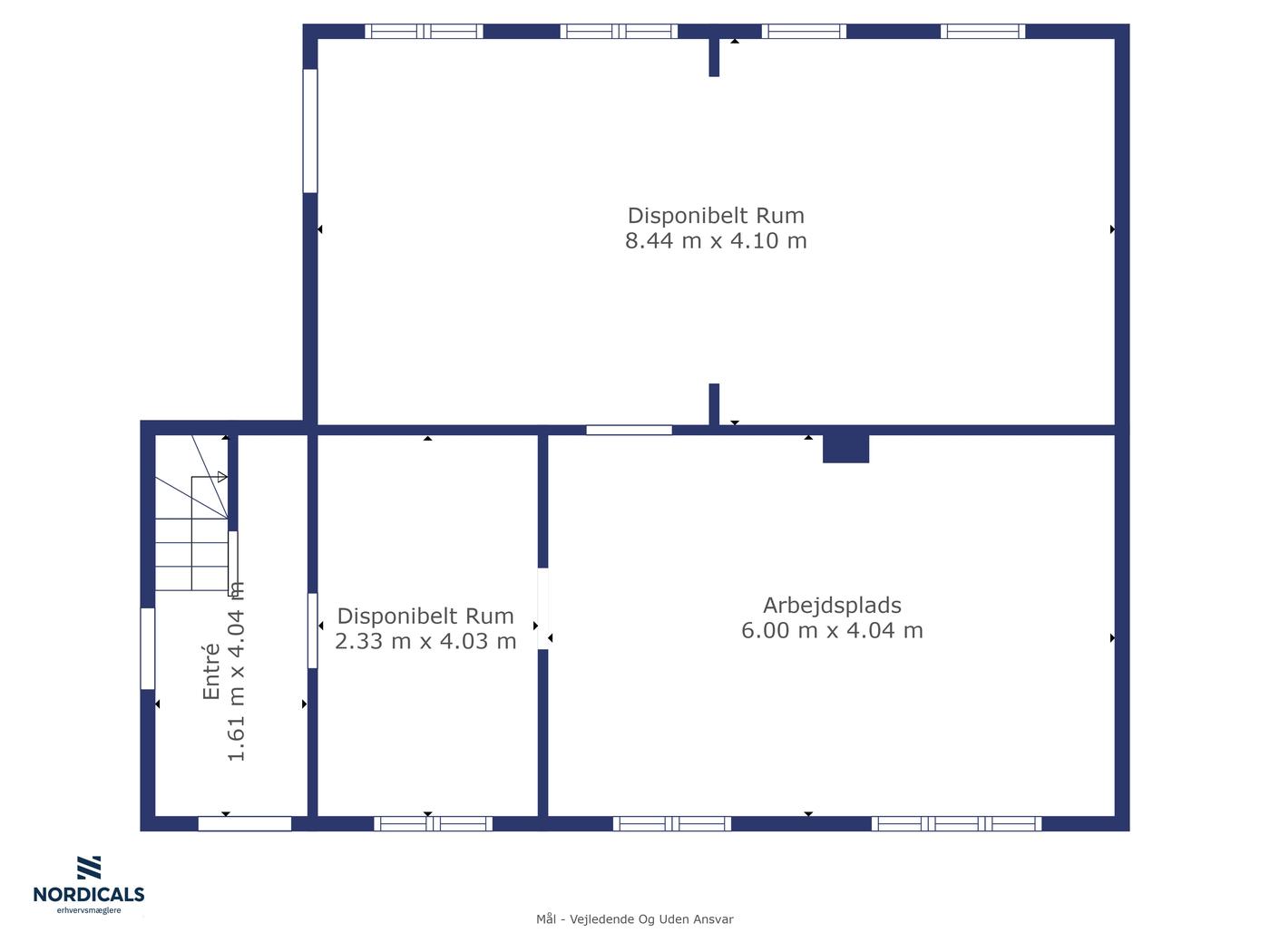
Tilhørende ejendommen er et stort loftrum med muligt potentiale.

Alle lejlighederne fremstår yderst flot strand, ligeledes gør erhvervslejemålene.

Kontakt Nordicals på 7611 0160 og forhør nærmere eller book en fremvisning.

Læs mere

Vil du vide mere?

Martin Lind Bachmann

mlb@nordicals.dk

+45 6142 1945

Danmarksgade 36, 6700 Esbjerg

+4576110160

6700@nordicals.dk

Besøg vores mæglerside

Lignende ejendomme

Til top