Kongensgade 50, st.
6700 Esbjerg

Sagsnr. 5496-L

Ejendomstype

Etageareal

Grund

184 m²

245 m²

Årlig leje

Leje pr. m²

Depositum

Årlig driftsudgift

Årlig driftsudgift pr. m²

335.000 kr.

1.821 kr.

167.500 kr.

1.443 kr.

8 kr.

Butikslokale ledigt i Kongensgade tæt på torvet

Introduktion:
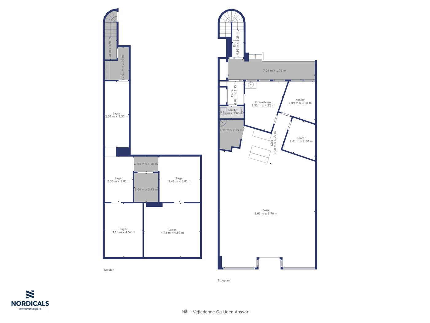
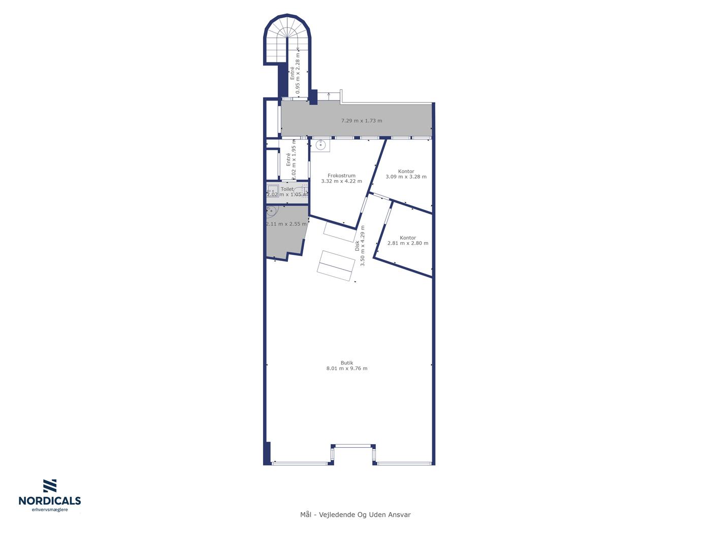
På Kongensgade 50, 6700 Esbjerg, tilbydes et attraktivt lejemål på 134 m2, ideelt til detailhandel eller showroom. Lejemålet er perfekt til en virksomhed, der ønsker en synlig placering midt i Esbjergs gågade.

Beliggenhed:
Lejemålet er centralt beliggende i Esbjergs populære gågade, tæt på torvet, hvor en høj daglig trafik af både lokale og besøgende sikrer masser af opmærksomhed. Området er kendt for sine mange butikker og caféer, og denne placering tilbyder en unik mulighed for synlighed og tilgængelighed.

Beskrivelse:
Lejemålet er tidligere benyttet af Profil Optik og er indrettet med store facadevinduer, som giver god eksponering til forbipasserende. Indretningen - som i øvrigt er fleksibel - består aktuelt af et rummeligt salgslokale, to kontorer, et toilet og et personalerum. Udover de 134 m2 i stueplan hører der til lejemålet 50 m2 lager i kælder.

Anvendelse:
Dette lejemål er ideelt til en butik, showroom eller andet, der har brug for synlighed og plads til lager. Med en fleksibel indretning og fremragende beliggenhed kan det nemt tilpasses forskellige forretningsbehov og brancher.

Læs mere

Vil du vide mere?

Kristoffer Weller Jensen

kje@nordicals.dk

+45 2176 3108

Danmarksgade 36, 6700 Esbjerg

+4576110160

6700@nordicals.dk

Besøg vores mæglerside

Lignende ejendomme

Til top