Kongensgade 40
6700 Esbjerg

Sagsnr. 5589-L

Ejendomstype

Etageareal

Grund

Energiklasse

977 m²

517 m²

D

Årlig leje

Leje pr. m²

Depositum

Årlig driftsudgift

Årlig driftsudgift pr. m²

867.400 kr.

888 kr.

433.700 kr.

61.221 kr.

63 kr.

Butikslejemål på Torvet i Esbjerg

Introduktion:
Nordicals udbyder en sjælden mulighed for at leje en velkendt og centralt placeret ejendom midt på Torvet i Esbjerg. Ejendommen har tidligere huset McDonald's og tilbyder nu rummelige og fleksible lokaler, ideelle til restauration og kontor. Lejemålet kan overtages snarest.

Beliggenhed:
Torvet i Esbjerg er byens centrale og mest ikoniske plads - et naturligt samlingspunkt for både lokale og besøgende. Området er præget af historiske bygninger, moderne byrum og et aktivt handelsliv, hvilket gør det til en attraktiv placering for både restauration og erhverv.

Torvet fungerer som centrum for byens puls med løbende aktiviteter som markeder, koncerter og kulturelle events. Om sommeren er der liv og udeservering fra nærliggende caféer og restauranter, mens vinteren byder på skøjtebane og julehytteby.

Med over 200 specialforretninger, caféer og restauranter i nærområdet er der et bredt udvalg af både dagligvarebutikker, mode, elektronik og personlig pleje.

Gågaden og Broen Shoppingcenter ligger i umiddelbar nærhed og tiltrækker dagligt mange besøgende.

Torvet ligger centralt med nem adgang til offentlig transport og gode parkeringsmuligheder. Der er kort afstand til Esbjerg Banegård og flere buslinjer, hvilket gør det let for både kunder og medarbejdere at komme til og fra området.

Beskrivelse:
Stueetagen byder på 310 m² med store facadevinduer ud mod Torvet, hvilket giver optimal synlighed og eksponering. Lokalet er oplagt til café, restaurant eller takeaway med mulighed for udeservering.

På 1. sal findes yderligere 315 m², som kan anvendes til spiseområde, lounge eller selskabslokaler. Etagen har god adgang via intern trappe og mulighed for fleksibel indretning.

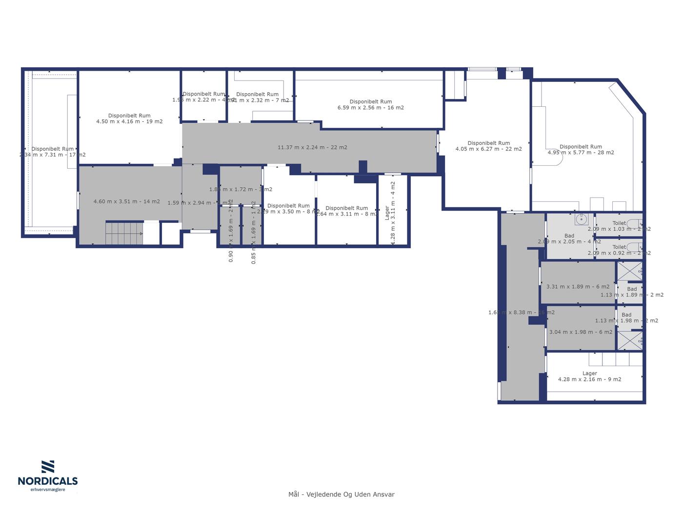
Kælderen rummer 315 m² og er funktionel med toiletforhold samt mulighed for lager, personalerum og teknikrum.

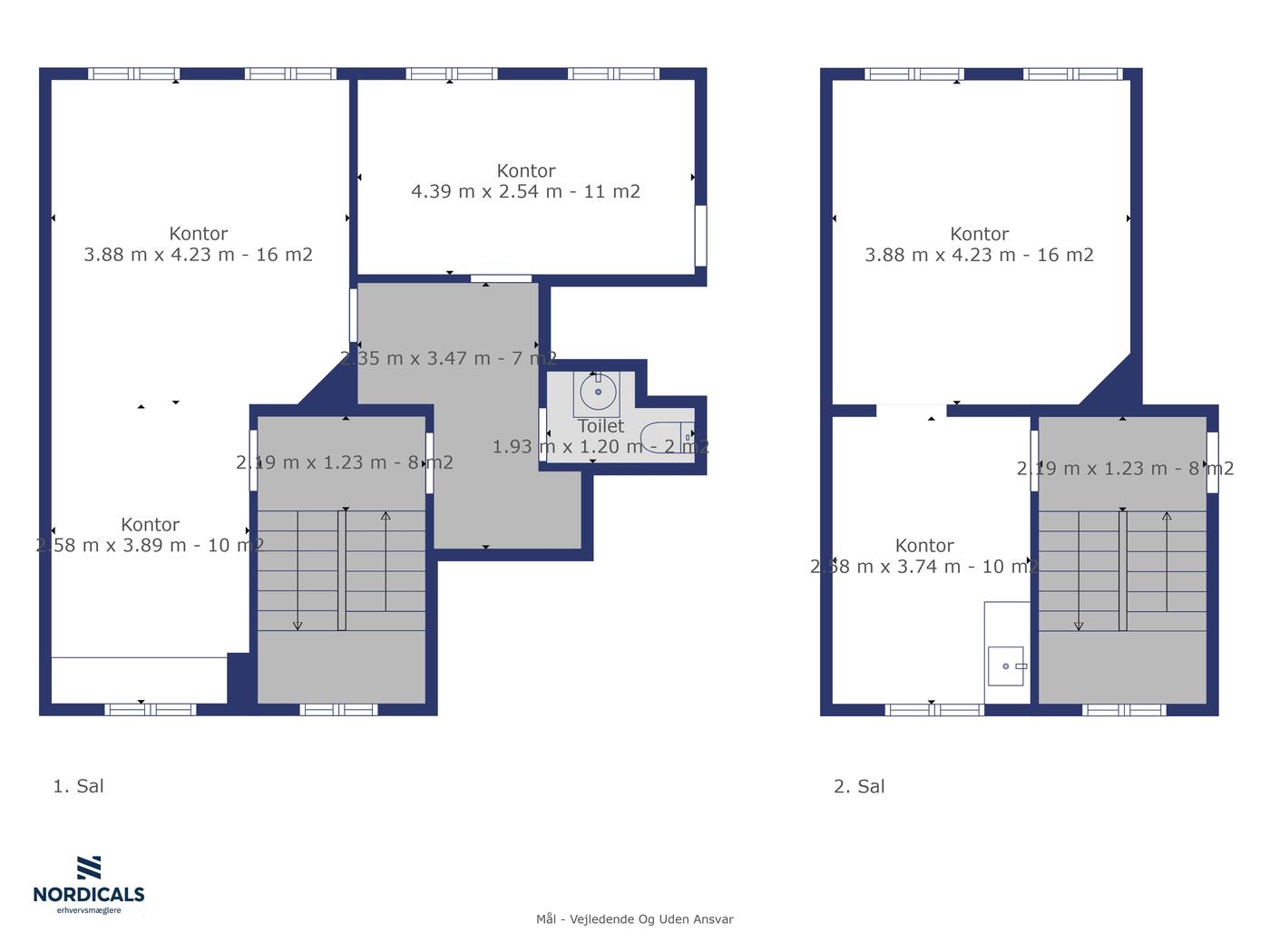
Øverst i ejendommen ligger et mindre kontorareal på 37 m², perfekt til administration, mødelokale eller personaleområde.

Anvendelse:
Ejendommen kan anvendes til mange forskellig formål, herunder detail, café, resultant, liberal erhverv eller lignende.

Kontakt Nordicals allerede i dag på 7611 0160 og book en fremvisning

Læs mere

Vil du vide mere?

Martin Lind Bachmann

mlb@nordicals.dk

+45 6142 1945

Danmarksgade 36, 6700 Esbjerg

+4576110160

6700@nordicals.dk

Besøg vores mæglerside

Lignende ejendomme

Til top