Kongensgade 77, st. th.
6700 Esbjerg

Sagsnr. 5637-L

Ejendomstype

Etageareal

Grund

Energiklasse

220 m²

560 m²

D

Årlig leje

Leje pr. m²

Depositum

Årlig driftsudgift

Årlig driftsudgift pr. m²

234.000 kr.

1.064 kr.

58.500 kr.

7.423 kr.

34 kr.

Synligt og indbydende butikslokale midt i Kongensgade

Introduktion:
Nordicals erhvervsmæglere udbyder nu Kongensgade 77, st. th. til leje. Lejemålet er beliggende på Esbjergs eftertragtede gågade med høj synlighed og et stort dagligt flow af handlende. Lejemålet har tidligere været anvendt af Vero Moda butikken.

Beliggenhed:
Kongensgade er Esbjerg primære handelsstrøg med et bredt udvalg af butikker, caféer og serviceerhverv. Området er kendetaget ved et levende bymiljø og god kundetrafik hele dagen. Nærliggende butikker, Søstrene Grene, City Guld, Smarteyes og Føtex.
Der er desuden gode parkeringsmuligheder i nærområdet.

Beskrivelse:
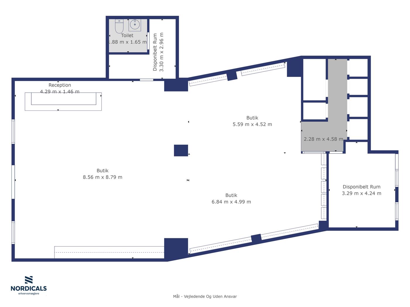
Lejemålet fremstår lyst og imødekommende med store facadevinduer, der giver en markant eksponering mod gaden. Lokalet består af et regulært butikslokale med gode indretningsmuligheder samt baglokale med plads til lager, personalefaciliteter eller kontor efter behov. Der er egen indgang direkte fra gågaden, hvilket sikrer let adgang for kunder og besøgende.

Anvendelse:
Lejemålet er velegnet til detailhandel, service, klinik eller anden erhvervsmæssig anvendelse, som passer ind i den eksisterende handelsgade.

Kontakt Nordicals for mere info eller booke en fremvisning på telefon 7611 0160.

Læs mere

Vil du vide mere?

Lene Thiim Roelsen

ltr@nordicals.dk

+45 2091 0086

Danmarksgade 36, 6700 Esbjerg

+4576110160

6700@nordicals.dk

Besøg vores mæglerside

Lignende ejendomme

Til top