Norgesgade 2, st. th.
6700 Esbjerg

Sagsnr. 5469-L

Ejendomstype

Etageareal

Grund

Energiklasse

120 m²

571 m²

C

Flot & moderne lejemål i Esbjerg centrum

Introduktion:
Vi er glade for at kunne præsentere denne velbeliggende erhvervslejlighed i hjertet af Esbjerg centrum, nu til leje hos Nordicals Esbjerg.
Beliggenhed:
Denne enhed er en del af en større ejendom, der er placeret ved Esbjerg banegård. Du vil også finde shopping centeret Broen og gågaden i nærheden.

Der er gode parkeringsmuligheder på banegårds- og museumspladsen, hvilket gør det nemt for dine ansatte, kunder eller klienter at parkere tæt på. Derudover tilbydes muligheden for at leje parkeringspladser i parkeringskælderen på Danmarksgade 3 for kun 750 kr. pr. måned. Parkeringskælderen er aflåst og tilgængelig via en automatisk port.

Beskrivelse:
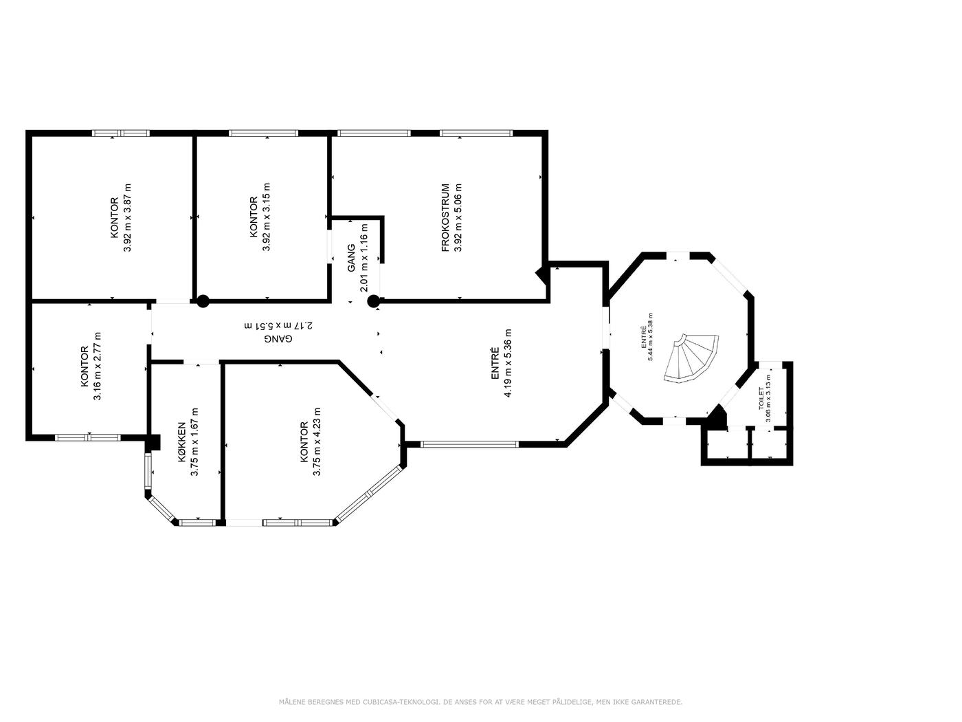
Ejendommen er en rød murstensejendom fra 1992 og kan tilgås via en fælles opgang, som deles med to andre enheder. Ved indgangen finder du tre toiletter. Indenfor venter et større lokale, hvorfra der er adgang til fire separate kontorer og et køkken.

Den nuværende ejer har gennem perioden 2011-2024 foretaget flere omfattende renoveringer, herunder udskiftning af gulve, belysning, køkkenet, varmtvandsbeholder og pumpe, samt udskiftning af flere vinduer. Der er desuden blevet installeret aircondition i flere rum, og i 2019 blev hele lejligheden malet.

Anvendelse:
Denne ejendom egner sig til en bred vifte af formål, herunder kontor, klinik, salon eller andre liberale erhverv. Alt fremstår i pæn og ordentlig stand, så du kan begynde at arbejde næsten med det samme efter indflytning.

Ønsker du yderligere info eller en fremvisning af lejemålet, så kontakt Nordicals erhvervsmæglere på 7611 0160.

Læs mere

Denne ejendom er udlejet

Vil du vide mere?

Martin Lind Bachmann

mlb@nordicals.dk

+45 6142 1945

Danmarksgade 36, 6700 Esbjerg

+4576110160

6700@nordicals.dk

Besøg vores mæglerside

Lignende ejendomme

Til top