Introduktion:
Nordicals erhvervsmæglere udbyder nu denne spændende kontor- og forretningsejerlejlighed til salg.
Beliggenhed:
Ejerlejligheden er beliggende i en markant ejendom i indre Esbjerg, der rummer både kontorenheder, fitness centre, speciallægeklinik og boliger.
Ejerlejligheden har en stor synlighed mod den aktive og tættrafikkerede Strandbygade. I området findes alt hvad centrum tilbyder, fra Musikhuset til gågaden og diverse caféer, til en mangfoldighed af virksomheder - såvel kunder som potentielle samarbejdspartnere. 
I centrum er der gode parkeringsmuligheder, ligesom der er gode forbindelser til og fra lokationen med offentlig transport. Der er endvidere p-kælder under bygningen med direkte adgang til lokalerne via egen elevator.
Beskrivelse:
Ejendommen er jf. BBR opført i 1978 til-/ombygget i 2019.
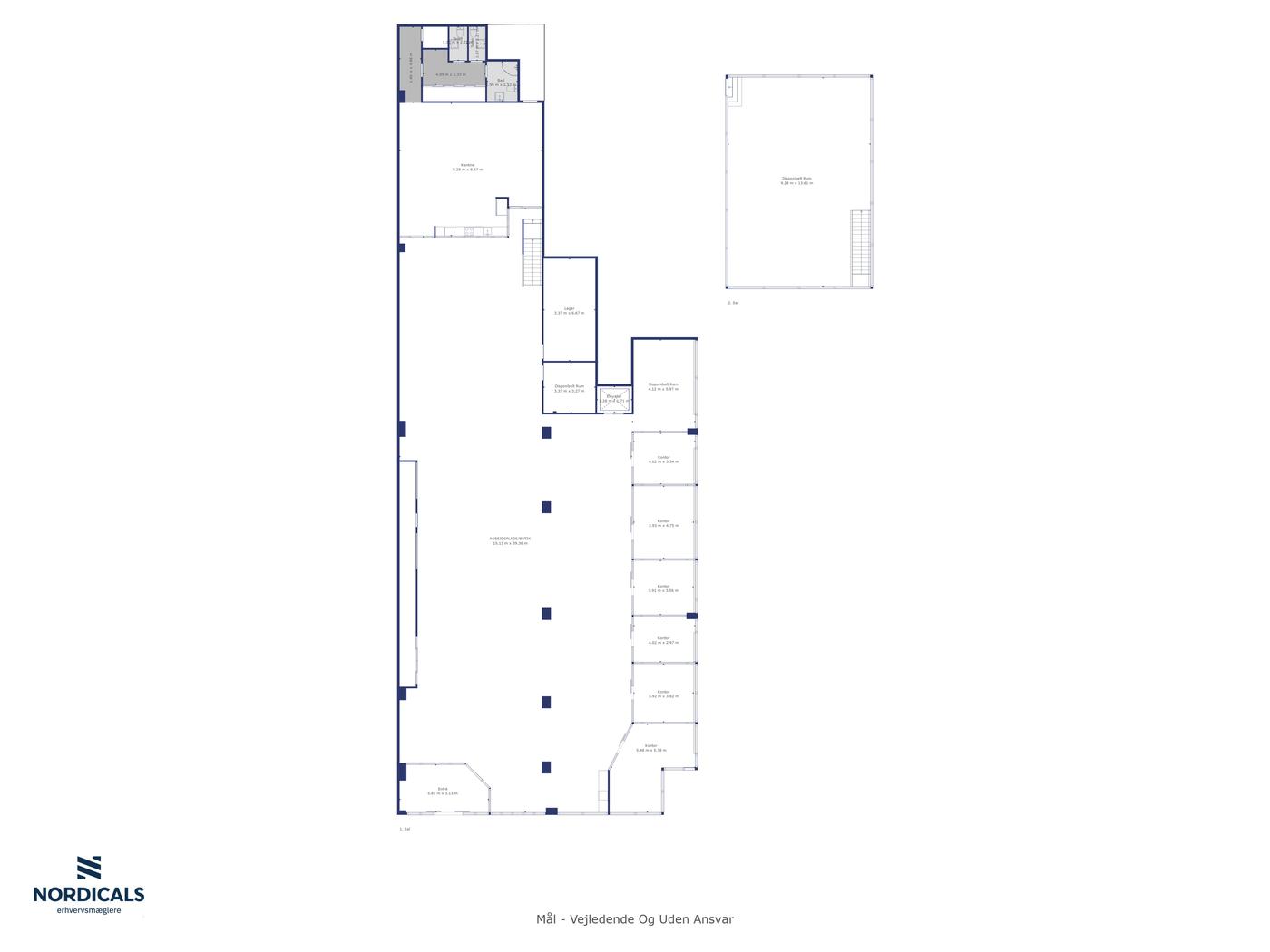
Tidligere Spar Nord lokaler er indrettet med præsentable kontorlokaler som fremstår i flot stand. Storrumskontor, med 6 mødelokaler - disse kan også bruges som selvstændige kontorer. Lokalerne er meget imødekommende, og er forsynet med ventilation efter nyeste standarder. Flot stor kantine, med fuld køkkenfacilitet. Det indskudte dæk indeholder stort mødelokale, til dette lokale er der også selvstændig køl på ventilationen. Pæne toiletter - 3 stk. hvoraf det ene ligeledes indeholder brusekabine. Lokalerne har 2 indgang, en fra for facaden, og 1 fra P-kælderen via elevator direkte op i lokalet. Samlet areal er 806 m². 
Det ledige lejemål er 136,5 m² med egen indgang via trappe fra gaden, så det er nemt for kunder og leverandører at finde lokalerne. Facaden mod Strandbygade udgøres af en stor vinduesfacade, hvilket giver en lejer gode eksponeringsmuligheder, og desuden et dejligt lysindfald i lejemålet. Indretningen består af et indbydende kontorlandskab, mødelokaler, depot-/printerrum, et pænt køkken og toilet. Lejemålet fremtræder lyst og pænt, og i rigtig flot stand - Her er alle de nødvendige faciliteter til god og optimal kontorvirksomhed. Ligeledes vil de kunne anvendes til mange former for klinik.
Det udlejet lejemål på 214 m² er udlejet til Nybolig, lejemålet er ligeledes med indgang via trappe fra gaden. Lejemålet ligger på hjørnet af Strandbygade og Tordenskjoldsgade med god stor vinduesfacade. Indretningen består af et indbydende kontorlandskab, mødelokale, depot-/printerrum, et pænt køkken og toilet. Lejemålet fremtræder lyst og pænt, og i rigtig flot stand.
Anvendelse:
Med sin attraktive beliggenhed og fleksible indretning byder lejemålet på mange muligheder for anvendelse. Lokalerne egner sig til langt de fleste kontor- og serviceerhverv, f.eks. inden for revision, rådgivning, bureau-, arkitekt- eller ingeniørvirksomhed.
Forhør nærmere og aftal en fremvisning på 76110160.