Strandbygade 24
6700 Esbjerg

Sagsnr. 5606-L

Ejendomstype

Etageareal

Grund

Energiklasse

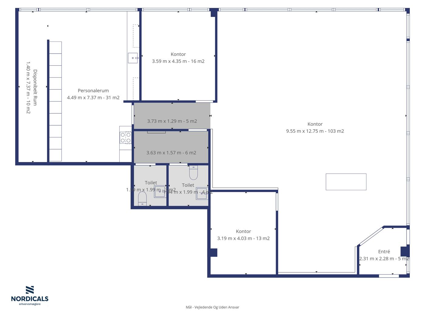
214 m²

5.668 m²

D

Lyse kontorlokaler i Esbjerg

Introduktion:
Nordicals erhvervsmæglere udbyder nu dette spændende kontorlejemål til leje.

Beliggenhed:
Lejemålet er beliggende i en markant ejendom i indre Esbjerg, der rummer både kontorenheder, fitness centre, speciallægeklinik og boliger.

Ejendommen har en stor synlighed mod den aktive og tættrafikkerede Strandbygade. I området findes alt hvad centrum tilbyder, fra Musikhuset til gågaden og diverse caféer, til en mangfoldighed af virksomheder - såvel kunder som potentielle samarbejdspartnere.

I centrum er der gode parkeringsmuligheder, ligesom der er gode forbindelser til og fra lokationen med offentlig transport. Der er endvidere p-kælder under bygningen.

Beskrivelse:
Lejemålet er på på 214 m² med indgang via trappe fra gaden. Lejemålet ligger på hjørnet af Strandbygade og Tordenskjoldsgade med god stor vinduesfacade.

Indretningen består af et indbydende kontorlandskab, mødelokale, depot-/printerrum, et pænt køkken og toilet. Lejemålet fremtræder lyst og pænt, og i rigtig flot stand.

Anvendelse:
Med sin attraktive beliggenhed og fleksible indretning byder lejemålet på mange muligheder for anvendelse. Lokalerne egner sig til langt de fleste kontor- og serviceerhverv, f.eks. inden for revision, rådgivning, bureau-, arkitekt- eller ingeniørvirksomhed.

Forhør nærmere og aftal en fremvisning på 76110160.

Læs mere

Denne ejendom er udlejet

Vil du vide mere?

Martin Lind Bachmann

mlb@nordicals.dk

+45 6142 1945

Danmarksgade 36, 6700 Esbjerg

+4576110160

6700@nordicals.dk

Besøg vores mæglerside

Lignende ejendomme

Til top