Kvaglundvej 83
6705 Esbjerg Ø

Sagsnr. 3923-S

Ejendomstype

Etageareal

Grund

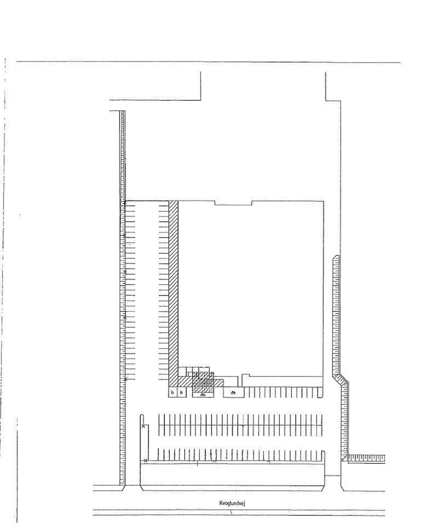
6.037 m²

19.545 m²

Kontantpris

Købspris pr. m²

Årlig driftsudgift

Årlig driftsudgift pr. m²

32.000.000 kr.

5.301 kr.

119.965 kr.

20 kr.

Domicilejendom sælges - stor lagerkapacitet

Introduktion:
Nordicals erhvervsmæglere, Esbjerg udbyder en stor velbeliggende lagerejendom til salg. Ejendommen er domicil for Incado A/S og har tidligere været anvendt til trælasthandel.

Beliggenhed:
God beliggenhed i populært industrikvarter i Esbjerg Ø. Her finder man en god blanding af servicevirksomheder, engrosforretninger samt større produktionsvirksomheder. De omkringliggende erhvervsnaboer består bl.a. af Arla Foods Amba, Stark, Sports Connection og flere bilforhandlere m.fl.

Der er særdeles gode adgangsforhold til ejendommen for tung trafik, da beliggenheden er tæt på motorvej E20, og optimal i forhold til infrastrukturen både ind og ud af Esbjerg. Desuden er der gode tilkørselsforhold til det øvrige vejnet.

Ejendommen har en 19.545 m² stor grund, hvilket giver plads til at vokse og udvide. Arealet er befæstet og udlagt primært til parkering og afsætning.

Beskrivelse:
Ejendommen er jf. BBR opført i 1975 med om-/tilbygning i 1986 og det samlede bygningsareal udgør 6.037 m² samt 113 m² dyb kælder.

Ejendommen er oprindeligt opført som fire sammenhængende højloftede haller på hver ca. 1.500 m² med adgangsporte i enden og fast bund. Det store areal er fleksibelt og kan nemt tilpasses til mange forskellige typer af erhverv, så det passer præcis til din virksomheds behov. Udover lagerkapaciteten er der indbydende kontorfaciliteter med et godt lysindfald, møderum, et rummeligt frokostrum samt personalefaciliteter.

Bygningen er velholdt og fremstår klar til brug.

Anvendelse:
Ejendommen kan anvendes til alle former for handelsvirksomhed, distribution samt håndværksvirksomhed

Vil du høre mere om denne spændende ejendom, som med sin imponerende størrelse og attraktive placering kan skabe ideelle rammer for din virksomhed, så kontakt Nordicals på tlf. 76110160.

Læs mere

Vil du vide mere?

René Lennart Madsen

rlm@nordicals.dk

+45 2311 6566

Danmarksgade 36, 6700 Esbjerg

+4576110160

6700@nordicals.dk

Besøg vores mæglerside

Lignende ejendomme

Til top