Skolebakken 137 st.
6705 Esbjerg Ø

Sagsnr. 5409-L

Ejendomstype

Etageareal

Grund

Energiklasse

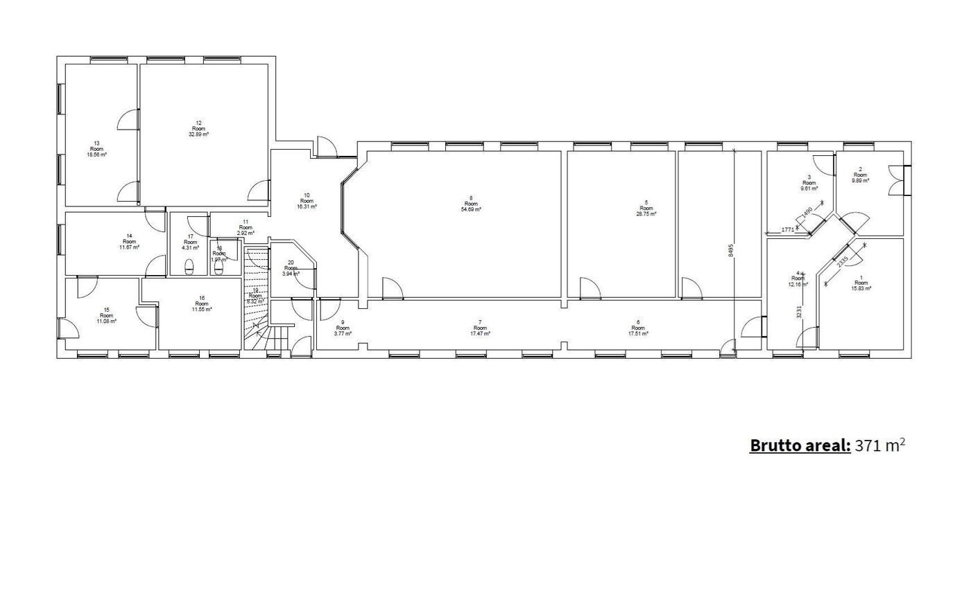
371 m²

23.480 m²

E

Lyse kontorlokaler i stueetage til leje

Introduktion:
Nordicals erhvervsmæglere udbyder pæne og lyse kontorlokaler til leje.

Beliggenhed:
Lejemålet befinder sig i det store byggeri på Skolebakken 137, som huser mange forskellige virksomheder og offentlige instanser.

Beskrivelse:
Lejemålet befinder sig i stueplan med handicapvenlig adgang, hvor en del af 1. salen ligeledes kan lejes.

Stueplanen er indrettet med entre, som giver adgang til et afsnit med køkken, stort kontor som bruges til frokostrum samt 3 mindre kontorer. Ligeledes er der fra entre'en adgang til toiletter, opgang til 1. sal samt en fordelergang, hvor de øvrige kontorlokaler befinder sig - her findes 2 store kontorer/mødelokaler samt 2 mindre kontorer. For enden af fordelergangen findes 2 små kontorer og et større.

Rundt om lejemålet findes flere forskellige parkeringspladser til gavn for både ens medarbejdere og kunder.

Anvendelse:
Lejemålet kan anvendes til mange forskellige former for kontor herunder forening og lignende.

Læs mere

Denne ejendom er udlejet

Vil du vide mere?

Martin Lind Bachmann

mlb@nordicals.dk

+45 6142 1945

Danmarksgade 36, 6700 Esbjerg

+4576110160

6700@nordicals.dk

Besøg vores mæglerside

Lignende ejendomme

Til top