Fyrvej 34
6710 Esbjerg V

Sagsnr. 5477-L2

Ejendomstype

Etageareal

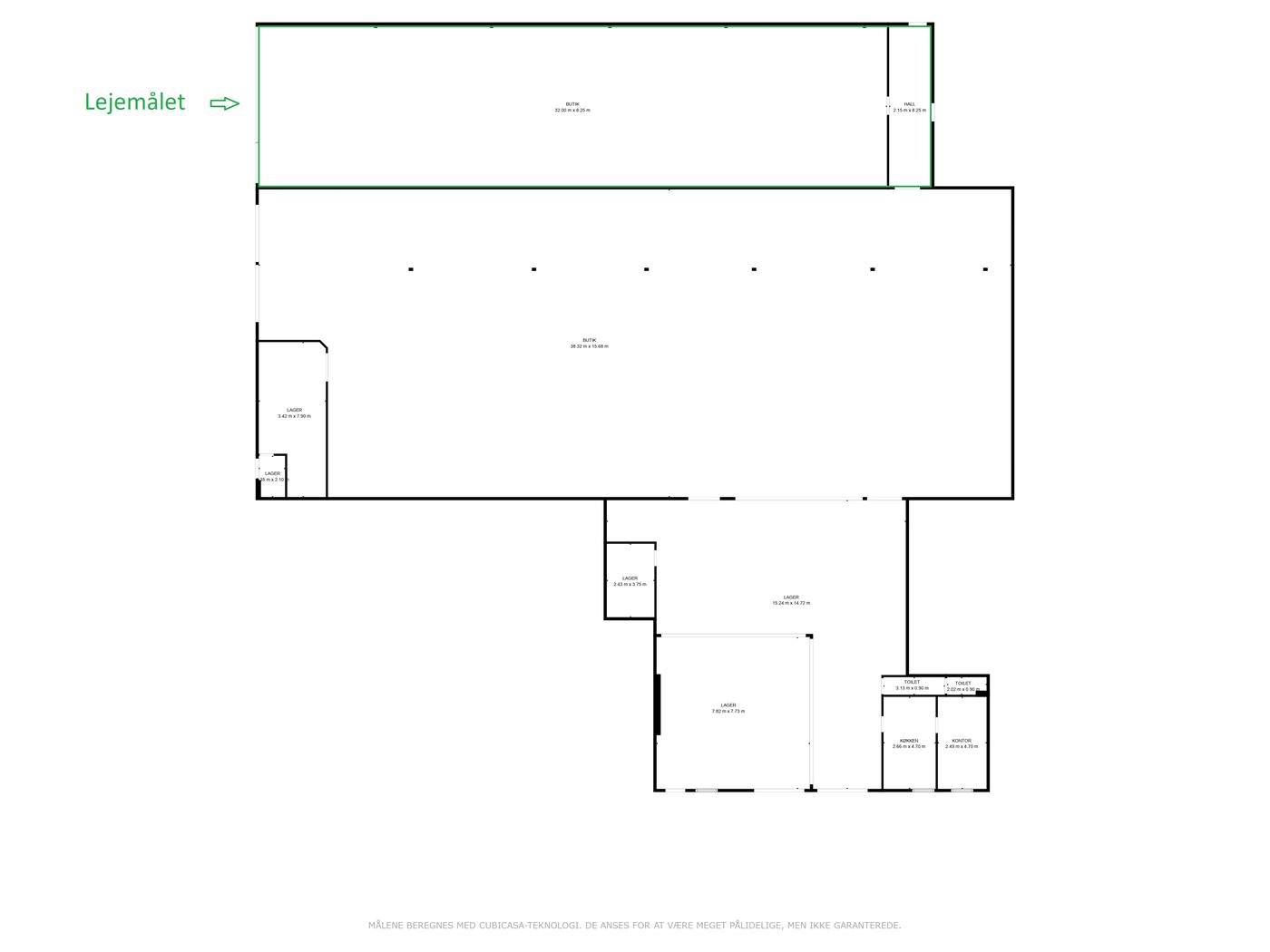
264 m²

Årlig leje

Leje pr. m²

Depositum

171.600 kr.

650 kr.

54.925 kr.

Stort butikslejemål ledigt i Sædding Centeret

Introduktion:
Nordicals Erhvervsmæglere tilbyder dette rummelige lejemål på Fyrevej 34 i Esbjerg V. Med en god beliggenhed og en tidsbegrænset lejeperiode på ca. 2½ år, tilbyder dette lejemål en enestående mulighed i Sædding Centeret.
Beliggenhed:
Lejemålet byder på en god og nemt tilgængelig beliggenhed i Sædding Centeret, i Esbjerg V. Med en bekvem placering tæt på både boligområder og erhvervscentre, er dette sted ideelt for en bred vifte af virksomheder. Let adgang til offentlig transport og gode parkeringsmuligheder gør det til et attraktivt sted for både kunder og personale.
Beskrivelse:
Dette lejemål byder på et åbent og fleksibelt layout, der giver mulighed for kreativ indretning og tilpasning efter din virksomheds behov. Lejemålet er inddelt i et stort lokale, med en mindre personale sektion i hjørnet. Dertil byder det på store facade åbninger ud til den daglige trafik i Sædding Centeret samt. porte til vareindlevering i baggården.
Anvendelse:
Dette lejemål har tidligere været anvendt af Fakta, hvilket understreger dets alsidighed og potentiale til detailhandel, lagerfaciliteter eller endda kontorlokaler. Uanset om du driver en butik, et distributionscenter eller en anden form for pladskrævende virksomhed, kan dette lejemål tilpasses efter dine behov i løbet af den tidsbegrænsede lejeperiode.Kontakt Nordicals i dag på 7611 0160 og hør nærmere eller book en fremvisning.

Læs mere

Vil du vide mere?

Kristoffer Weller Jensen

kje@nordicals.dk

+45 2176 3108

Danmarksgade 36, 6700 Esbjerg

+4576110160

6700@nordicals.dk

Besøg vores mæglerside

Lignende ejendomme

Til top