Sædding Ringvej 2
6710 Esbjerg V

Sagsnr. 5441-L1

Ejendomstype

Etageareal

Grund

400 m²

9.990 m²

Årlig leje

Leje pr. m²

Depositum

300.000 kr.

750 kr.

150.000 kr.

Synlig Butikslokale på Sædding Ringvej

Introduktion:
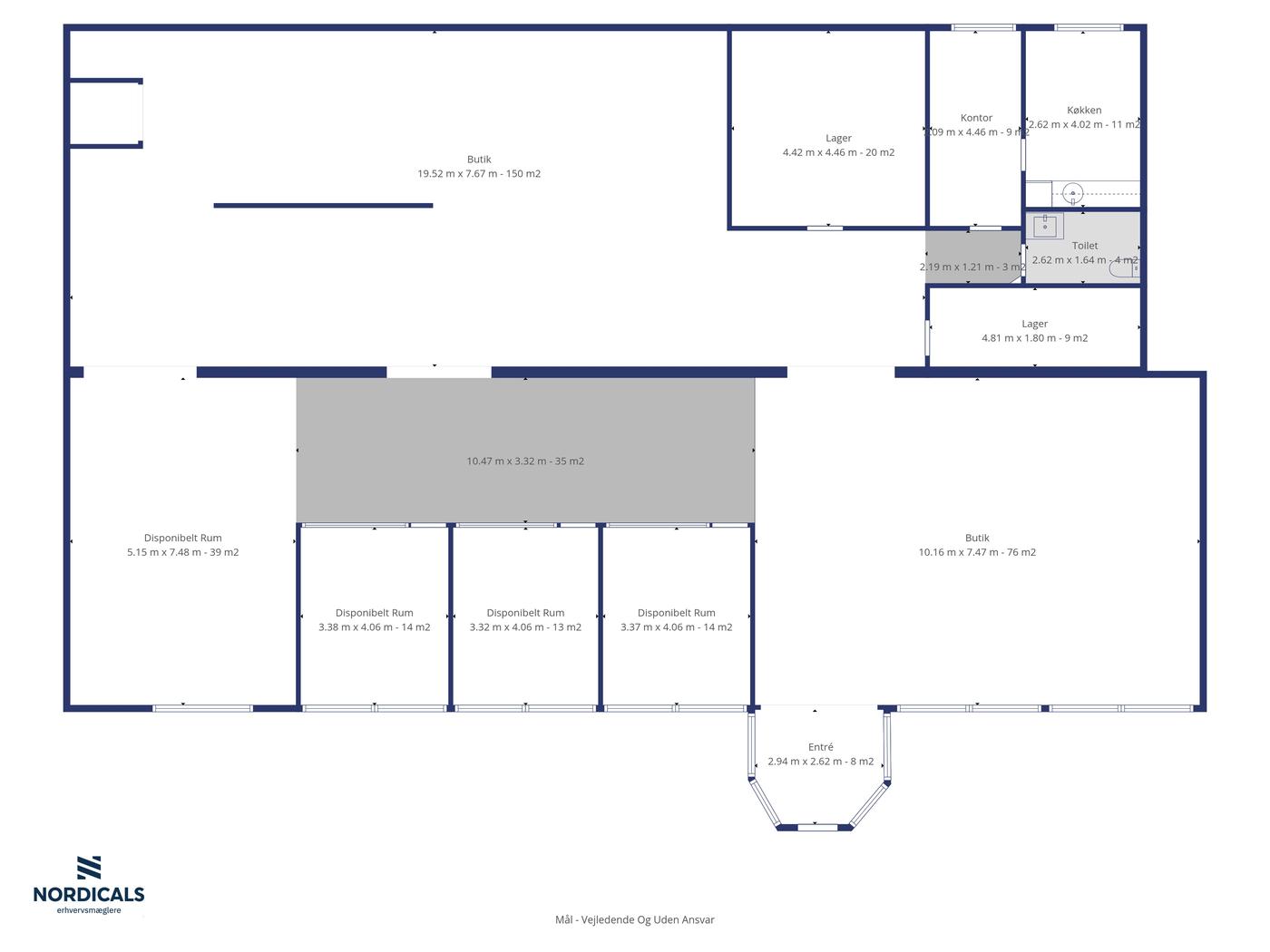
Lejemålet på Sædding Ringvej 2, 6710 Esbjerg tilbyder et funktionelt og synligt erhvervslejemål på i alt ca. 400 m², velegnet til detailhandel, showroom eller kombineret butik og lager.

Beliggenhed:
Beliggende på Sædding Ringvej, har dette lejemål en enestående synlighed og tilgængelighed i Esbjerg V. Den høje trafikale aktivitet i området, sikrer konstant eksponering og tiltrækker potentielle kunder og forretningsmuligheder. Desuden er der nem adgang til parkeringsfaciliteter for både kunder og ansatte.

Beskrivelse:
Lejemålet udgør ca. 400 m², fordelt på butik/showroom og tilhørende lagerfaciliteter. Butiksarealet fremstår lyst og rummeligt med gode udstillings- og indretningsmuligheder.

Der er parkering lige foran lejemålet, hvilket er en stor fordel for både kunder og personale. Lokalerne er funktionelle og fleksible og kan let tilpasses forskellige brancher og anvendelser.

Anvendelse:
Lejemålet er velegnet til en bred vifte af formål såsom detailhandel, outlet, showroom, mindre engrosvirksomhed eller kombineret butik og lager. Kombinationen af god synlighed, parkering ved døren og nem adgang gør ejendommen attraktiv for virksomheder, der ønsker en praktisk og synlig placering i Esbjerg.

Læs mere

Vil du vide mere?

Kristoffer Weller Jensen

kje@nordicals.dk

+45 2176 3108

Danmarksgade 36, 6700 Esbjerg

+4576110160

6700@nordicals.dk

Besøg vores mæglerside

Lignende ejendomme

Til top