Stenhuggervej 7A
6710 Esbjerg V

Sagsnr. 4116-S

Ejendomstype

Etageareal

Grund

553 m²

4.941 m²

Kontantpris

Købspris pr. m²

Årlig driftsudgift

Årlig driftsudgift pr. m²

2.250.000 kr.

4.069 kr.

17.319 kr.

31 kr.

Velbeliggende og alsidig kontor- / domicilejendom sælges

Introduktion:
Nordicals erhvervsmæglere udbyder denne solide og velbeliggende kontorejendom på Stenhuggervej 7A, 6710 Esbjerg V til salg. Ejendommen er på 553 m² og rummer adskillige kontorlokaler med et godt lysindfald. Med facaden ud mod Stenhuggervej er der tillige gode eksponeringsmuligheder.

Beliggenhed:
Ejendommen er beliggende i Sædding erhvervsområde i Esbjergs nordvestlige bydel med nem adgang til det omkringliggende vejnet, herunder den tættrafikerede Sædding Ringvej. Fra området er der hurtig forbindelse til måde motorvej E20, Esbjerg Havn og indre by. Området er kendetegnet ved en mangfoldighed af forskellige virksomheder, f.eks. indenfor håndværk, handel og produktion m.v.

Beskrivelse:
Ejendommen er jf. BBR opført i 1985 i røde mursten og med betontagsten og fremtræder i god stand, både udvendigt og indvendig.

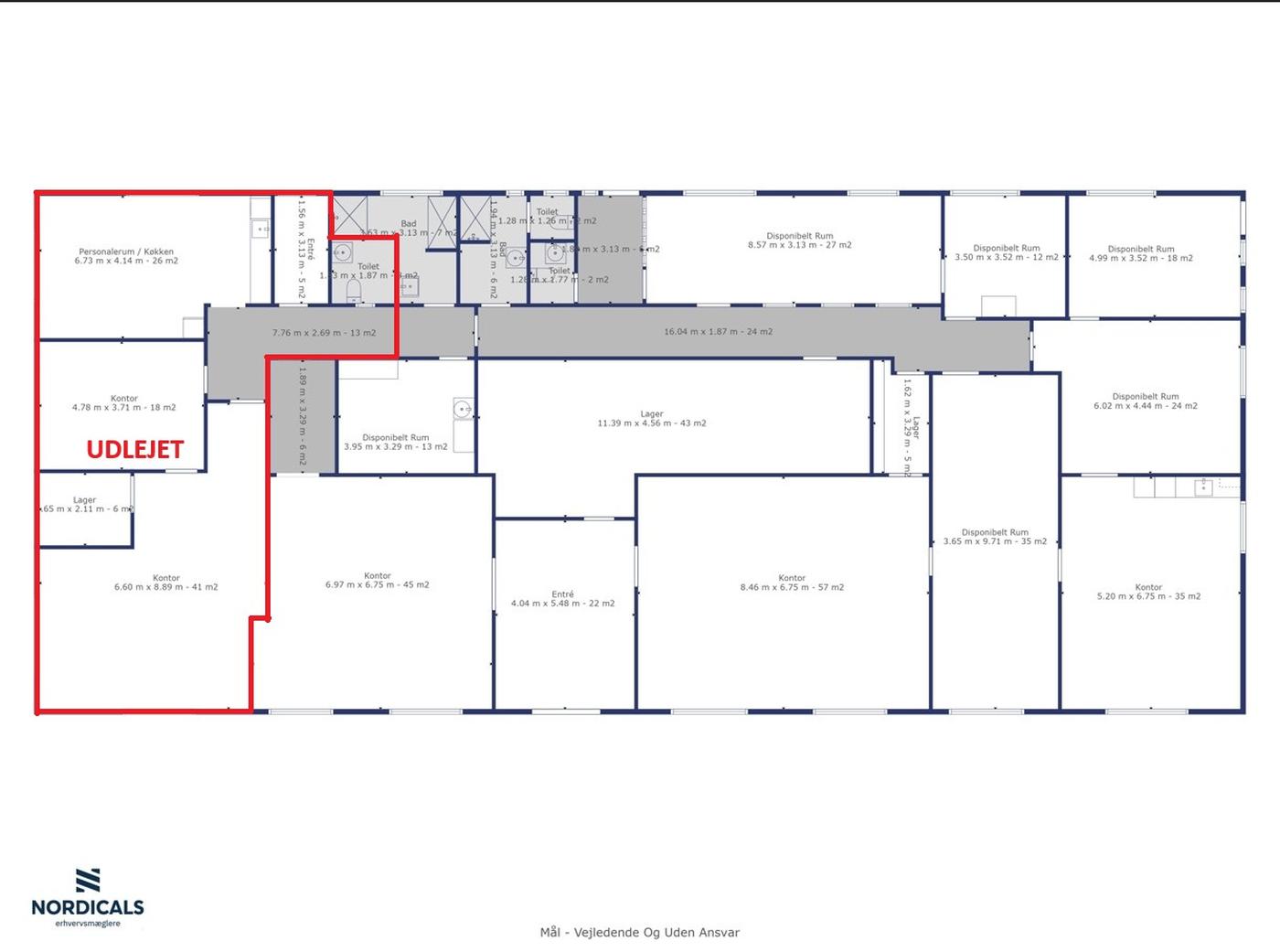
Ejendommen er indrettet med flere kontorlokaler / disponible rum af varierende størrelser, som kan ændres alt efter en købers behov. Ejendommens indretning og faciliteter omfatter også et mindre thekøkken samt toiletfaciliteter.

Et areal på ca. 100 m² er udlejet til et reklamebureau. Årlig leje kr. 54.000 inkl. forbrug. Lejeforholdet er tidsbegrænset til 3 år.

Ejendommen er en ejerlejlighed, og man har derfor som ejer pligt til at være medlem af Ejerforeningen, som er velfungerende. Ejerforeningen består af tre ejerlejligheder. Denne ejendom er ejerlejlighed 1, og ejendommen bagved (en lagerhal) består af ejerlejlighed 2 og 3 (én ejer som har ejet denne siden 2016).

Ejendommene har hver sin forsikring, og det er i vedtægterne for Ejerforeningen aftalt, at ejer af ejerlejlighed 1 alene har alle forpligtelser vedrørende denne bygning, det være sig ind- og udvendig vedligeholdelse og alle øvrige udgifter, der kan henføres til bygningen og dennes faste bestanddele. På samme måde er det aftalt, at ejer af ejerlejlighed 2 og 3 alene har alle forpligtelser vedrørende denne bygning.

Grunden er regulær og på i alt 4.941 m², og omfatter også ejendommen som rummer ejerlejlighed 2 og 3. Der er gode parkeringsmuligheder foran ejendommen.

Anvendelse:
Ejendommen kan anvendes til en bred vifte af erhvervsformål, herunder kontor, mindre lagervirksomhed, internetbutik, servicevirksomhed eller anden sundhedsrelateret virksomhed m.fl. Indretningen er fleksibel og kan tilpasses forskellige behov.

Kontakt Nordicals Erhvervsmæglere i dag på tlf. 7611 0160 og hør nærmere om denne ejendom eller book en fremvisning.

Læs mere

Vil du vide mere?

Martin Lind Bachmann

mlb@nordicals.dk

+45 6142 1945

Danmarksgade 36, 6700 Esbjerg

+4576110160

6700@nordicals.dk

Besøg vores mæglerside

Lignende ejendomme

Til top