Susåvænget 13
6710 Esbjerg V

Sagsnr. 4249-S

Ejendomstype

Etageareal

Grund

293 m²

2.000 m²

Kontantpris

Købspris pr. m²

Årlig driftsudgift

Årlig driftsudgift pr. m²

2.495.000 kr.

8.515 kr.

16.484 kr.

56 kr.

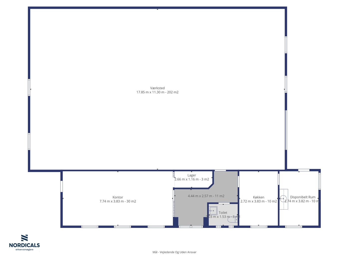
Erhvervsejendom med lager-/værksted og kontor

Introduktion:
Nordicals erhvervsmæglere udbyder en regulær lager- og værkstedsejendom med kontorfaciliteter til salg.

Ejendommen fremstår som en velholdt og funktionel erhvervsejendom, der kombinerer gode lager- og værkstedsfaciliteter med præsentabelt kontor og personalerum. Den er ideel for håndværks-, service- og produktionsvirksomheder, der ønsker en veldisponeret base med både administrative og driftsmæssige funktioner samlet under ét tag.

Beliggenhed:
Ejendommen er beliggende i Sædding erhvervsområde i Esbjergs nordvestlige bydel med nem adgang til det omkringliggende vejnet, herunder den tættrafikerede Sædding Ringvej. Fra området er der hurtig forbindelse til både Motorvej E20, Esbjerg Havn og indre by. Området er kendetegnet ved en mangfoldighed af forskellige virksomheder, f.eks. indenfor håndværk, handel og produktion m.v.

Beskrivelse:
Ejendommen er jf. BBR opført i 1980, bygningen er opført i mursten og fremstår solid og klassisk. Ejendommen ligger på en rummelig grund med gode tilkørsels- og parkeringsforhold.

Ejendommen er på 293 m² fordelt mellem lager / værksted og kontor.

I lager-/værkstedsdelen er der en god loftshøjde og port, så lokalet nemt kan tilpasses forskellige drifts- og logistikbehov.

Grunden er 2.000 m² og udlagt delvis i SF-sten, hvor der er mulighed for opbevaring/afsætning.

Anvendelse:
Ejendommen kan anvendes til en bred vifte af erhvervsformål, herunder kontor, mindre lagervirksomhed, internetbutik, servicevirksomhed eller anden lignende værksteds virksomhed m.fl. Indretningen er fleksibel og kan tilpasses forskellige behov.

Kontakt Nordicals Erhvervsmæglere i dag på tlf. 7611 0160 og hør nærmere om denne ejendom eller book en fremvisning

Læs mere

Vil du vide mere?

Lene Thiim Roelsen

ltr@nordicals.dk

+45 2091 0086

Danmarksgade 36, 6700 Esbjerg

+4576110160

6700@nordicals.dk

Besøg vores mæglerside

Lignende ejendomme

Til top