Lillebæltsvej 2 og 6
6715 Esbjerg N

Sagsnr. 5588-L2

Ejendomstype

Etageareal

Energiklasse

2.953 m²

C

Årlig leje

Leje pr. m²

Depositum

Årlig driftsudgift

Årlig driftsudgift pr. m²

1.236.950 kr.

419 kr.

688.675 kr.

43.200 kr.

15 kr.

Attraktivt domicillejemål med både lager og kontor

Introduktion:
Nordicals Erhvervsmæglere udbyder denne attraktive kontor- og lagerejendom på Lillebæltsvej til leje. Lejemålet fordeler sig på to bygninger, som ligger ved siden af hinanden. Her er både flotte kontorfaciliteter og en stor mængde lagerplads.

Beliggenhed:
Bygningerne er attraktivt beliggende på Lillebæltsvej i Esbjerg N, centralt placeret i et veludbygget og populært erhvervsområde med gode tilkørselsforhold og synlighed.

Kjersing industri- og erhvervsområde i Esbjerg er et center for logistik og tungt erhverv, og er kendt som byens største erhvervsområde med høj efterspørgsel efter erhvervsareal. Områdets optimale placering med nem adgang til motorvejen og de primære indfaldsveje i Esbjerg, samt nærheden til Esbjerg Havn, gør det til et attraktivt valg for logistik- og industrivirksomheder. Desuden er der en nyere del af Kjersing erhvervsområde nord for Kjersing Ringvej, som Esbjerg Kommune aktivt udvikler, hvilket vidner om en fortsat vækst og dynamik i erhvervsområdet.

Den tætte beliggenhed til havnen forstærker Kjersing's appel til maritime og logistiske operationer, og understreger områdets betydning som et centralt erhvervs- og logistikknudepunkt i regionen.

Beskrivelse:
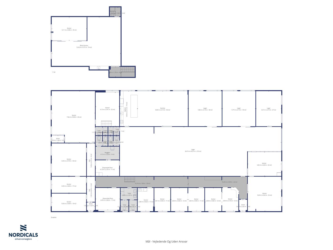
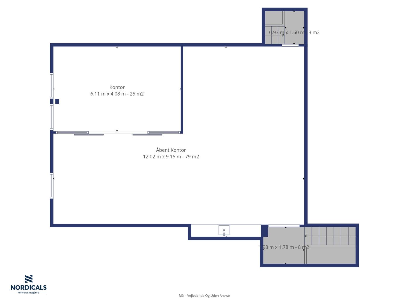
Bygning 1 ligger på Lillebæltsvej 6 og er opført i 1986 og har et samlet erhvervsareal på 1.003 m², hvoraf ca. 115 m² er på 1. sal. Bygningen opvarmes med fjernvarme. Bygningen er veldisponeret og indrettet med fordelingsgang, som giver adgang til flere kontorlokaler, både åbne kontorlandskaber og mere afskærmede cellekontorer, toiletfaciliteter, en flot og velindrettet kantine med fuldt udstyret køkken, ideel til både daglig brug og sociale arrangementer. Derudover rummer bygningen et rummeligt og højloftet lagerområde med vognport i enden samt 3 mindre lagerrum. 1. sal er indrettet med kontorer og fungerer perfekt som ekstra arbejdsområde eller ledelsesetage.
Foran bygningen er der gode parkeringsforhold med nem adgang for både medarbejdere og gæster.

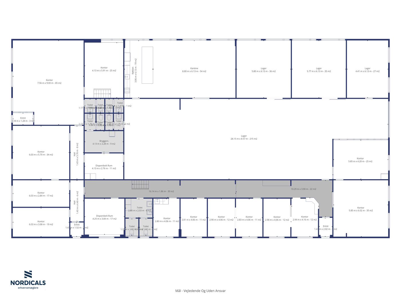
Bygning 2 ligger på Lillebæltsvej 2 og er opført i 1987 og har et samlet erhvervsareal på 1.950 m². Hallen er højloftet med loft til kip med stålspær og uopvarmet, ideel til lager, logistik eller let produktion. Bygningen består af et stort lokale, som er niveauopdelt i to. I den ene ende af bygningen er der to vognporte med læsserampe samt en vognport i modsatte ende, hvilket giver optimale forhold for ind- og udlevering af varer.

Anvendelse:
Ejendommen kan anvendes til kontorvirksomhed med behov for lager, let produktion eller værksted m.v. Ideelt for virksomheder, der søger en fleksibel indretning og en logistisk stærk placering.

Kontakt Nordicals Erhvervsmæglere i Esbjerg på tlf. 7611 0160 for yderligere information eller en fremvisning.

Læs mere

Vil du vide mere?

Lignende ejendomme

Til top