Skagerrakvej 12 og 14
6715 Esbjerg N

Sagsnr. 3830-S

Ejendomstype

Etageareal

Grund

5.214 m²

31.595 m²

Kontantpris

Købspris pr. m²

Afkast

Årlig lejeindtægt

Årlig lejeindtægt pr. m²

Årlig driftsudgift

Årlig driftsudgift pr. m²

36.000.000 kr.

6.904 kr.

7,28 %

2.974.704 kr.

571 kr.

395.079 kr.

76 kr.

Markant lager- og produktionsejendom udbydes til salg

Introduktion:
Nordicals erhvervsmæglere udbyder velbeliggende investeringsejendom til salg. Ejendommen er beliggende på Skagerrakvej 12 og samtidig medfølger grunden på Skagerrakvej 14.

Beliggenhed:
Ejendommen er beliggende i det attraktive og eftertragtede erhvervsområde i Kjersing, med kort afstand til motorvej E20 og med god forbindelse til det øvrige Esbjerg. Området er kendt for et diversificeret erhvervsliv og i området ligger bl.a. NemByg A/S, Cocio Chokolademælk A/S og Ellepot A/S.

Ejendommen ligger på en 18.834 m² stor grund, og dertil kommer en ekstra grund på 12.761 m². De to grunde ligger i forlængelse af hinanden, hvilket giver helt optimale muligheder for udvidelse af de eksisterende bygninger og eksponering ud mod Vestkystvej. Der er desuden gode parkeringsmuligheder ved ejendommen, og det meste af grunden er indhegnet, hvilket giver gode muligheder for også at opbevare materiale udenfor. Lastbiler m.v. kan køre hele vejen rundt om ejendommen.

Beskrivelse:
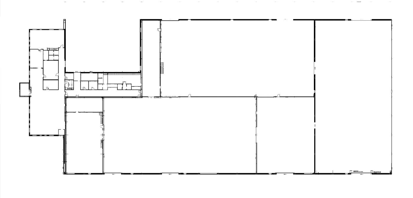
Ejendommen er jf. BBR opført i 2002 med om-/tilbygning i 2006, hvor den eksisterende lagerhal er blevet udvidet. Det bebyggede areal udgør 4.996 m², og det samlede erhvervsareal rummer hele 5.214 m².

Ejendommen fremstår meget velholdt og i god stand med moderne og funktionelle og velproportionerede lokaler, egnet til forskellige anvendelser. Der er ca. 4.814 m² lager- og produktionslokaler og ca. 400 m² administrations - og personalefaciliteter, som består af Indbydende og lyse kontorlokaler, mødelokale, større frokostrum med køkkeninventar samt velfærdsfaciliteter med omklædning og bruser samt toiletter.

Lager- og produktionslokalerne er opdelt i flere afsnit af en god størrelse og med en loftshøjde på ca. 7m og store spændvidder uden søjler. Der er et godt lysindfald fra de store ovenlysvinduer. Den bagerste del består af en lagerhal med vognport i begge sider (4,4 m høj x 6,7 m bred). Der er i alt 7 vognporte i bygningen, hvoraf de 3 vognporte er ned langs den ene side og de 4 vognporte er ned langs den anden side. De 5 vognporte som er i den resterende del af lager- og produktionslokalerne er ca. 5.1 m høj x 4.5 m bred.

Ejendommen er udlejet. Lejemålet er fra lejers og udlejers side uopsigeligt i 3 år fra den 01.07.2023, hvorefter lejemålet kan opsiges med 1 års varsel til den første i en måned. Ny ejer kan derfor regne med en stabil indkomst fra lejeindtægten i de kommende år.

Anvendelse:
Med ejendommens højloftede og regulære haller med gode porte, er ejendommen meget fleksibel i anvendelsen og kan anvendes indenfor mange former for produktions-, lager- og handelsvirksomhed

Kontakt Nordicals på tlf. 7611 0160 og forhør nærmere.

Læs mere

Vil du vide mere?

René Lennart Madsen

rlm@nordicals.dk

+45 2311 6566

Danmarksgade 36, 6700 Esbjerg

+4576110160

6700@nordicals.dk

Besøg vores mæglerside

Lignende ejendomme

Til top