Storstrømsvej 30
6715 Esbjerg N

Sagsnr. 5431-L

Ejendomstype

Etageareal

Grund

Energiklasse

4.278 m²

20.975 m²

D

Stor logistik- og domicilejendom i Kjersing udlejes

Introduktion:
Nordicals erhvervsmæglere udbyder denne attraktive domicil- og logistikejendom til leje, beliggende med god synlighed på en hjørnegrund på Storstrømsvej 30 i Esbjerg N. Ejendommen, der senest har været anvendt som terminal for et større fragtfirma, byder på gode faciliteter, der særligt egner sig til transport- og logistiksektoren.

Beliggenhed:
Ejendommen ligger i det veludbyggede Kjersing industri- og erhvervsområde med nem adgang til havnen, motorvej og det øvrige vejnet. Kjersing industriområde udmærker sig ved at være særligt velegnet til logistik og tungt erhverv.

Beskrivelse:
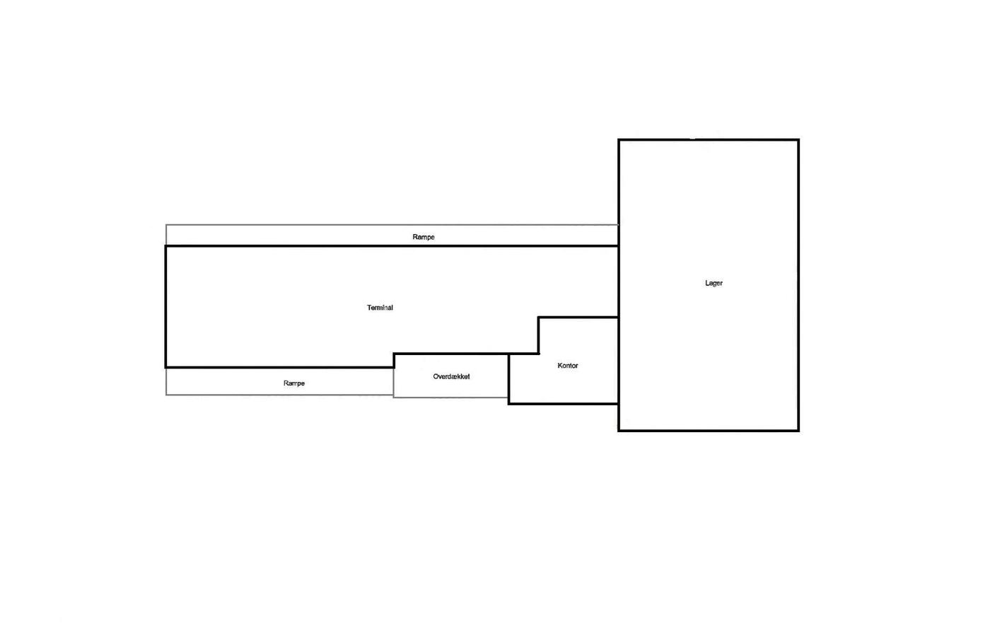
Ejendommen fordeler sig på to bygninger. Bygning 1 består af et lavloftet lager på 1,941 m² samt kontor, kantine og toilet / bad på 300 m². Bygning 2 omfatter et stort og højloftet lager på 2.037 m². Alle bygninger er med læsseramper og stor tilgængelighed.

Anvendelse:
Med de ideelle tilkørselsforhold - også for tung transport - egner ejendommen sig særligt til logistikvirksomheder.

Vil du høre mere om dette spændende lejemål, så kontakt Nordicals på tlf. 7611 0160.

Læs mere

Denne ejendom er udlejet

Vil du vide mere?

René Lennart Madsen

rlm@nordicals.dk

+45 2311 6566

Danmarksgade 36, 6700 Esbjerg

+4576110160

6700@nordicals.dk

Besøg vores mæglerside

Lignende ejendomme

Til top