Storetoft 7C, Rindby
6720 Fanø

Sagsnr. 3944-S

Ejendomstype

Grund

14.088 m²

Kontantpris

Årlig driftsudgift

6.000.000 kr.

73.301 kr.

Projekt grund på Fanø

Introduktion:
Nordicals erhvervsmæglere udbyder velbeliggende jordstykke, der kan benyttes til udvikling af boliger til salg på Fanø

Beliggenhed:
Grunden er beliggende på Fanø imellem Rindby og Nordby tæt på Fanø's "hovedvej" Postvejen, som går gennem hele Fanø.

Nordby er en lille hyggelig by præget af de mange smukke huse fra 1800-tallet, men Nordby er også en moderne og levende by. Med sine ca. 2.800 indbyggere er byen det handelsmæssige og administrative centrum på Fanø. Her ligger både skole, sundhedshus, sportshal m.v.

Fanø er et af Danmarks mest populære turistmål og kendt for sin betagende natur, kulturarv og et pulserende turismeliv. Færgeoverfarten fra Esbjerg tager ca. 12 minutter, hvilket gør at turen til øen ikke er noget problem. Fra færgen er der få minutters gang til grunden.

Der er mulighed for at udstykke almindelige parcelhusgrunde til tæt/lav bygger i m.m.

Der ligger allerede forskelligt projektmateriale til grunden.

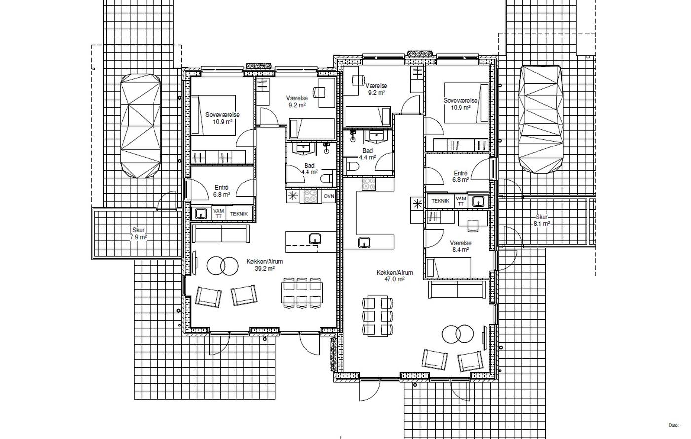
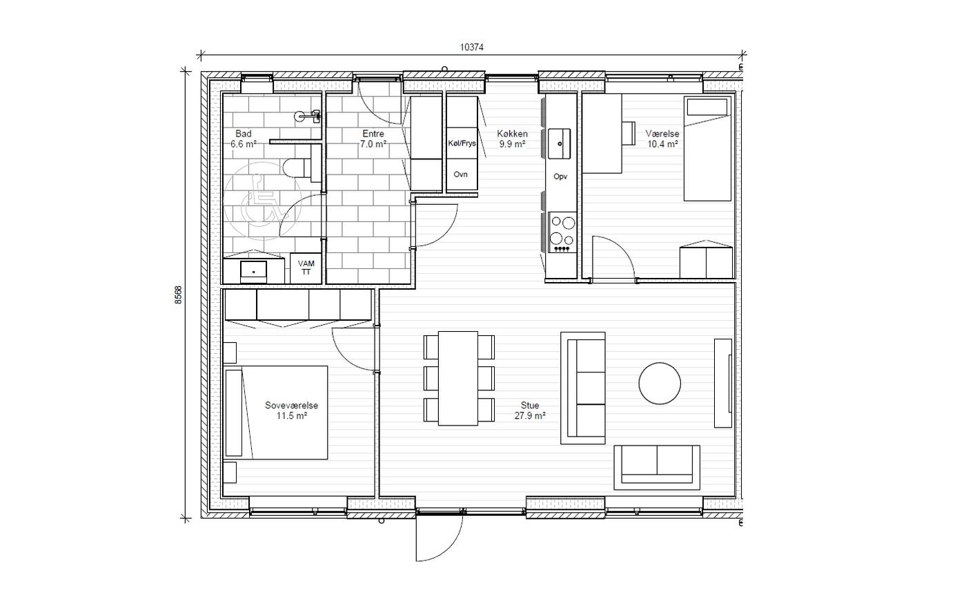
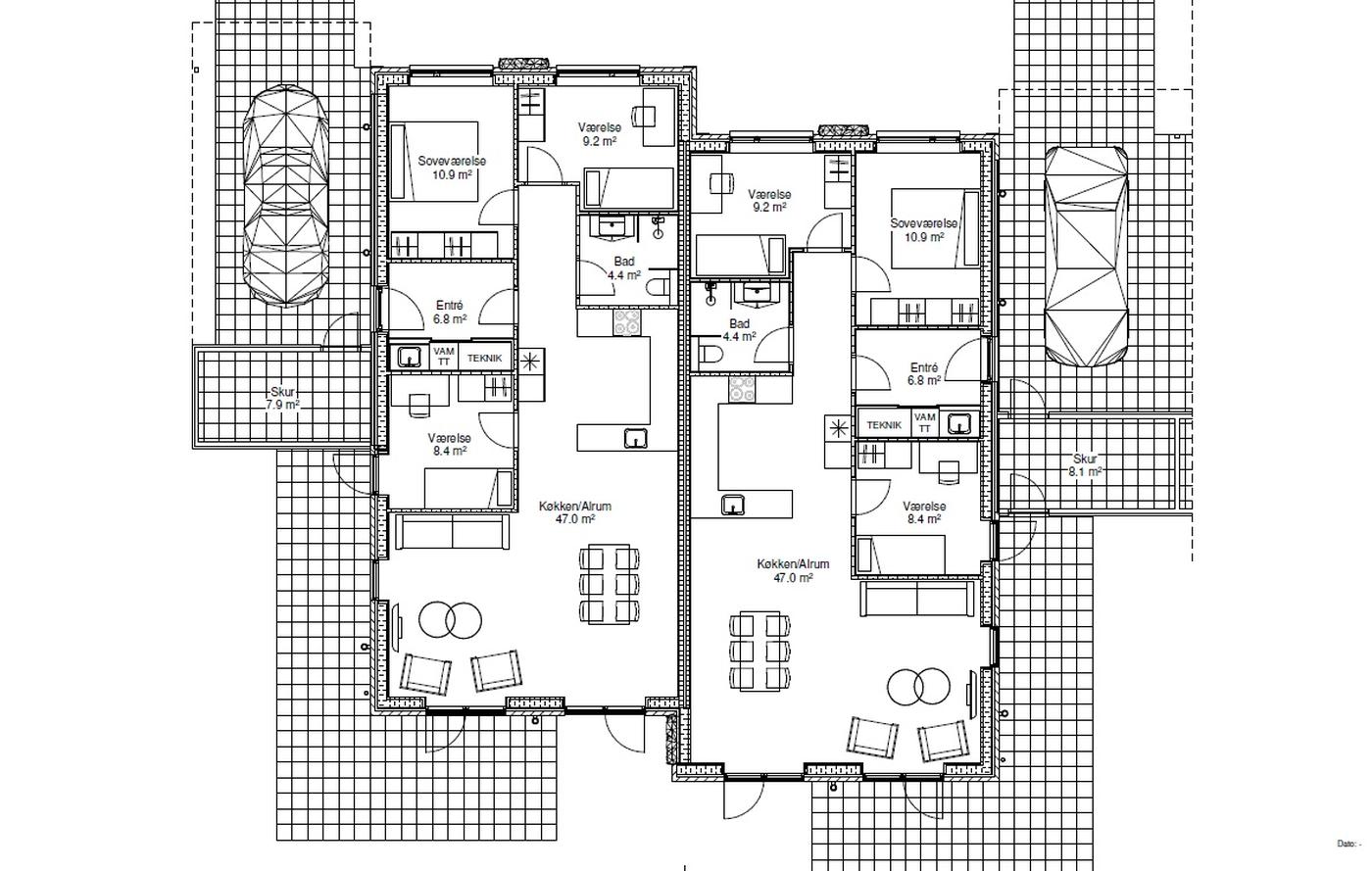
De vedlagte illustrationer er af længehuse og gavlhuse.

Plantegningerne er både af gavlhuse bygget sammen og illustrationer af længehuse.

Der kan ved fuld udnyttelse opføres ca. 40 boligenheder.

Kontakt Nordicals i dag og hør nærmere på 7611 0160

Læs mere

Vil du vide mere?

René Lennart Madsen

rlm@nordicals.dk

+45 2311 6566

Danmarksgade 36, 6700 Esbjerg

+4576110160

6700@nordicals.dk

Besøg vores mæglerside

Lignende ejendomme

Til top