Industrivej 38, Bramming
6740 Bramming

Sagsnr. 5399-L

Ejendomstype

Etageareal

Grund

2.807 m²

3.437 m²

Fødevaregodkendt produktionsejendom i Bramming

Introduktion:
Nordicals erhvervsmæglere udbyder spændende ejendom med blandet bolig og erhverv til leje. Ejendommen har senest dannet ramme om laksefabrikken, Danish Quality Salmon ApS. Erhvervsdelen er fødevaregodkendt og fremstår meget velindrettet med faciliteter til fødevarevirksomhed. Lejemålet omfatter ligeledes et tilhørende parcelhus, som senest har fungeret som bolig i tilknytning til ansatte ved laksefabrikken. Lejemålet kan overtages snarest.

Beliggenhed:
Lejemålet har en attraktiv beliggenhed i Brammings mangfoldige Industriområde Vest, med optimale adgangsforhold - også for tung transport.
I området findes mange forskellige typer virksomheder, bl.a. kan nævnes Kabton ApS, Theodor Christiansen og Triotek. Fra lejemålet er der ikke langt til Bramming centrum, ligesom der er gode tilkørselsforhold til det øvrige vejnet, herunder Varde Hovedvej.

Beskrivelse:
Lejemålet består af både erhverv og bolig, oprindeligt opført i 1977, jf. BBR, hvorefter der løbende er til-/ombygget yderligere enheder til erhvervsdelen. Foran ejendommen findes plads til parkering. Der er direkte adgang mellem de to enheder.

Parcelhuset er 223 m², jf. BBR, opført i 1977 i mursten. Boligen har 107 m² udnyttet tagetage og har pejs og brændeovn. I forbindelse med parcelhuset er der anlagt have.

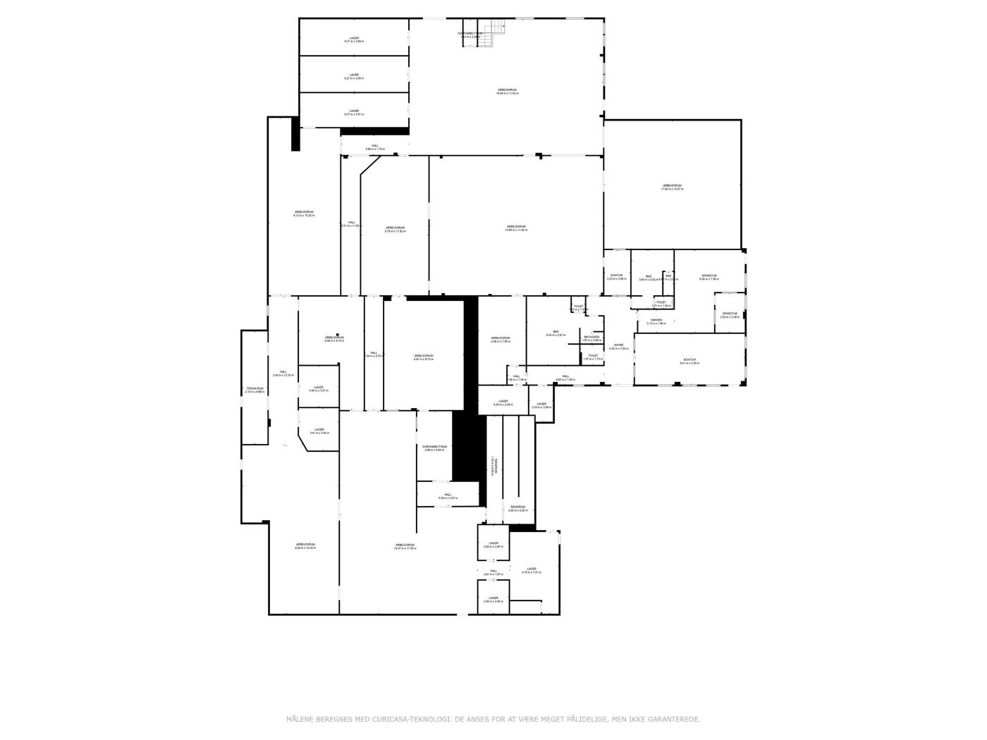
Erhvervsdelen er opført i beton og tag af tagpap. Den fordeler sig på 2.686 m², i dag bestående af 7 sammenhængende enheder til produktion og industri. Den fremtræder i rigtig god stand og er komplet driftsklar. Indretningen består af indgangsparti indrettet med venterum og gæstetoilet, fordelingsgang til åbent og lyst kontorafsnit, kantine med køkken og god spiseplads, dame- og herretoiletter med omklædning og bad, 2 stk. depot-/opbevaringsrum samt et værksted. Hele kontorafsnittet har Troldtektlofter.
Fra kontorafsnittet er der passage til det store produktionsafsnit bestående af flere haller med forskellige faciliteter til fødevareproduktion. Der er passage eller porte mellem flere af hallerne, hvilket betyder at der er høj brugervenlighed, men også sikkerheds- og hygiejnemæssige foranstaltninger. Produktionen står bl.a. med røgeri, industriovne, køle-/fryserum, pakkehal, lager, samt en højloftet hal til vareindlevering og -modtagelse. Hallen har 3 porte med direkte adgang til befæstet udeareal. I hallen er desuden etableret godselevator til varetransport.
Det samlede grundareal er i alt 3.437 m². Udearealet i forbindelse med porte er befæstet med SF-sten, resten udgøres af græs. På grunden findes flere mindre overdækninger og aflæsningsskure med diverse installationer. Bagerst på grunden står en melsilo samt bred port til bygningen ved siden af.

Anvendelse:
Med sine gode faciliteter og indretning, er lejemålet optimal til fortsat anvendelse inden for fødevareproduktion, men den kan også anvendes til andre typer produktions- og industrielleformål.

Kontakt Nordicals i dag for en fremvisning eller hør nærmere på 7611 0160.

Læs mere

Denne ejendom er udlejet

Vil du vide mere?

René Lennart Madsen

rlm@nordicals.dk

+45 2311 6566

Danmarksgade 36, 6700 Esbjerg

+4576110160

6700@nordicals.dk

Besøg vores mæglerside

Lignende ejendomme

Til top