Industrivej 50, Bramming
6740 Bramming

Sagsnr. 5516-L4

Ejendomstype

Etageareal

Grund

Energiklasse

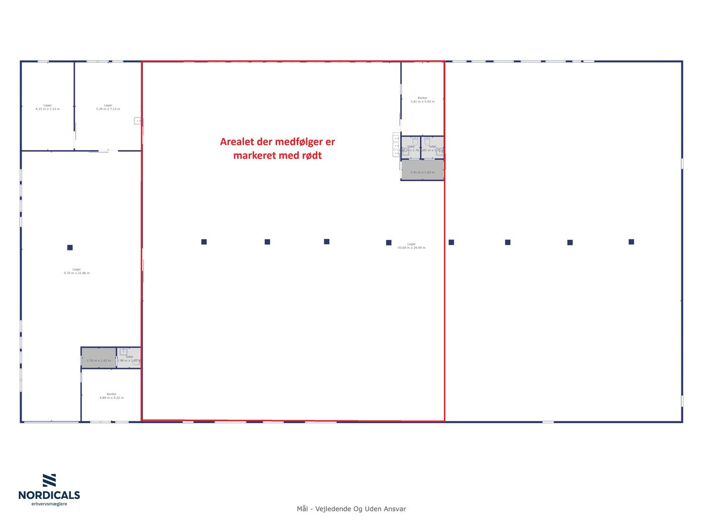
800 m²

11.938 m²

B

Årlig leje

Leje pr. m²

Depositum

240.000 kr.

300 kr.

120.000 kr.

Regulært lagerlejemål med tilhørende kontor

Introduktion:
Nordicals erhvervsmæglere udbyder nu et særdeles velbeliggende og funktionelt lager- og kontorlejemål i Bramming til leje. Perfekt til virksomheden, der ønsker attraktive og fleksible rammer i et aktivt erhvervsområde.

Beskrivelse:
Her får du i alt ca. 800 m² veludnyttet lager- og værkstedsareal. Lejemålet er indrettet med et stort lyst værksted / lager, et mindre kontor samt toilet.

Lejemålet er et dellejemål af en større ejendom, og hele ejendommen er fuldt indhegnet og udstyret med automatisk port, og der er gode muligheder for parkering lige ved døren.

Anvendelse:
Lejemålet egner sig til en bred vifte af erhverv - herunder handelsvirksomhed, administration og håndværk.

Kontakt Nordicals erhvervsmæglere i Esbjerg for nærmere oplysninger eller en fremvisning tlf. 7611 0160.

Læs mere

Vil du vide mere?

Martin Lind Bachmann

mlb@nordicals.dk

+45 6142 1945

Danmarksgade 36, 6700 Esbjerg

+4576110160

6700@nordicals.dk

Besøg vores mæglerside

Lignende ejendomme

Til top