Industrivej 50, Bramming
6740 Bramming

Sagsnr. 5516-L5

Ejendomstype

Etageareal

Grund

Energiklasse

765 m²

11.938 m²

B

Årlig leje

Leje pr. m²

Depositum

229.500 kr.

300 kr.

114.750 kr.

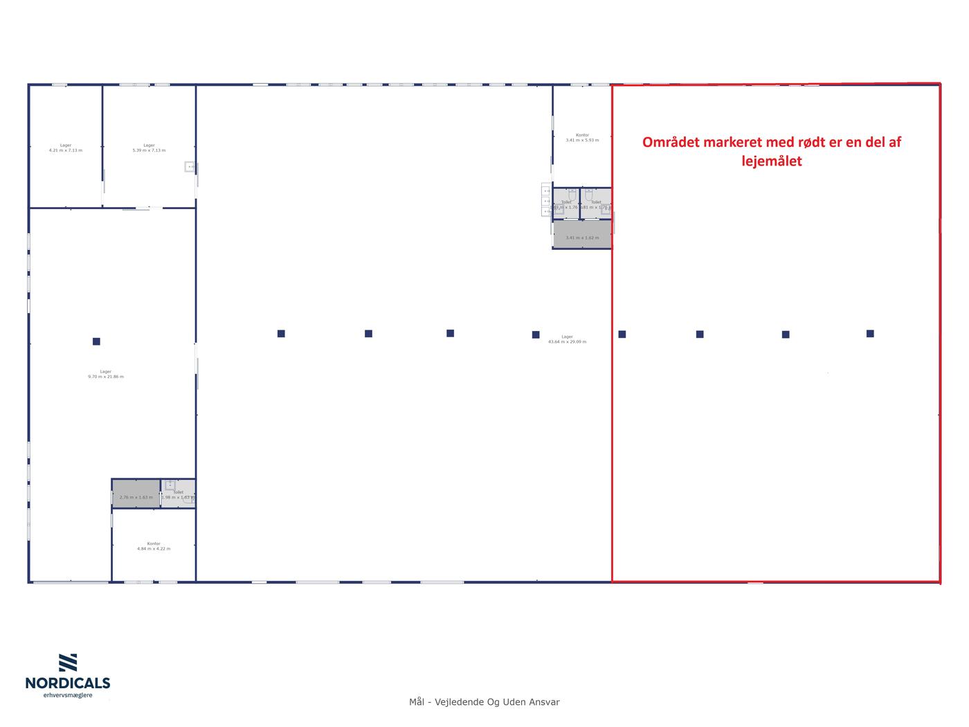
Regulært lagerlejemål med tilhørende omklædningsfaciliteter

?Introduktion:
Nordicals erhvervsmæglere udbyder nu et særdeles velbeliggende og funktionelt lagerlejemål i Bramming til leje. Perfekt til virksomheden, der ønsker attraktive og fleksible rammer i et aktivt erhvervsområde.

Beskrivelse:
Her får du i alt ca. 620 m² veludnyttet lager- og værkstedsareal. Lejemålet er indrettet med et stort lyst værksted / lager. Derudover er der ca. 145 m² omklædningsfaciliteter.

Lejemålet er et dellejemål af en større ejendom, og hele ejendommen er fuldt indhegnet og udstyret med automatisk port, og der er gode muligheder for parkering lige ved døren.

Anvendelse:
Lejemålet egner sig til en bred vifte af erhverv - herunder handelsvirksomhed, administration og håndværk.

Kontakt Nordicals erhvervsmæglere i Esbjerg for nærmere oplysninger eller en fremvisning tlf. 7611 0160.

Læs mere

Vil du vide mere?

Martin Lind Bachmann

mlb@nordicals.dk

+45 6142 1945

Danmarksgade 36, 6700 Esbjerg

+4576110160

6700@nordicals.dk

Besøg vores mæglerside

Lignende ejendomme

Til top