Industrivej 50, Bramming
6740 Bramming

Sagsnr. 5516-L6

Ejendomstype

Etageareal

Grund

Energiklasse

750 m²

11.938 m²

B

Årlig leje

Leje pr. m²

Depositum

375.000 kr.

500 kr.

187.500 kr.

Kontorlejemål

Introduktion:
Nordicals erhvervsmæglere udbyder nu et særdeles velbeliggende og funktionelt kontorlejemål i Bramming til leje. Perfekt til virksomheden, der ønsker attraktive og fleksible rammer i et aktivt erhvervsområde.

Beskrivelse:
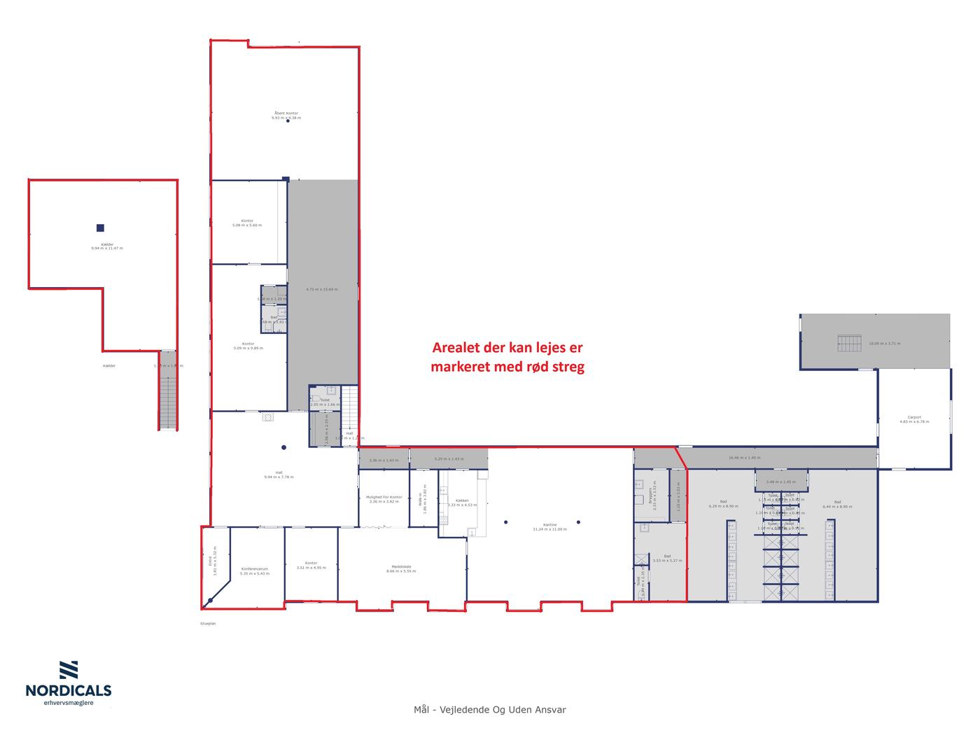
Her får du i alt ca. 750 m² veludnyttet kontorareal inkl. ca. 100 m² kælder. Lejemålet er indrettet med et indbydende indgangsparti, flere disponible lokaler af varierende størrelser, som kan indrettes med skriveborde, en større kantine med køkkeninventar, mødelokale samt toiletfaciliteter og en god og anvendelig kælder.

Lejemålet er et dellejemål af en større ejendom, og hele ejendommen er fuldt indhegnet og udstyret med automatisk port, og der er gode muligheder for parkering lige ved døren.

Anvendelse:
Lejemålet egner sig til en bred vifte af erhverv - herunder handelsvirksomhed og administration.

Kontakt Nordicals erhvervsmæglere i Esbjerg for nærmere oplysninger eller en fremvisning tlf. 7611 0160.

Læs mere

Vil du vide mere?

Lignende ejendomme

Til top