Nygade 8
6800 Varde

Sagsnr. 5404-L

Ejendomstype

Etageareal

Grund

365 m²

2.171 m²

Årlig leje

Leje pr. m²

Depositum

Årlig driftsudgift

Årlig driftsudgift pr. m²

124.100 kr.

340 kr.

31.025 kr.

21.900 kr.

60 kr.

Kontor med central beliggenhed i Varde

Introduktion:
Nordicals erhvervsmæglere udbyder velbeliggende kontorlokaler til leje i Varde. Lejemålet byder på fleksible kontorfaciliteter med åbne kontorlandskaber, flere enkelte kontorer, mødelokaler og personalefaciliteter. I ejendommen er der flere lejere inde, bl.a. TDC og Varde Billard Klub. Lejemålet kan overtages snarest.

Beliggenhed:
Lejemålet har en god beliggenhed i Vardes mangfoldige midtby, i en ejendom med god synlighed på hjørnet af Nygade og Slagterigade. Tæt på findes bl.a. gågaden og Torvet, som udgør et aktivt og velbesøgt samlingspunkt i byen. Omkringliggende finder man både butikker, dagligvareforretninger, forskellige liberale erhverv samt kulturinstitutioner og restauranter. I området er der flere offentlige parkeringspladser. Varde er desuden en driftig handelsby, der dækker et stort opland.

Beskrivelse:
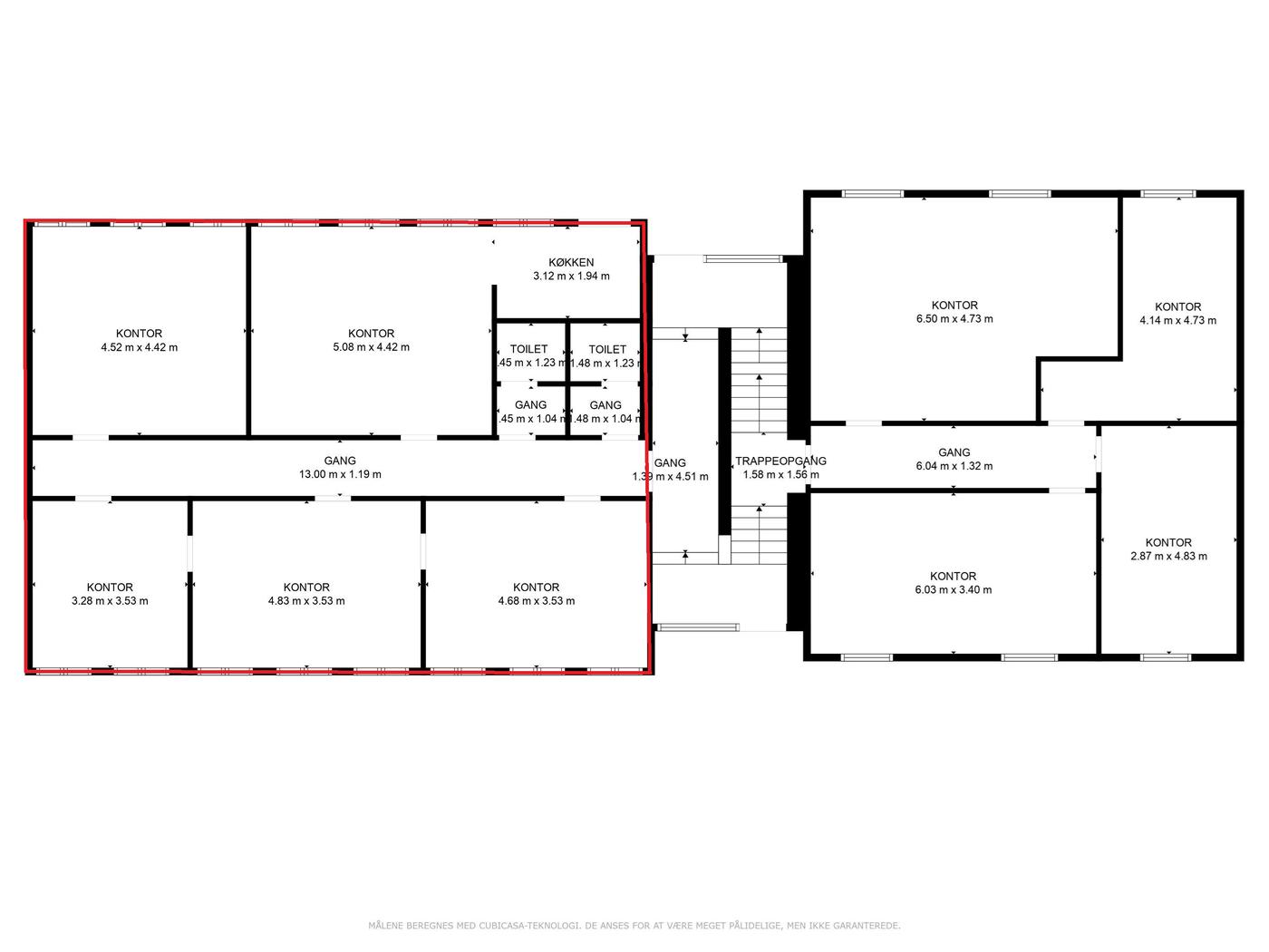
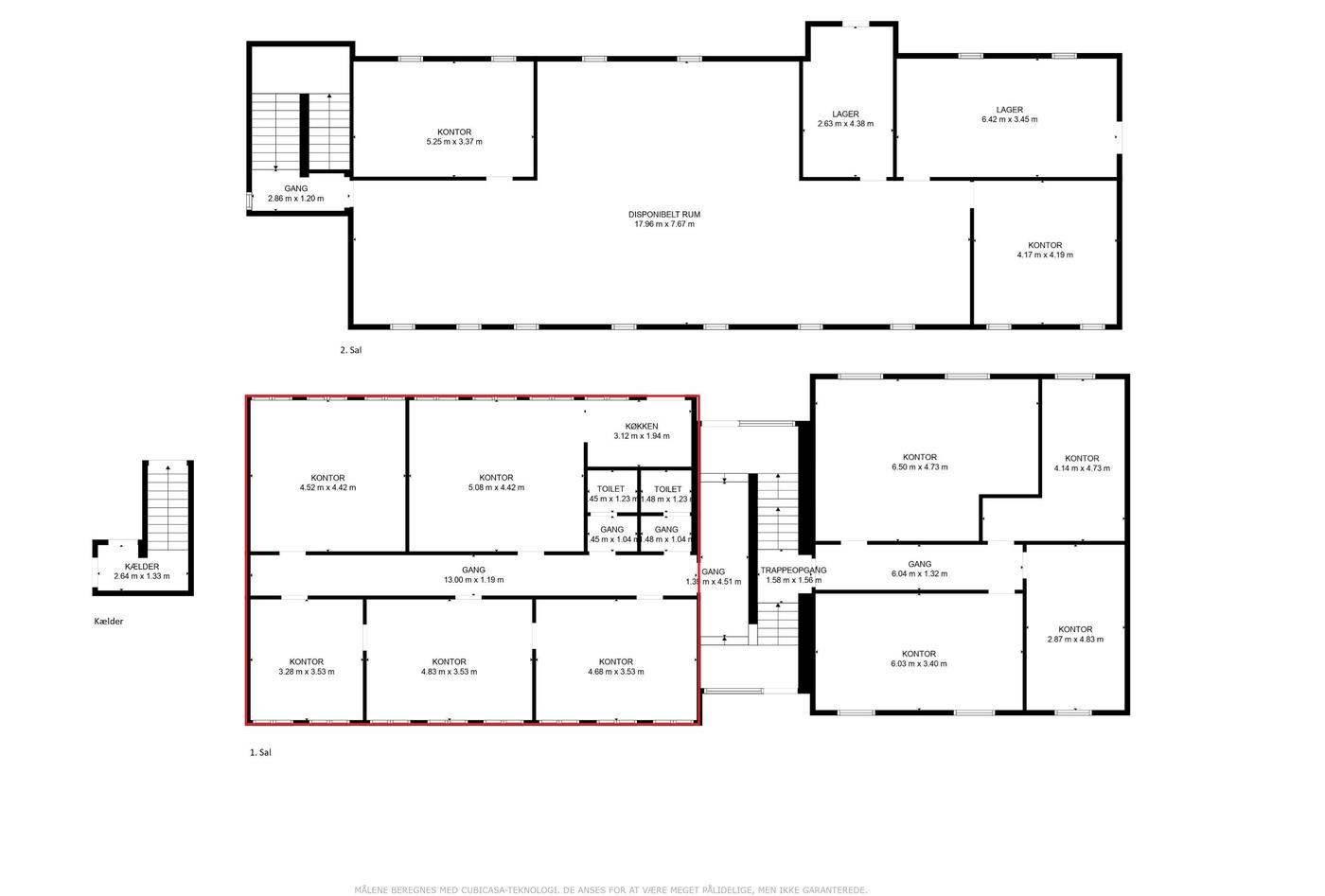
Lejemålet er i alt 365 m² fordelt i stueplan og på 1. sal. til højre. Indretningen består i stueplan af fordelingsgang med adgang til 8 kontorlokaler i gode størrelser, der kan benyttes til både kontor, mødelokale, arkivrum m.v. Stueplan er adskilt af trappeopgangen, og har henholdsvis 5 kontorer til venstre og 4 kontorer til højre. I stuen til venstre findes desuden personalefaciliteter bestående af toiletter samt tekøkken - lokalet i forlængelse af køkkenet er ideelt til indretning af frokoststue. På 1. sal er indrettet med et åbent kontorlandskab og 4 mindre lokaler der kan anvendes til kontor, mødelokale eller lager/arkivrum m.v.

Lokalerne fremstår i pæn vedligeholdelsesmæssig stand, og er indflytningsklare.

Der er areal til parkering bag ved ejendommen, hvor det muligt at tilleje parkeringspladser for kr. 500 + moms pr. stk. pr. måned.

Anvendelse:
Lejemålet kan anvendes til mange formål inden for kontor- og administrationsvirksomhed m.v. Lejemålet kan ligeledes benyttes til foreningsformål.

Kontakt Nordicals i dag og forhør nærmere på 7611 0160.

Læs mere

Vil du vide mere?

Martin Lind Bachmann

mlb@nordicals.dk

+45 6142 1945

Danmarksgade 36, 6700 Esbjerg

+4576110160

6700@nordicals.dk

Besøg vores mæglerside

Lignende ejendomme

Til top