Nygade 8, st. th
6800 Varde

Sagsnr. 5404-L5

Ejendomstype

Etageareal

Grund

120 m²

2.171 m²

Årlig leje

Leje pr. m²

Depositum

Årlig driftsudgift

Årlig driftsudgift pr. m²

60.000 kr.

500 kr.

15.000 kr.

7.200 kr.

60 kr.

Kontorlejemål med central beliggenhed i Varde

Introduktion:
Nordicals erhvervsmæglere udbyder velbeliggende kontorlokaler til leje i Varde. Lejemålet byder på fleksible kontorfaciliteter med kontorer og mødelokaler. I ejendommen er der flere lejere inde, bl.a. TDC og Varde Billard Klub. Lejemålet kan overtages snarest.

Beliggenhed:
Lejemålet har en god beliggenhed i Vardes mangfoldige midtby, i en ejendom med god synlighed på hjørnet af Nygade og Slagterigade. Tæt på findes bl.a. gågaden og Torvet, som udgør et aktivt og velbesøgt samlingspunkt i byen. Omkringliggende finder man både butikker, dagligvareforretninger, forskellige liberale erhverv samt kulturinstitutioner og restauranter. I området er der flere offentlige parkeringspladser. Varde er desuden en driftig handelsby, der dækker et stort opland.


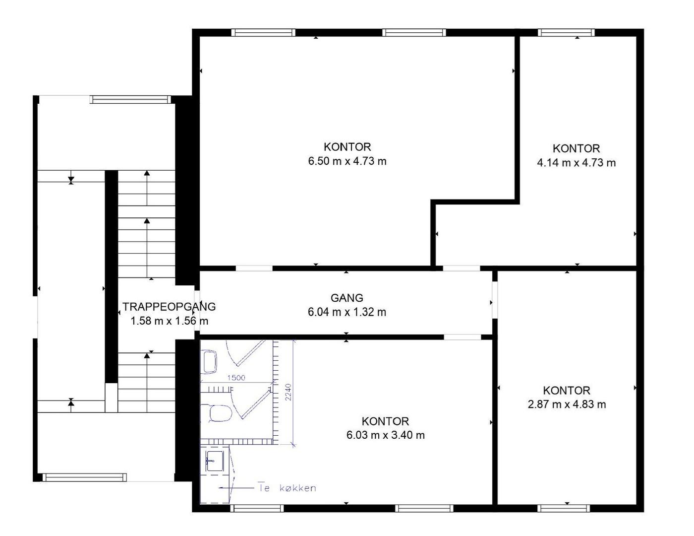
Beskrivelse:
Lejemålet er beliggende i stuen th. og fordeler sig med i alt 120 m². Indretningen består af fordelingsgang med adgang til 4 kontorlokaler i gode størrelser, der kan benyttes til både kontor, mødelokale, arkivrum m.v.
Lokalerne fremstår i pæn vedligeholdelsesmæssig stand, og der er lavet nyt toilet og tekøkken i lejemålet. Et lejemål der er indflytningsklare.

Der er areal til parkering bag ved ejendommen, hvor det muligt at tilleje parkeringspladser for kr. 500 pr. stk. pr. måned.

Anvendelse:
Lejemålet kan anvendes til mange formål inden for kontor- og administrationsvirksomhed m.v. Lejemålet kan ligeledes benyttes til foreningsformål.

Kontakt Nordicals i dag og forhør nærmere på 7611 0160.

Læs mere

Vil du vide mere?

Kristoffer Weller Jensen

kje@nordicals.dk

+45 2176 3108

Danmarksgade 36, 6700 Esbjerg

+4576110160

6700@nordicals.dk

Besøg vores mæglerside

Lignende ejendomme

Til top