Siggårdsvej 2
6818 Årre

Sagsnr. 4003-S

Ejendomstype

Etageareal

Grund

4.183 m²

14.133 m²

Kontantpris

Købspris pr. m²

Årlig driftsudgift

Årlig driftsudgift pr. m²

13.000.000 kr.

3.108 kr.

77.646 kr.

19 kr.

Lager og produktionsejendom

Introduktion:
Nordicals erhvervsmæglere udbyder velbeliggende erhvervsejendom med kontor og lager / produktion til salg i Årre.

Beliggenhed:
Ejendommen er beliggende i centrum af byen, tæt på faciliteter som bl.a. indkøb, daginstitutioner og Årre Kro. Der er således meget daglig aktivitet i området, som dels er erhvervsområde, dels villakvarter.

Beliggenheden er tæt på hovedvejen med forbindelse til det øvrige vejnet, herunder Tingvejen mellem Korskro og Grindsted.

Ligeledes fordelagtig beliggenhed til større byer som Varde og Esbjerg.

Beskrivelse:
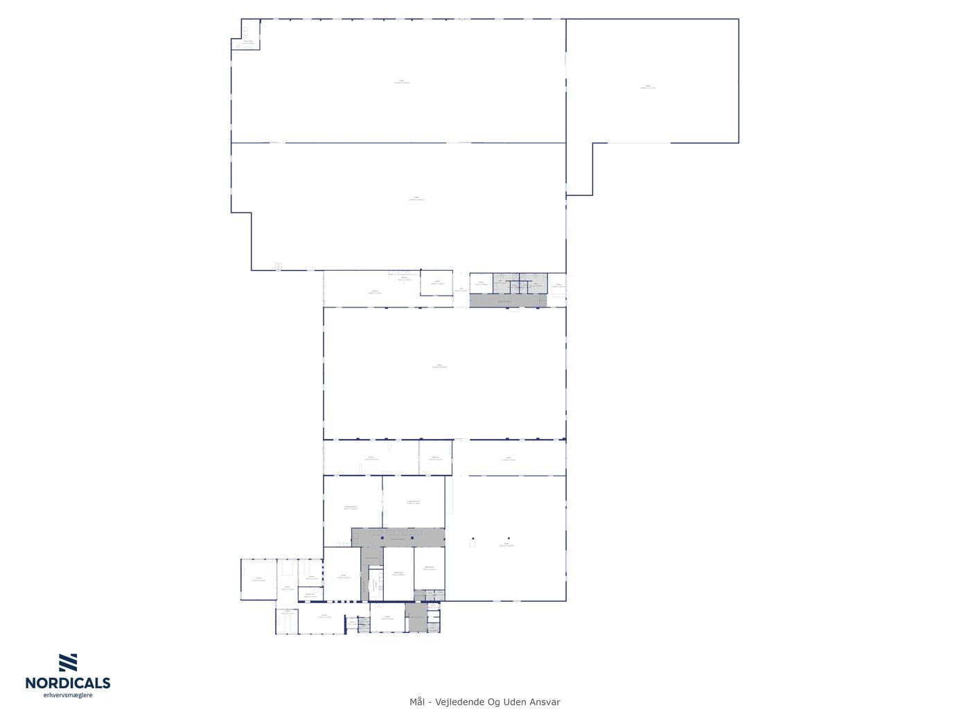
Ejendommen er jf. BBR opført i 1987 og tilbygget i 1997 og 1999 og indeholder ca. 4.183 m² kontor og lager / produktion.

Fra kontorområdet er der adgang til showroom og lager / produktion. Derudover er der traditionelt lager- og produktionsområde med flere porte, traverskraner, og fantastisk lysindfald. Der ligger ligeledes kontorer i forbindelse med de øvrige lagerområder.

Administrationen og personale faciliteter udgør ca. 1.110 m², lager / produktion udgør ca. 3.073 m²

Lager / produktionshallen er højloftet, opvarmet og med støbt betongulv. Her er gode adgangsforhold med både læsserampe og direkte indkørsel gennem flere porte. Meget fleksibel hal.

Tilhørende er der kunde parkering foran ejendommen samt stort område bag ejendommen til personale parkering.

Der er stort areal belagt med SF-sten, der sikrer gode parkerings- samt tilkørselsforhold.

Ejendommene fremtræder pæn og velholdt.

Anvendelse:
Ejendommen kan anvendes til alle former for lager, handelsvirksomhed, administration samt håndværksvirksomhed.

Regulær ejendom med mange muligheder.

Forhør nærmere eller book en fremvisning på 7611 0160.

Læs mere

Vil du vide mere?

René Lennart Madsen

rlm@nordicals.dk

+45 2311 6566

Danmarksgade 36, 6700 Esbjerg

+4576110160

6700@nordicals.dk

Besøg vores mæglerside

Lignende ejendomme

Til top