Allegade 6A
6823 Ansager

Sagsnr. 3707-S

Ejendomstype

Etageareal

Grund

Energiklasse

128 m²

362 m²

C

Kontantpris

Købspris pr. m²

Afkast

Årlig lejeindtægt

Årlig lejeindtægt pr. m²

Årlig driftsudgift

Årlig driftsudgift pr. m²

845.000 kr.

6.602 kr.

7,77 %

101.459 kr.

793 kr.

35.747 kr.

279 kr.

Totalrenoveret boligudlejningsejendom til salg

Introduktion:
Nordicals erhvervsmæglere udbyder flot totalrenoveret boligudlejningsejendom med 2 lejligheder til salg.

Beliggenhed:
Ejendommen er beliggende på Allegade 6 i Ansager. Ansager har et godt lokalsamfund med et aktivt foreningsliv, gode indkøbsmuligheder, børnehave/dagpleje samt skole fra 0. til 9 klasse.

Beskrivelse:
Ejendommen er jf. BBR opført i 1932, og totalrenoveret fra 2021. Dette indebærer nyt tag, elindtag og vvs på 1. sal.

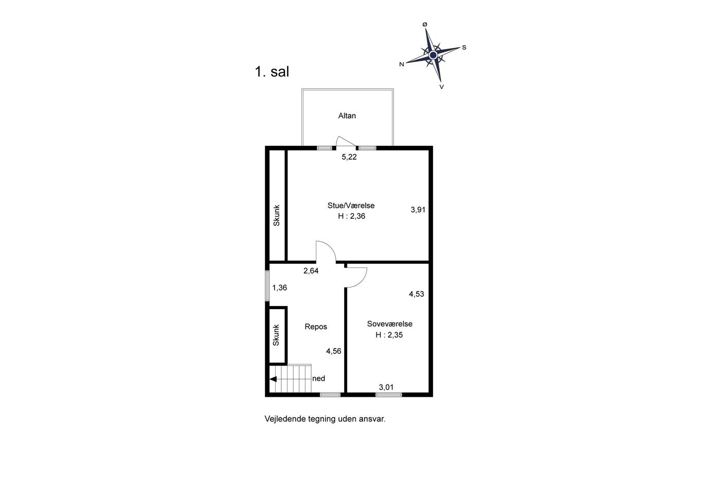
Ejendommen har en 362 m² stor grund, og er i 2 etager. De 2 lejemål i ejendommen er opdelt i en 70 m² lejlighed i stueplan, og en 58 m² lejlighed på første sal.
Stueplanen er indrettet med 2 stuer, nyt køkken, soveværelse, bad samt adgang til en lille kælder. 1. Salen byder på nyt køkken, stue, et stort soveværelse, lille badeværelse, et disponibel rum i stueplanen og en hyggelig altan.

Kontakt Nordicals og forhør nærmere på tlf. 7611 0160.

Læs mere

Vil du vide mere?

Martin Lind Bachmann

mlb@nordicals.dk

+45 6142 1945

Danmarksgade 36, 6700 Esbjerg

+4576110160

6700@nordicals.dk

Besøg vores mæglerside

Lignende ejendomme

Til top