Storegade 9A og 9B
6855 Outrup

Sagsnr. 3981-S

Ejendomstype

Etageareal

Grund

Energiklasse

145 m²

676 m²

D

Mindre investeringsejendom med to boliglejemål og 5 carporte

Introduktion:
Nordicals erhvervsmæglere udbyder denne mindre boligudlejningsejendom på Storegade i Outrup til salg. Der er to boliglejemål og fem carporte, som udlejes. Ejendommen fremstår i pæn stand og er løbende blevet renoveret.

Beliggenhed:
Ejendommen er beliggende på Storegade, som er den gennemgående vej, der går tværs igennem stationsbyen Outrup. Outrup ligger mellem de to større handelsbyer Varde og Nørre Nebel, hvortil der flere gange dagligt kører tog.

I Outrup findes der både dagpleje, børnehave og kommunal folkeskole uden overbygning. Dertil har Outrup et større idrætscenter, dagligvarebutik og XL-BYG.

Beskrivelse:
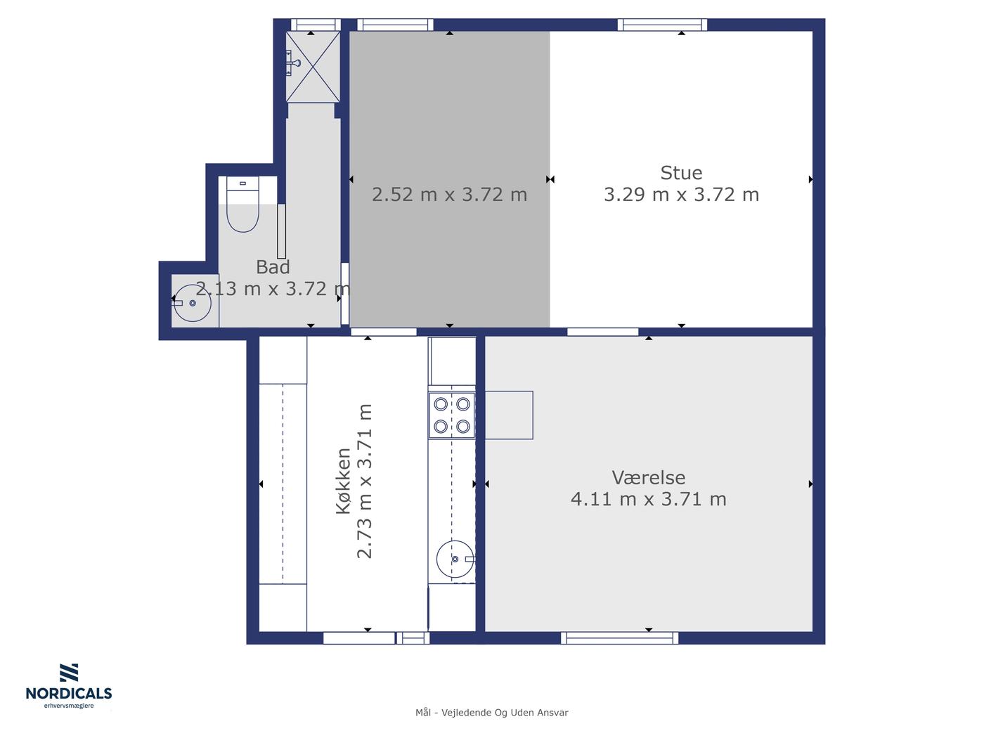
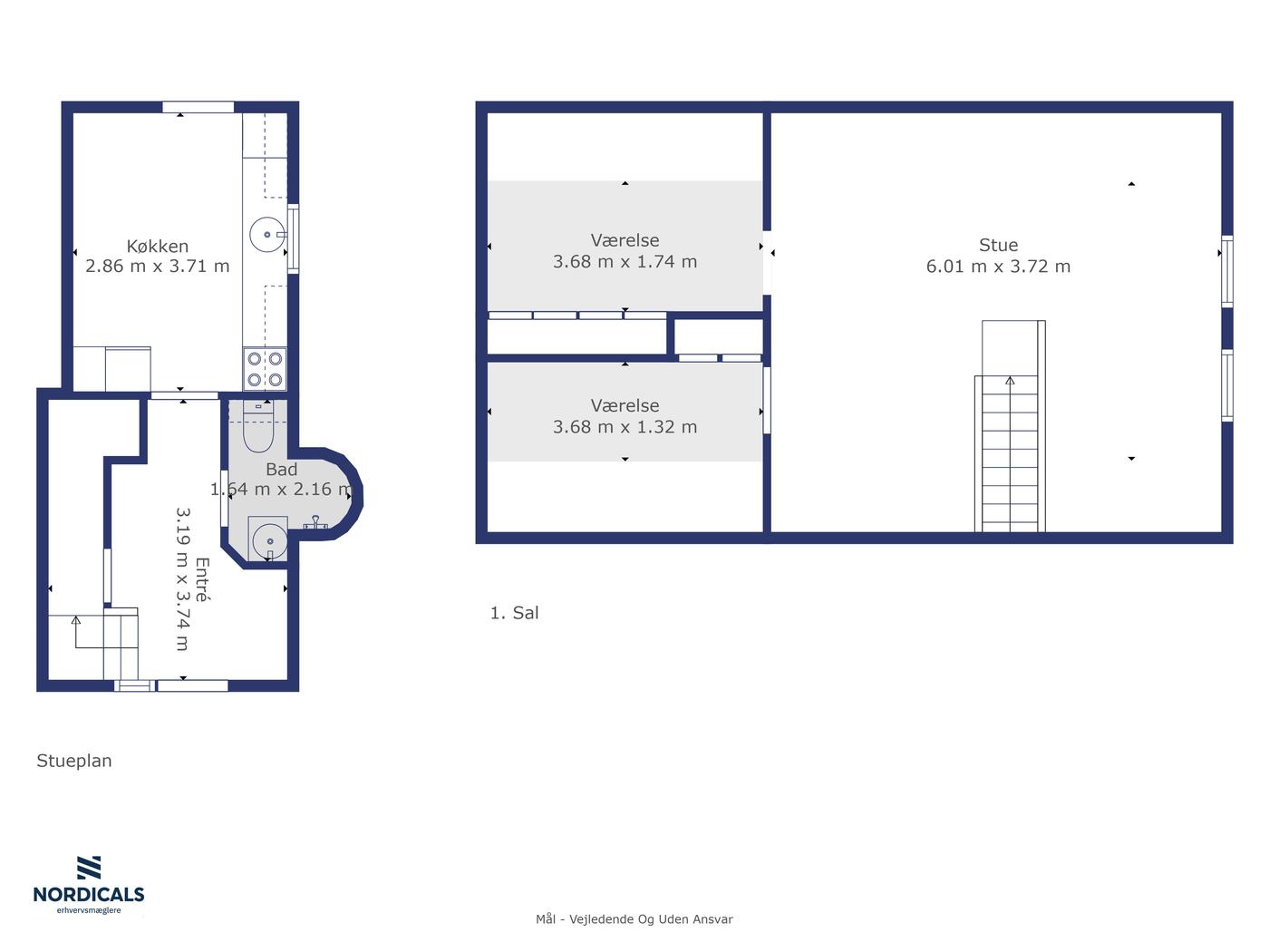
Ejendommen er jf. BBR opført i 1904 med til-/ombygning i 1990. Det samlede boligareal udgør 145 m², heraf 61 m² i stueplan og 84 m² på 1. sal.

Storegade 9A er indrettet med et fint køkken med hvidt inventar. Badeværelse med bruseniche. Kombineret spisestue og stue samt et større værelse.

Storegade 9B er i stueplan indrettet med entré, køkken med hvidt inventar og et badeværelse med brus. På 1. sal er der to gode værelser i gavlen samt en fin stue.

Ejendommen opvarmes ved fjernvarme.

Ejendommen har en 676 m² stor grund, og udenomsarealerne fremtræder pænt vedligeholdt.

Fremvisning:
Ønsker du at se denne overskuelige boligudlejningsejendom, så kontakt Nordicals erhvervsmæglere for en fremvisning på tlf. 7611 0160.

Læs mere

Denne ejendom er solgt

Vil du vide mere?

Martin Lind Bachmann

mlb@nordicals.dk

+45 6142 1945

Danmarksgade 36, 6700 Esbjerg

+4576110160

6700@nordicals.dk

Besøg vores mæglerside

Lignende ejendomme

Til top