Storegade 6B
6855 Outrup

Sagsnr. 4060-S1

Ejendomstype

Etageareal

Grund

Energiklasse

284 m²

1.494 m²

D

Kontantpris

Købspris pr. m²

Afkast

Årlig lejeindtægt

Årlig lejeindtægt pr. m²

Årlig driftsudgift

Årlig driftsudgift pr. m²

1.795.000 kr.

6.320 kr.

6,8 %

202.800 kr.

714 kr.

81.212 kr.

286 kr.

Renoveret investeringsejendom med 4 lejemål

Introduktion:
Nordicals erhvervsmæglere udbyder denne boligudlejningsejendom med fire lejemål til salg. Alle lejemål er udlejet, og ejendommen fremtræder flot vedligeholdt.

Beliggenhed:
Ejendommen er beliggende på Storegade, som er den gennemgående vej, der går tværs igennem stationsbyen Outrup. Outrup ligger mellem de to større handelsbyer Varde og Nørre Nebel, hvortil der flere gange dagligt kører tog.
I Outrup findes der både dagpleje, børnehave og kommunal folkeskole uden overbygning. Dertil har Outrup et større idrætscenter, dagligvarebutik og XL-BYG.

Beskrivelse:
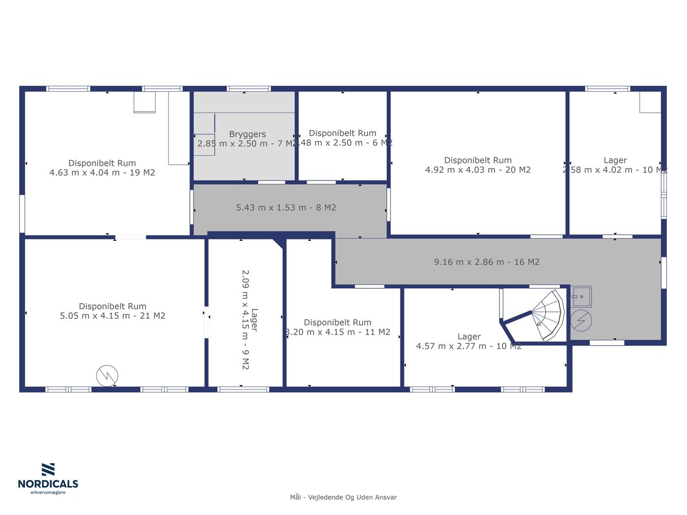
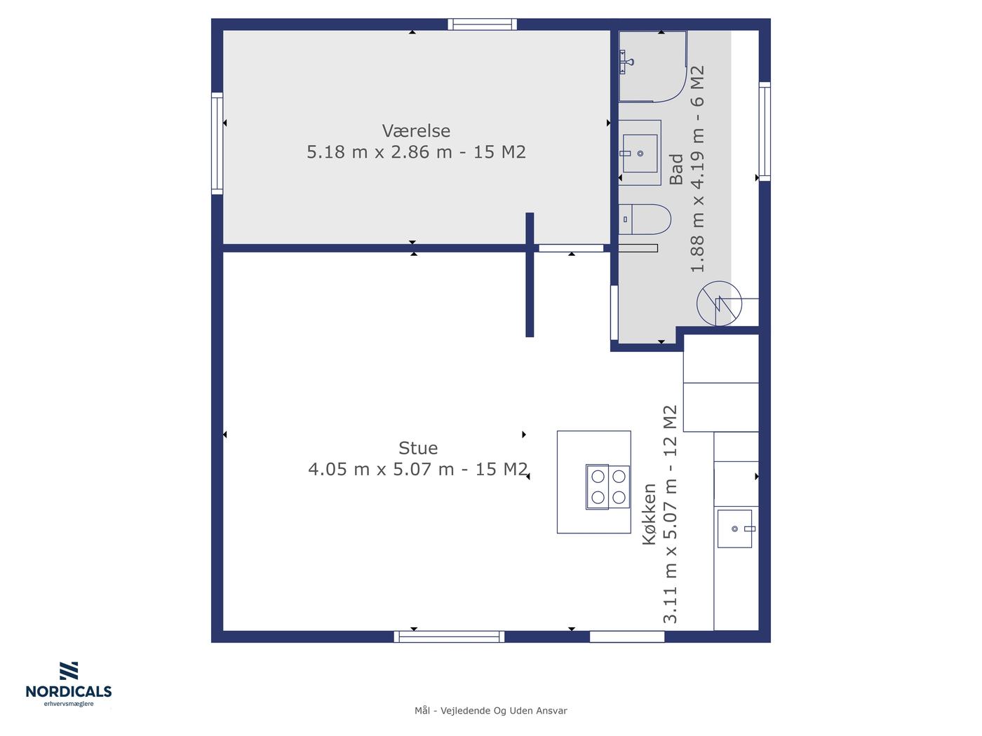
Ejendommen er jf. BBR opført i 1942 med om-/tilbygning i 2008. Boligarealet udgør 284 m² fordelt på fire velindrettede lejemål, som er henholdsvis 101 m², 69 m², 62 m² og 52 m² inklusiv trappeopgang. De fire lejligheder fremstår alle indbydende med hvide køkkener.

Grunden er 1.494 m², heraf 277 m² vej. Udenomsarealerne fremstår pæne, og der er gode parkeringsmuligheder for lejerne på det store areal bag ejendommen.

Bygningen opvarmes via fjernvarme.

Fremvisning:
Ønsker du at se denne boligudlejningsejendom, så kontakt Nordicals Erhvervsmæglere for en fremvisning på tlf. 7611 0160.

EJENDOMMEN ER VIRKELIG ET BESØG VÆRD.

Læs mere

Vil du vide mere?

Martin Lind Bachmann

mlb@nordicals.dk

+45 6142 1945

Danmarksgade 36, 6700 Esbjerg

+4576110160

6700@nordicals.dk

Besøg vores mæglerside

Lignende ejendomme

Til top