Jægervej 1
6900 Skjern

Sagsnr. 53688080

Ejendomstype

Etageareal

Energiklasse

132 m²

C

Kontantpris

Købspris pr. m²

Årlig driftsudgift

Årlig driftsudgift pr. m²

995.000 kr.

7.538 kr.

278.377 kr.

2.109 kr.

Mulighed for overtagelse af veletableret grillbar

I en periode på 14 år har Ringvejens Grill været en del af Skjern og helt konkret trafikknudepunktet mellem Ringvejen og Arnborgvej, og nu er muligheden kommet for at give stafetten videre til en ny ildsjæl, der ønsker at udnytte potentialet for at drive egen grillbar i det populære område i Skjern.

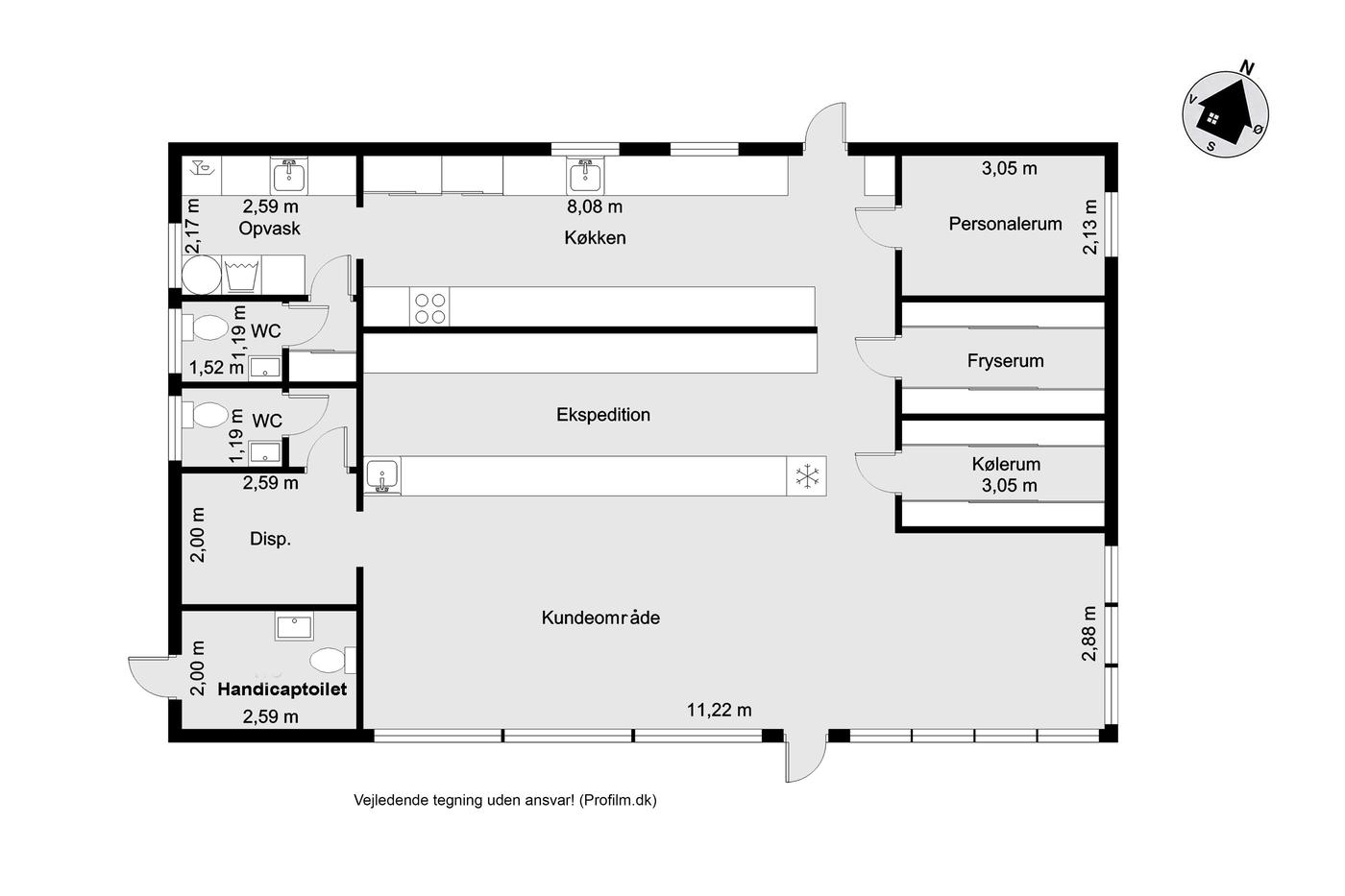
Selve bygningen består af en 132 m² grillpavillon opført af den anerkendte producent Haaning A/S, der har specialeret sig i opførsel af denne type bygninger, hvilket er tydeligt at se, når man besøger Ringvejens Grill. Bygningen har en god indretning og fordeling mellem kunde- og spiseafdeling samt køkken- og varelager, således der er minimal spildplads, og de 132 m² er udnyttet på bedste vis.

Samtidigt er det tydeligt, at det er anvendt kvalitetsmaterialer, og alt fremstår meget velvedligeholdt og lige til at gå til.

Grillpavillonen består af et stort spise- og kundeområde med op til 28 spisepladser samt et tilhørende lokale, der oprindeligt har været spillelokale, men p.t. fungerer som depotrum. Hertil kommer et veludnyttet ekspeditionsområde med forbindelse til det store lyse køkken, der er indrettet med forbindelse til ekspeditionsområdet samt opvaskeområdet. Der er yderligere et særskilt personalerum med 4 siddepladser, personaletoilet og rengøringsrum samt et veletableret fryserum og kølerum. Herudover er der etableret kundetoilet samt handicaptoilet.

Lokalerne fremstår lyse og velholdte, og er således lige til at gå til. Så går du med drømmen om at prøve noget nyt, blive herre i eget hus eller har erfaring indenfor branchen, så er Ringvejens Grill absolut en sag, du bør se nærmere på!

Lejet grund

Bygningen er beliggende på lejet grund med en uopsigelighed fra udlejers side, således lejemålet tidligst kan opsiges til fraflytning pr. 1. juli 2043. Der foreligger underskrevet lejekontrakt med gældende vilkår omkring huslejebetaling, vilkår for anvendelse, afståelsesvilkår m.v., som køber skal respektere i relation til at lejeaftalen skal afstås af nuværende lejer.

Til lejemålet hører benyttelse af udeareal til legeareal, muligheden for opstilling af borde og bænke samt benyttelse af p-plads jf. nærmere angivet situationsplan.

Læs mere

Vil du vide mere?

Kasper Palnov

kap@nordicals.dk

+45 2988 4134

Dalgas Plads 6, 1, 7400 Herning

+4570254052

7400@nordicals.dk

Besøg vores mæglerside

Lignende ejendomme

Til top